Under offer
€ {{ product.price.replace(/\B(?=(\d{4})+(?!\d))/g, ".") }} {{ __(product.price_condition) }}
Photo’s
{{ product.images.length }}
Floorplan
{{ product.plans.length }}
360° photo’s {{ product.panoramas.length }}
Video’s {{ product.videos.length }}
Maps
All media
House for sale Voorstestraat 123 Weert
€ {{ product.price.replace(/\B(?=(\d{4})+(?!\d))/g, ".") }} {{ __(product.price_condition) }}
Under offer
Description
Degelijkheid en ruimte komen samen in deze verrassend royale woning aan de Voorstestraat 123, gelegen in de kindvriendelijke wijk Leuken. De centrale ligging nabij scholen, speeltuinen en uitvalswegen maakt dit een fijne locatie in Weert. Met vier slaapkamers, een vaste trap naar de grote zolder waar met weinig moeite een grote vijfde slaapkamer of kantoorruimte gerealiseerd kan worden; nl. ongeveer vier duizend euro aan investering tbv na-isolatie van deze kap en het plaatsen van een groot dakvenster. Een ruime woonkamer met schuifpui naar de tuin en een garage met carport biedt dit huis alle mogelijkheden voor comfortabel wonen en eventueel werken vanuit huis!
Begane grond
In de hal vind je het toilet, de meterkast en de trap naar de eerste verdieping. De woonkamer is ruim opgezet en voorzien van een schuifpui naar de achtertuin, waardoor er veel lichtinval is en een directe verbinding met buiten ontstaat. Op de begane grond zijn elektrische rolluiken geplaatst voor extra comfort. De keuken sluit aan op de woonkamer en biedt volop mogelijkheden voor een moderne inrichting. Ook is hier een praktische trapkast aanwezig die ideaal dienstdoet als provisieruimte. Via een tuindeur heb je toegang tot de achtertuin.
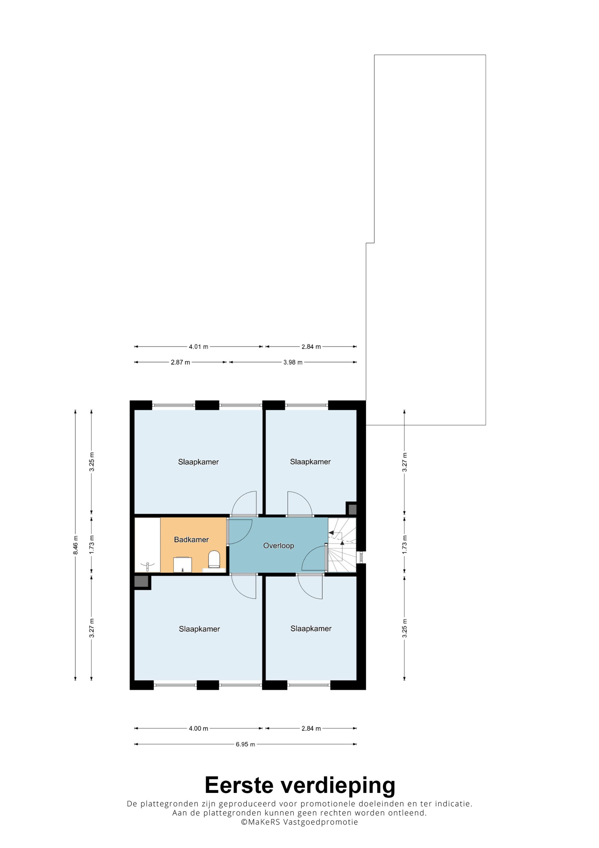
Eerste verdieping
Op de eerste verdieping bevinden zich vier slaapkamers, allen voorzien van nieuwe HR++ beglazing. Aan de voorzijde van de woning zijn de ramen uitgerust met rolluiken. De kamers zijn netjes onderhouden en bieden voldoende ruimte voor diverse indelingen.
De badkamer is praktisch ingericht en voorzien van mechanische afzuiging, een ligbad met douche, wastafel met meubel en toilet.
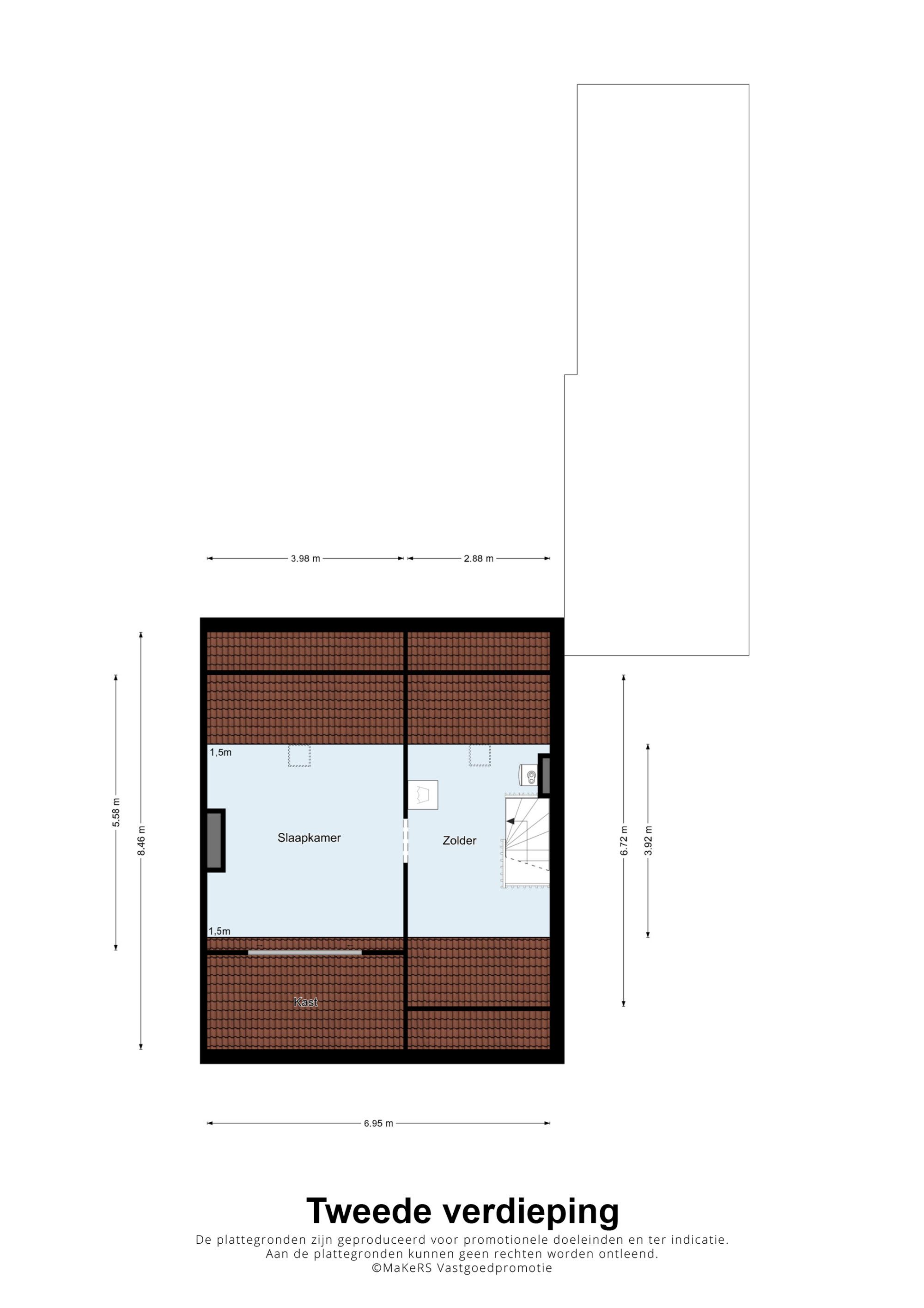
Zolder
Via een vaste trap is de zolder bereikbaar. De dakramen hier zijn in 2020 vernieuwd met isolatieglas. Hier kan eenvoudig een vijfde slaapkamer of hobbyruimte worden gerealiseerd. De Nefit Trendline combi-ketel (2018) is bij het eerste gedeelte van de zolder gesitueerd, evenals de witgoedaansluitingen.
Buitenruimte
De achtertuin is bereikbaar via de schuifpui in de woonkamer en tuindeur in de keuken. Deze biedt volop mogelijkheden om te genieten van het buitenleven. Aan de zijkant van de woning bevindt zich een garage met carport met elektrische kantelpoort en aansluitende een ruime garage. Deze is praktisch ingericht en biedt ruimte voor opslag of hobby.
Bijzonderheden van deze woning:
- Degelijke woning met veel ruimte
- Vier slaapkamers en mogelijkheid tot vijfde slaapkamer op zolder
- Woonkamer met schuifpui naar de tuin
- Praktische trapkast als provisieruimte
- Elektrische rolluiken op begane grond
- Rolluiken begane grond achterzijde en eerste verdieping voorzijde woning
- Nieuwe HR++ beglazing op eerste verdieping
- Dakramen met vernieuwd isolatieglas op zolder
- Garage met carport, inclusief elektrische kantelpoort
- Nefit Trendline combi-ketel (2018)
- Mechanische afzuiging op badkamer
Begane grond
In de hal vind je het toilet, de meterkast en de trap naar de eerste verdieping. De woonkamer is ruim opgezet en voorzien van een schuifpui naar de achtertuin, waardoor er veel lichtinval is en een directe verbinding met buiten ontstaat. Op de begane grond zijn elektrische rolluiken geplaatst voor extra comfort. De keuken sluit aan op de woonkamer en biedt volop mogelijkheden voor een moderne inrichting. Ook is hier een praktische trapkast aanwezig die ideaal dienstdoet als provisieruimte. Via een tuindeur heb je toegang tot de achtertuin.
Eerste verdieping
Op de eerste verdieping bevinden zich vier slaapkamers, allen voorzien van nieuwe HR++ beglazing. Aan de voorzijde van de woning zijn de ramen uitgerust met rolluiken. De kamers zijn netjes onderhouden en bieden voldoende ruimte voor diverse indelingen.
De badkamer is praktisch ingericht en voorzien van mechanische afzuiging, een ligbad met douche, wastafel met meubel en toilet.
Zolder
Via een vaste trap is de zolder bereikbaar. De dakramen hier zijn in 2020 vernieuwd met isolatieglas. Hier kan eenvoudig een vijfde slaapkamer of hobbyruimte worden gerealiseerd. De Nefit Trendline combi-ketel (2018) is bij het eerste gedeelte van de zolder gesitueerd, evenals de witgoedaansluitingen.
Buitenruimte
De achtertuin is bereikbaar via de schuifpui in de woonkamer en tuindeur in de keuken. Deze biedt volop mogelijkheden om te genieten van het buitenleven. Aan de zijkant van de woning bevindt zich een garage met carport met elektrische kantelpoort en aansluitende een ruime garage. Deze is praktisch ingericht en biedt ruimte voor opslag of hobby.
Bijzonderheden van deze woning:
- Degelijke woning met veel ruimte
- Vier slaapkamers en mogelijkheid tot vijfde slaapkamer op zolder
- Woonkamer met schuifpui naar de tuin
- Praktische trapkast als provisieruimte
- Elektrische rolluiken op begane grond
- Rolluiken begane grond achterzijde en eerste verdieping voorzijde woning
- Nieuwe HR++ beglazing op eerste verdieping
- Dakramen met vernieuwd isolatieglas op zolder
- Garage met carport, inclusief elektrische kantelpoort
- Nefit Trendline combi-ketel (2018)
- Mechanische afzuiging op badkamer
+ Read more
- Read less
Construction: {{
product.build_year }}
Construction: {{ product.build_period.start }} -
{{ product.build_period.end }}
House
, Single-family house
{{ product.rooms }} rooms
{{ product.bedrooms
}} bedrooms
Living space: {{
product.living_space }} m²
Plot: {{
product.plot_surface }} m²
Energy class: {{ product.energy_class }}
Energy index: {{ product.energy_index }}
Characteristics
{{ field.label }}
{{ field.value }}
+ Read more
{{ field.label }}
{{ field.value }}
- Read less
{{ product.company.name }}
Contact us
{{ product.company.phone.replace('-', ' ').substr(0, 7) }}...
{{ product.company.phone.replace('-', ' ') }}
Share:
Date