Available
€ {{ product.price.replace(/\B(?=(\d{4})+(?!\d))/g, ".") }} {{ __(product.price_condition) }}
Photo’s
{{ product.images.length }}
Floorplan
{{ product.plans.length }}
360° photo’s {{ product.panoramas.length }}
Video’s {{ product.videos.length }}
Maps
All media
House for sale Mauritsstraat 14 Weert
€ {{ product.price.replace(/\B(?=(\d{4})+(?!\d))/g, ".") }} {{ __(product.price_condition) }}
Available
Description
Een unieke kans!
Deze hoekwoning is een unieke kans! Hoogwaardig afgewerkt, volledig geïsoleerd, voorzien van vloerverwarming op de begane grond en uitgerust met 10 zonnepanelen. Hier woon je niet alleen in luxe en sfeer, maar vooral ook comfortabel en energiezuinig. Dankzij de uitstekende isolatie, de zonnepanelen en diverse recente verbeteringen ben je uitstekend voorbereid op de toekomst.
Sinds 2020 hebben de huidige eigenaren de woning bovendien op meerdere punten verder gemoderniseerd. Zo zijn er in 2021 screens geplaatst aan de voorzijde en bij de schuifpui, is er een prachtige tuinkamer gerealiseerd en is in 2022 de kruipruimte geïsoleerd. In 2023 zijn airco’s geplaatst op de begane grond en op de overloop, in 2024 is de cv-ketel vervangen en in 2025 is de voordeur vernieuwd door een onderhoudsarme kunststof variant. Voor februari 2026 staat het vervangen van de lichtkoepel in de woonkamer én het zolderraam gepland — beide met betere isolatiewaarden en een modernere uitstraling. Deze upgrades versterken het wooncomfort en maken de woning nóg energiezuiniger.
Indeling
Begane grond
Bij binnenkomst valt direct de verzorgde afwerking op: een fraaie vloertegel met vloerverwarming, een gerenoveerde trapopgang met geïntegreerde trapverlichting, een stijlvolle jaren ’30 deur naar de woonkamer en strak afgewerkte wanden en plafonds. De toiletruimte met wandcloset, fonteintje en mechanische ventilatie is modern en hoogwaardig uitgevoerd.
De eetkamer is royaal van formaat en baadt in het daglicht dankzij de grote raampartijen. HR++ beglazing, vloerverwarming en goed geïsoleerde wanden zorgen voor optimaal comfort. Vanuit hier kijk je zowel richting de straat als naar de prachtige keuken.
De keuken is luxe uitgevoerd met een 5-pits gasfornuis, rvs afzuigkap, vaatwasser, combi-oven, koelkast en een granieten werkblad. De combinatie van wit en hout sluit mooi aan op de vloer. Het kookeiland heeft een praktische open nis die als boekenkast wordt gebruikt, en in de apparatenwand is een sfeervol verlichte plek voor het koffieapparaat gecreëerd.
De woonkamer aan de achterzijde is een heerlijke plek om te ontspannen. De brede schuifpui en de lichtkoepel zorgen voor een overvloed aan daglicht. ’s Avonds creëren de wandlampen een warme, gezellige sfeer. Vanuit de zithoek kijk je uit op de sfeervolle, onderhoudsvriendelijke tuin. De geplande nieuwe lichtkoepel (februari 2026) zal deze ruimte nóg lichter en energiezuiniger maken.
Via een buitenportaal is de bijkeuken bereikbaar. Deze praktische ruimte (2,64 m x 4,29 m) is voorzien van witgoedaansluitingen en de verdeler van de zonnepanelen.
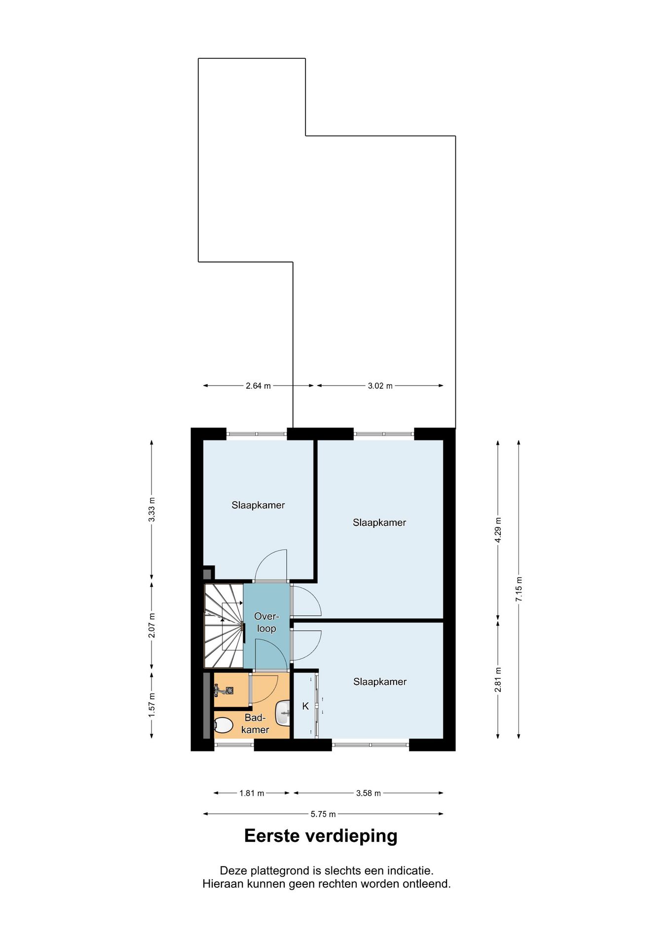
Eerste verdieping
Ook de eerste verdieping is met zorg afgewerkt. Doorlopende laminaatvloeren, strakke wanden en plafonds, kunststof kozijnen met HR++ glas en rolluiken zorgen voor comfort en rust. De slaapkamer aan de voorzijde beschikt over een vaste schuifwandkast.
De badkamer is modern en compleet: een inloopdouche met rainshower, wastafel, wandcloset, designradiator en een sfeervolle nis met spotverlichting. Het tegelwerk is stijlvol en de ruimte beschikt over mechanische ventilatie en HR++ beglazing.
Zolder
Via een vaste trap bereik je de ruime zolder met dakvenster, dakisolatie en houten vloer. Hier bevindt zich de Intergas HR-ketel (2024). De ruimte leent zich uitstekend voor het realiseren van een extra slaap- of hobbykamer. Het zolderraam wordt in 2026 vernieuwd, wat de lichtinval verder verbetert.
Op de aanbouw en berging liggen 10 zonnepanelen van 260 Wp per stuk (totaal 2600 Wp). De verdeler bevindt zich in de wasruimte.
Tuin
De achtertuin ligt op het westen en is sfeervol en onderhoudsvriendelijk aangelegd. Mooie bestrating, groene borders en geïntegreerde zitbanken maken dit een fijne plek om te genieten van het buitenleven. De tuin is bereikbaar via de woonkamer en via een achterom. Door de diepe oprit is het mogelijk om uw eigen auto op eigen terrein te parkeren. In 2021 is er een heerlijke tuinkamer gerealiseerd. Hier kun je rustig zitten en ontspannen. Achter de tuinkamer bevindt zich nog een kleine bergruimte die plek biedt voor het opbergen van diverse spullen.
Bijzonderheden van deze woning:
- Duurzame hoekwoning in woonwijk Moesel
- Luxe keuken met kookeiland en apparatenwand
- 3 fijne slaapkamers
- Kunststof kozijnen met HR++ glas
- Vloerverwarming op de begane grond
- 10 zonnepanelen (2600 Wp)
- Royale aanbouw met lichtkoepel en schuifpui (nieuwe lichtkoepel gepland in 2026)
- Screens voorzijde en schuifpui (2021)
- Airco’s begane grond en overloop (2023)
- Intergas HR cv-ketel (2024)
- Vaste trap naar ruime zolder (mogelijkheid extra kamer)
- Parkeren op eigen oprit
- Onderhoudsvriendelijke tuin op het westen met achterom
- Uitstekend geïsoleerd (dak, vloer, muren, HR++ glas)
- Gelegen nabij scholen en winkels
Deze hoekwoning is een unieke kans! Hoogwaardig afgewerkt, volledig geïsoleerd, voorzien van vloerverwarming op de begane grond en uitgerust met 10 zonnepanelen. Hier woon je niet alleen in luxe en sfeer, maar vooral ook comfortabel en energiezuinig. Dankzij de uitstekende isolatie, de zonnepanelen en diverse recente verbeteringen ben je uitstekend voorbereid op de toekomst.
Sinds 2020 hebben de huidige eigenaren de woning bovendien op meerdere punten verder gemoderniseerd. Zo zijn er in 2021 screens geplaatst aan de voorzijde en bij de schuifpui, is er een prachtige tuinkamer gerealiseerd en is in 2022 de kruipruimte geïsoleerd. In 2023 zijn airco’s geplaatst op de begane grond en op de overloop, in 2024 is de cv-ketel vervangen en in 2025 is de voordeur vernieuwd door een onderhoudsarme kunststof variant. Voor februari 2026 staat het vervangen van de lichtkoepel in de woonkamer én het zolderraam gepland — beide met betere isolatiewaarden en een modernere uitstraling. Deze upgrades versterken het wooncomfort en maken de woning nóg energiezuiniger.
Indeling
Begane grond
Bij binnenkomst valt direct de verzorgde afwerking op: een fraaie vloertegel met vloerverwarming, een gerenoveerde trapopgang met geïntegreerde trapverlichting, een stijlvolle jaren ’30 deur naar de woonkamer en strak afgewerkte wanden en plafonds. De toiletruimte met wandcloset, fonteintje en mechanische ventilatie is modern en hoogwaardig uitgevoerd.
De eetkamer is royaal van formaat en baadt in het daglicht dankzij de grote raampartijen. HR++ beglazing, vloerverwarming en goed geïsoleerde wanden zorgen voor optimaal comfort. Vanuit hier kijk je zowel richting de straat als naar de prachtige keuken.
De keuken is luxe uitgevoerd met een 5-pits gasfornuis, rvs afzuigkap, vaatwasser, combi-oven, koelkast en een granieten werkblad. De combinatie van wit en hout sluit mooi aan op de vloer. Het kookeiland heeft een praktische open nis die als boekenkast wordt gebruikt, en in de apparatenwand is een sfeervol verlichte plek voor het koffieapparaat gecreëerd.
De woonkamer aan de achterzijde is een heerlijke plek om te ontspannen. De brede schuifpui en de lichtkoepel zorgen voor een overvloed aan daglicht. ’s Avonds creëren de wandlampen een warme, gezellige sfeer. Vanuit de zithoek kijk je uit op de sfeervolle, onderhoudsvriendelijke tuin. De geplande nieuwe lichtkoepel (februari 2026) zal deze ruimte nóg lichter en energiezuiniger maken.
Via een buitenportaal is de bijkeuken bereikbaar. Deze praktische ruimte (2,64 m x 4,29 m) is voorzien van witgoedaansluitingen en de verdeler van de zonnepanelen.
Eerste verdieping
Ook de eerste verdieping is met zorg afgewerkt. Doorlopende laminaatvloeren, strakke wanden en plafonds, kunststof kozijnen met HR++ glas en rolluiken zorgen voor comfort en rust. De slaapkamer aan de voorzijde beschikt over een vaste schuifwandkast.
De badkamer is modern en compleet: een inloopdouche met rainshower, wastafel, wandcloset, designradiator en een sfeervolle nis met spotverlichting. Het tegelwerk is stijlvol en de ruimte beschikt over mechanische ventilatie en HR++ beglazing.
Zolder
Via een vaste trap bereik je de ruime zolder met dakvenster, dakisolatie en houten vloer. Hier bevindt zich de Intergas HR-ketel (2024). De ruimte leent zich uitstekend voor het realiseren van een extra slaap- of hobbykamer. Het zolderraam wordt in 2026 vernieuwd, wat de lichtinval verder verbetert.
Op de aanbouw en berging liggen 10 zonnepanelen van 260 Wp per stuk (totaal 2600 Wp). De verdeler bevindt zich in de wasruimte.
Tuin
De achtertuin ligt op het westen en is sfeervol en onderhoudsvriendelijk aangelegd. Mooie bestrating, groene borders en geïntegreerde zitbanken maken dit een fijne plek om te genieten van het buitenleven. De tuin is bereikbaar via de woonkamer en via een achterom. Door de diepe oprit is het mogelijk om uw eigen auto op eigen terrein te parkeren. In 2021 is er een heerlijke tuinkamer gerealiseerd. Hier kun je rustig zitten en ontspannen. Achter de tuinkamer bevindt zich nog een kleine bergruimte die plek biedt voor het opbergen van diverse spullen.
Bijzonderheden van deze woning:
- Duurzame hoekwoning in woonwijk Moesel
- Luxe keuken met kookeiland en apparatenwand
- 3 fijne slaapkamers
- Kunststof kozijnen met HR++ glas
- Vloerverwarming op de begane grond
- 10 zonnepanelen (2600 Wp)
- Royale aanbouw met lichtkoepel en schuifpui (nieuwe lichtkoepel gepland in 2026)
- Screens voorzijde en schuifpui (2021)
- Airco’s begane grond en overloop (2023)
- Intergas HR cv-ketel (2024)
- Vaste trap naar ruime zolder (mogelijkheid extra kamer)
- Parkeren op eigen oprit
- Onderhoudsvriendelijke tuin op het westen met achterom
- Uitstekend geïsoleerd (dak, vloer, muren, HR++ glas)
- Gelegen nabij scholen en winkels
+ Read more
- Read less
Construction: {{
product.build_year }}
Construction: {{ product.build_period.start }} -
{{ product.build_period.end }}
House
, Single-family house
{{ product.rooms }} rooms
{{ product.bedrooms
}} bedrooms
Living space: {{
product.living_space }} m²
Plot: {{
product.plot_surface }} m²
Energy class: {{ product.energy_class }}
Energy index: {{ product.energy_index }}
Characteristics
{{ field.label }}
{{ field.value }}
+ Read more
{{ field.label }}
{{ field.value }}
- Read less
{{ product.company.name }}
Contact us
{{ product.company.phone.replace('-', ' ').substr(0, 7) }}...
{{ product.company.phone.replace('-', ' ') }}
Share:
Date