Available
€ {{ product.price.replace(/\B(?=(\d{4})+(?!\d))/g, ".") }} {{ __(product.price_condition) }}
Photo’s
{{ product.images.length }}
Floorplan
{{ product.plans.length }}
360° photo’s {{ product.panoramas.length }}
Video’s {{ product.videos.length }}
Maps
All media
Land for sale Boterbloem ong Heerlen
€ {{ product.price.replace(/\B(?=(\d{4})+(?!\d))/g, ".") }} {{ __(product.price_condition) }}
Available
Description
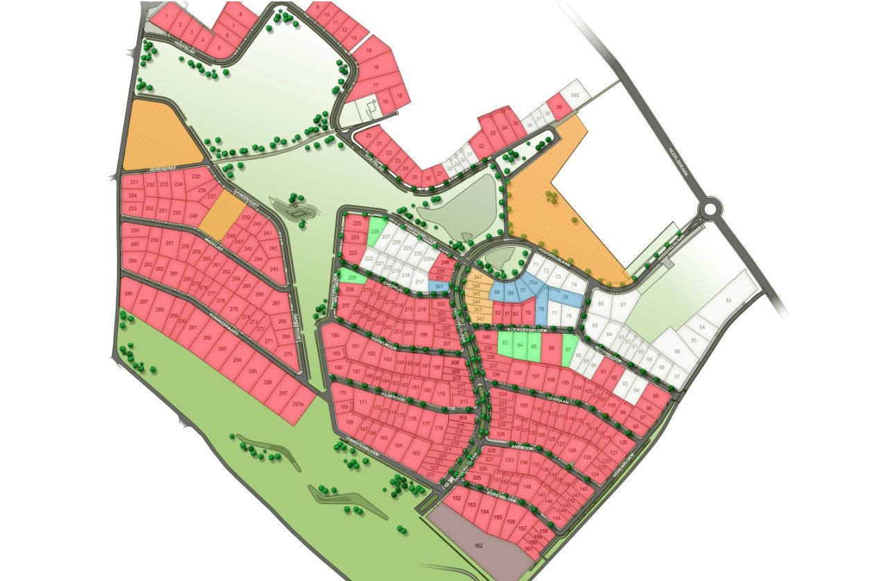
Riante bouwkavels op Park Hoogveld van 562-859 m²!
Aan de zuidelijke rand van Heerlen, in een typisch stukje van het glooiende Limburgse heuvelland, is Park Hoogveld gelegen. Park Hoogveld biedt u het beste uit 2 werelden. Enerzijds de levendigheid en het gemak van alle stadse voorzieningen in de buurt, anderzijds de rust en ruimte van het talrijke groen in en om de woonwijk. Wonen in Park Hoogveld betekent genieten van een diverse en moderne straatbeeld binnen een parkachtige omgeving. Park Hoogveld is een vernieuwende woonwijk, met ruimte voor uw droomhuis!
In Park Hoogveld worden over het nieuwbouwplan verspreid bouwkavels uitgegeven. Hierop kunt u zelf, samen met de architect van uw keuze, uw droomhuis realiseren. Hoge kwaliteit en variatie in architectuur zijn de pijlers waarop Park Hoogveld wordt ingericht. Dat geldt ook voor de woningen die in eigen beheer worden gebouwd. Het beeldkwaliteitsplan geeft hiervoor duidelijke richtlijnen en waarborgt de nodige samenhang en kwaliteit.
Wij kunnen u diverse kavels aanbieden variërend in grootte van 467-859 m² met prijzen vanaf € 184.125,- v.o.n.
Voor meer informatie neemt u contact op met Jos Toussaint van Damen Makelaardij in Heerlen.
Aan de zuidelijke rand van Heerlen, in een typisch stukje van het glooiende Limburgse heuvelland, is Park Hoogveld gelegen. Park Hoogveld biedt u het beste uit 2 werelden. Enerzijds de levendigheid en het gemak van alle stadse voorzieningen in de buurt, anderzijds de rust en ruimte van het talrijke groen in en om de woonwijk. Wonen in Park Hoogveld betekent genieten van een diverse en moderne straatbeeld binnen een parkachtige omgeving. Park Hoogveld is een vernieuwende woonwijk, met ruimte voor uw droomhuis!
In Park Hoogveld worden over het nieuwbouwplan verspreid bouwkavels uitgegeven. Hierop kunt u zelf, samen met de architect van uw keuze, uw droomhuis realiseren. Hoge kwaliteit en variatie in architectuur zijn de pijlers waarop Park Hoogveld wordt ingericht. Dat geldt ook voor de woningen die in eigen beheer worden gebouwd. Het beeldkwaliteitsplan geeft hiervoor duidelijke richtlijnen en waarborgt de nodige samenhang en kwaliteit.
Wij kunnen u diverse kavels aanbieden variërend in grootte van 467-859 m² met prijzen vanaf € 184.125,- v.o.n.
Voor meer informatie neemt u contact op met Jos Toussaint van Damen Makelaardij in Heerlen.
+ Read more
- Read less
Construction: {{
product.build_year }}
Construction: {{ product.build_period.start }} -
{{ product.build_period.end }}
Land
{{ product.rooms }} rooms
{{ product.bedrooms
}} bedrooms
Living space: {{
product.living_space }} m²
Plot: {{
product.plot_surface }} m²
Energy class: {{ product.energy_class }}
Energy index: {{ product.energy_index }}
Characteristics
{{ field.label }}
{{ field.value }}
+ Read more
{{ field.label }}
{{ field.value }}
- Read less
{{ product.company.name }}
Contact us
{{ product.company.phone.replace('-', ' ').substr(0, 7) }}...
{{ product.company.phone.replace('-', ' ') }}
Share:
Date