Available
€ {{ product.price.replace(/\B(?=(\d{4})+(?!\d))/g, ".") }} {{ __(product.price_condition) }}
Photo’s
{{ product.images.length }}
Floorplan
{{ product.plans.length }}
360° photo’s {{ product.panoramas.length }}
Video’s {{ product.videos.length }}
Maps
All media
Land for sale Maalbroek ong Roermond
€ {{ product.price.replace(/\B(?=(\d{4})+(?!\d))/g, ".") }} {{ __(product.price_condition) }}
Available
Description
Op een prachtige locatie in Asenray, omgeven door groen, bieden wij deze bouwkavel te koop aan op 507 m² met bijbehorend schetsontwerp/omgevingsvergunning (voor het afwijken van regels in het omgevingsplan)! Hier kan u een prachtige, in landelijke stijl, levensloopbestendige woning bouwen.
De omgevingsvergunning voor het afwijken van de regels in het omgevingsplan is reeds ontvangen op basis van het bijbehorend schetsontwerp.
Om de woning daadwerkelijk te bouwen moet er nog een vergunning aan worden aangevraagd/melding worden ingediend voor de onderdelen:
- Bouwactiviteit (omgevingsplan);
- Bouwactiviteit (technisch);
- Uitweg/ inrit.
Hier kunnen onze adviseurs ruimtelijke ordening u mee van dienst zijn.
De te realiseren woning is passend in het straatbeeld bij de ruimtelijke karakteristiek van het dorpse woonmilieu van Asenray. De levensloopbestendige woning bestaat uit één woonlaag en kent de zelfde oriëntatie als de naastgelegen woning. De nieuwe woning fungeert als een overgang tussen de bebouwde kom en het buitengebied, wat bijdraagt aan een harmonieuze integratie in het landschap. De woning sluit voor wat betreft uitstraling en soort (levensloopbestendige nultredenwoning) aan op de bestaande situatie in de omgeving.
De bouwkavel biedt de mogelijkheid om één vrijstaande woning bestaande uit één bouwlaag (begane grond) en verdieping onder het dak. Voor deze woningen gelden de afmetingen en contouren zoals vastgelegd in het ter beschikking gestelde bouwplan. Nadere detailering en welstandsaspecten van de exacte uitstraling van de
woning zijn naar eigen invulling en ter beoordeling aan de gemeentelijke Adviescomissie Omgevingskwaliteit (AOK).
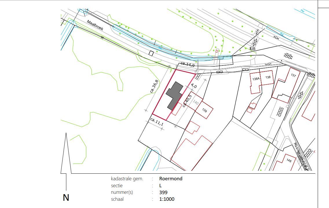
De breedte van het perceel aan de straatzijde bedraagt ca. 14,9 meter;
De breedte van het perceel aan de achterzijde bedraagt ca. 11,1 meter;
De breedte van het perceel aan de linkerzijde bedraagt ca. 36,8 meter;
De breedte van het perceel aan de rechterzijde bedraagt ca. 40,5 meter.
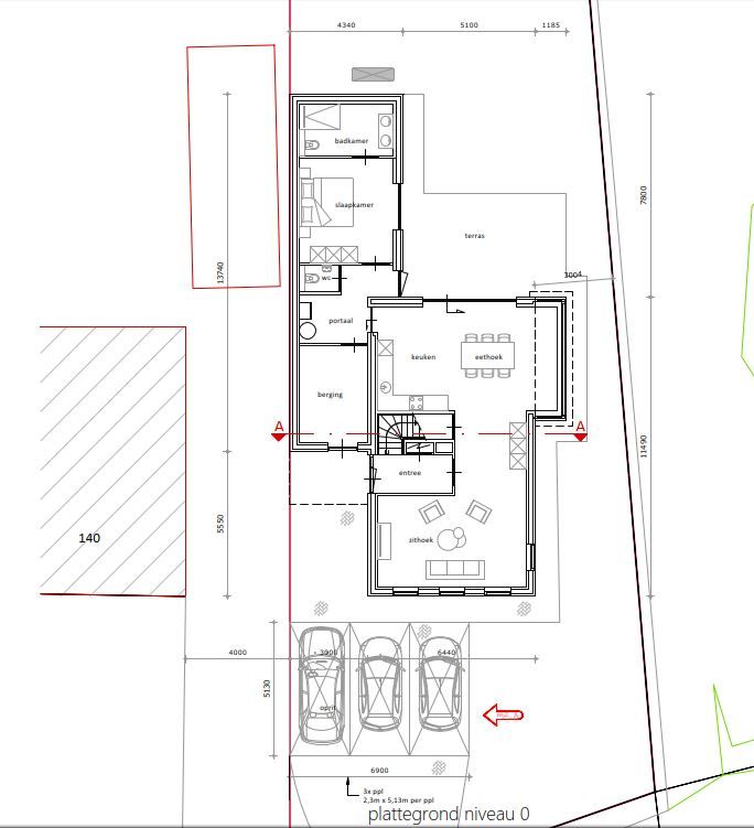
De indeling:
Begane grond:
Via de linkerzijde betreedt u de entree/hal met meterkast. De L-vormige woonkamer (ca. 6,44 meter breed x ca. 5,55 meter diep) beschikt over voldoende plaats voor het creëren van een sfeervolle zithoek. De ruime open keuken biedt diverse mogelijkheden voor het realiseren van uw droomkeuken met eethoek en grote schuifpui met zicht op de achtertuin. De berging is zowel vanuit de oprit, als vanuit het portaal te bereiken. Bovendien bevindt zich hier het apart toilet. Vervolgens betreedt u de slaapkamer en badkamer.
De totale afmetingen bedragen ca. 9,44 meter breed en 13,74 meter diep.
Verdieping:
De trapopgang bevindt zich in de entree/hal. De overloop biedt toegang tot 2 slaapkamers en een 2e badkamer. Bovendien is er een technische ruimte voorzien voor de optelling van installaties.
De afmetingen bedragen ca. 6,44 meter breed en ca. 11,49 meter diep (buitenmaten).
Zijn er kleine wijzigingen gewenst? Dit kunt u in nader overleg met onze architect bespreken.
Ligging
Het perceel is gelegen aan de rand van de kern van Asenray, een kerkdorp van Roermond met vrije uitloop naar de achterliggende natuur en op een steenworp afstand van de huis- en tuinboulevard. In de directe omgeving zijn alle noodzakelijke voorzieningen aanwezig. In de nabijheid liggen diverse fraaie natuurgebieden zoals o.a. Nationaal Park de Meinweg. De op- en afrit naar de snelweg A73 en N280 zijn op enkele minuten afstand gelegen. Binnen 45 autominuten zijn zowel Eindhoven, Maatricht als Düsseldorf bereikbaar. De gemeente Roermond heeft de ruimte om te wonen en te werken en is rijkelijk bedeeld met bedrijven, winkels, scholen, verenigingen, bezienswaardigheden en sportfaciliteiten. Temidden van de landerijen, natuur- en bosgebieden in het uitgestrekte buitengebied vindt u veel agrarische bedrijven.
De omgeving is zeer bosrijk met diverse natuurmonumenten, o.a. het Pieterpad, uitgebreide fiets-, wandel en paardrijroutes brengen u naar fraaie rustgevende plekjes. Roermond ligt aan nationale en internationale wegverbindingen en heeft een intercity NS-station. Ook via het spoor is Roermond uitstekend bereikbaar. Het centrum van Roermond biedt veel winkel- en horecavoorzieningen, niet alleen voor de eigen inwoners maar voor de hele streek en voor het Duitse achterland.
Bijzonderheden:
- Aanvaarding in overleg;
- Kosten voor de huisaansluitingen van de nutsvoorzieningen zijn voor rekening van koper;
- Door koper nog aan te vragen vergunningen / meldingen voor Bouwactiviteit (omgevingsplan), bouwactiviteit (technisch), uitweg/ inrit;
- Geen randvoorwaarden voor bodem- en luchtkwaliteit, archeologie en cultuurhistorie.
- De bestemmingsplanregels en de omgevingsvergunning kunt u terugvinden via omgevingswet.overheid.nl/regels-op-de-kaart;
- Het schetsontwerp en de omgevingsvergunning worden u op eerste verzoek toegezonden.
De omgevingsvergunning voor het afwijken van de regels in het omgevingsplan is reeds ontvangen op basis van het bijbehorend schetsontwerp.
Om de woning daadwerkelijk te bouwen moet er nog een vergunning aan worden aangevraagd/melding worden ingediend voor de onderdelen:
- Bouwactiviteit (omgevingsplan);
- Bouwactiviteit (technisch);
- Uitweg/ inrit.
Hier kunnen onze adviseurs ruimtelijke ordening u mee van dienst zijn.
De te realiseren woning is passend in het straatbeeld bij de ruimtelijke karakteristiek van het dorpse woonmilieu van Asenray. De levensloopbestendige woning bestaat uit één woonlaag en kent de zelfde oriëntatie als de naastgelegen woning. De nieuwe woning fungeert als een overgang tussen de bebouwde kom en het buitengebied, wat bijdraagt aan een harmonieuze integratie in het landschap. De woning sluit voor wat betreft uitstraling en soort (levensloopbestendige nultredenwoning) aan op de bestaande situatie in de omgeving.
De bouwkavel biedt de mogelijkheid om één vrijstaande woning bestaande uit één bouwlaag (begane grond) en verdieping onder het dak. Voor deze woningen gelden de afmetingen en contouren zoals vastgelegd in het ter beschikking gestelde bouwplan. Nadere detailering en welstandsaspecten van de exacte uitstraling van de
woning zijn naar eigen invulling en ter beoordeling aan de gemeentelijke Adviescomissie Omgevingskwaliteit (AOK).
De breedte van het perceel aan de straatzijde bedraagt ca. 14,9 meter;
De breedte van het perceel aan de achterzijde bedraagt ca. 11,1 meter;
De breedte van het perceel aan de linkerzijde bedraagt ca. 36,8 meter;
De breedte van het perceel aan de rechterzijde bedraagt ca. 40,5 meter.
De indeling:
Begane grond:
Via de linkerzijde betreedt u de entree/hal met meterkast. De L-vormige woonkamer (ca. 6,44 meter breed x ca. 5,55 meter diep) beschikt over voldoende plaats voor het creëren van een sfeervolle zithoek. De ruime open keuken biedt diverse mogelijkheden voor het realiseren van uw droomkeuken met eethoek en grote schuifpui met zicht op de achtertuin. De berging is zowel vanuit de oprit, als vanuit het portaal te bereiken. Bovendien bevindt zich hier het apart toilet. Vervolgens betreedt u de slaapkamer en badkamer.
De totale afmetingen bedragen ca. 9,44 meter breed en 13,74 meter diep.
Verdieping:
De trapopgang bevindt zich in de entree/hal. De overloop biedt toegang tot 2 slaapkamers en een 2e badkamer. Bovendien is er een technische ruimte voorzien voor de optelling van installaties.
De afmetingen bedragen ca. 6,44 meter breed en ca. 11,49 meter diep (buitenmaten).
Zijn er kleine wijzigingen gewenst? Dit kunt u in nader overleg met onze architect bespreken.
Ligging
Het perceel is gelegen aan de rand van de kern van Asenray, een kerkdorp van Roermond met vrije uitloop naar de achterliggende natuur en op een steenworp afstand van de huis- en tuinboulevard. In de directe omgeving zijn alle noodzakelijke voorzieningen aanwezig. In de nabijheid liggen diverse fraaie natuurgebieden zoals o.a. Nationaal Park de Meinweg. De op- en afrit naar de snelweg A73 en N280 zijn op enkele minuten afstand gelegen. Binnen 45 autominuten zijn zowel Eindhoven, Maatricht als Düsseldorf bereikbaar. De gemeente Roermond heeft de ruimte om te wonen en te werken en is rijkelijk bedeeld met bedrijven, winkels, scholen, verenigingen, bezienswaardigheden en sportfaciliteiten. Temidden van de landerijen, natuur- en bosgebieden in het uitgestrekte buitengebied vindt u veel agrarische bedrijven.
De omgeving is zeer bosrijk met diverse natuurmonumenten, o.a. het Pieterpad, uitgebreide fiets-, wandel en paardrijroutes brengen u naar fraaie rustgevende plekjes. Roermond ligt aan nationale en internationale wegverbindingen en heeft een intercity NS-station. Ook via het spoor is Roermond uitstekend bereikbaar. Het centrum van Roermond biedt veel winkel- en horecavoorzieningen, niet alleen voor de eigen inwoners maar voor de hele streek en voor het Duitse achterland.
Bijzonderheden:
- Aanvaarding in overleg;
- Kosten voor de huisaansluitingen van de nutsvoorzieningen zijn voor rekening van koper;
- Door koper nog aan te vragen vergunningen / meldingen voor Bouwactiviteit (omgevingsplan), bouwactiviteit (technisch), uitweg/ inrit;
- Geen randvoorwaarden voor bodem- en luchtkwaliteit, archeologie en cultuurhistorie.
- De bestemmingsplanregels en de omgevingsvergunning kunt u terugvinden via omgevingswet.overheid.nl/regels-op-de-kaart;
- Het schetsontwerp en de omgevingsvergunning worden u op eerste verzoek toegezonden.
+ Read more
- Read less
Construction: {{
product.build_year }}
Construction: {{ product.build_period.start }} -
{{ product.build_period.end }}
Land
{{ product.rooms }} rooms
{{ product.bedrooms
}} bedrooms
Living space: {{
product.living_space }} m²
Plot: {{
product.plot_surface }} m²
Energy class: {{ product.energy_class }}
Energy index: {{ product.energy_index }}
Characteristics
{{ field.label }}
{{ field.value }}
+ Read more
{{ field.label }}
{{ field.value }}
- Read less
{{ product.company.name }}
Contact us
{{ product.company.phone.replace('-', ' ').substr(0, 7) }}...
{{ product.company.phone.replace('-', ' ') }}
Share:
Date