Verkocht onder voorbehoud
€ {{ product.price.replace(/\B(?=(\d{4})+(?!\d))/g, ".") }} {{ __(product.price_condition) }}
Foto’s
{{ product.images.length }}
Plattegrond
{{ product.plans.length }}
360° foto's {{ product.panoramas.length }}
Video’s {{ product.videos.length }}
Kaarten
Alle media
Appartement te koop Schoutenstraatje 27 B Venray
€ {{ product.price.replace(/\B(?=(\d{4})+(?!\d))/g, ".") }} {{ __(product.price_condition) }}
Verkocht onder voorbehoud
Omschrijving
In het hart van het centrum van Venray worden aan het Schoutenstraatje vier instapklare nieuwbouwappartementen gerealiseerd. Het betreft een transformatieproject waarbij comfort, licht en modern woongemak centraal staan. De appartementen zijn momenteel in aanbouw en de verwachte oplevering staat gepland voor eind maart 2026. Alle appartementen worden compleet opgeleverd en zijn voorzien van een luxe keuken met inbouwapparatuur, glad gestucte en gesausde wanden en plafonds, kunststof kozijnen met triple glas, mechanische ventilatie, elektrische verwarming en een eigen berging in het souterrain.
Schoutenstraatje 27 B
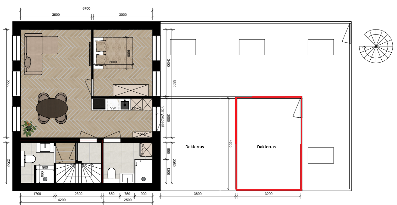
Appartement B is gelegen op de begane grond en beschikt over een royaal woonoppervlakte van circa 61 m². De woonkamer meet circa 35 m² en profiteert van veel daglicht dankzij twee grote daklichten. De open keuken wordt luxe uitgevoerd in een moderne kleurstelling en is voorzien van zwarte Inventum inbouwapparatuur, waaronder een inductiekookplaat met vier kookzones, vaatwasser, koelkast, combimagnetron en een matzwarte wandschouwafzuigkap. Uniek aan dit appartement is het noordelijk gelegen dakterras van circa 17 m², een fijne buitenruimte midden in het centrum. De badkamer is modern uitgevoerd met een inloopdouche, hoogwaardig sanitair en een elektrische designradiator. Daarnaast beschikt dit appartement over een separaat toilet.
Het energielabel A is gebaseerd op het huidige pand; voor de afzonderlijke appartementen moet het label nog worden opgesteld. De appartementen beschikken straks over triple glas en elektrische boiler waardoor het appartement wellicht een beter energielabel zal krijgen.
Schoutenstraatje 27 B
Appartement B is gelegen op de begane grond en beschikt over een royaal woonoppervlakte van circa 61 m². De woonkamer meet circa 35 m² en profiteert van veel daglicht dankzij twee grote daklichten. De open keuken wordt luxe uitgevoerd in een moderne kleurstelling en is voorzien van zwarte Inventum inbouwapparatuur, waaronder een inductiekookplaat met vier kookzones, vaatwasser, koelkast, combimagnetron en een matzwarte wandschouwafzuigkap. Uniek aan dit appartement is het noordelijk gelegen dakterras van circa 17 m², een fijne buitenruimte midden in het centrum. De badkamer is modern uitgevoerd met een inloopdouche, hoogwaardig sanitair en een elektrische designradiator. Daarnaast beschikt dit appartement over een separaat toilet.
Het energielabel A is gebaseerd op het huidige pand; voor de afzonderlijke appartementen moet het label nog worden opgesteld. De appartementen beschikken straks over triple glas en elektrische boiler waardoor het appartement wellicht een beter energielabel zal krijgen.
+ Lees meer
- Lees minder
Bouw: {{
product.build_year }}
Bouw: {{ product.build_period.start }} -
{{ product.build_period.end }}
Appartement
, Benedenwoning
{{ product.rooms }} Kamers
{{ product.bedrooms
}} Slaapkamers
Woonruimte: {{
product.living_space }} m²
Perceel: {{
product.plot_surface }} m²
Energielabel: {{ product.energy_class }}
Energie index: {{ product.energy_index }}
Kenmerken
{{ field.label }}
{{ field.value }}
+ Lees meer
{{ field.label }}
{{ field.value }}
- Lees minder
{{ product.company.name }}
Contact opnemen
{{ product.company.phone.replace('-', ' ').substr(0, 7) }}...
{{ product.company.phone.replace('-', ' ') }}
Delen:
Datum