Under offer
€ {{ product.price.replace(/\B(?=(\d{4})+(?!\d))/g, ".") }} {{ __(product.price_condition) }}
Photo’s
{{ product.images.length }}
Floorplan
{{ product.plans.length }}
360° photo’s {{ product.panoramas.length }}
Video’s {{ product.videos.length }}
Maps
All media
House for sale Eurenderweg 69 Heerlen
€ {{ product.price.replace(/\B(?=(\d{4})+(?!\d))/g, ".") }} {{ __(product.price_condition) }}
Under offer
Description
Op top locatie, in kindvriendelijke woonwijk, aan de Eurenderweg gelegen half vrijstaand woonhuis. Deze woning beschikt o.a. over 4 slaapkamers, riante living, ruime oprit, tuin en moderne open keuken. Het realiseren van een kantoor/ praktijk aan huis behoort tot de mogelijkheden.
Indeling:
Begane grond:
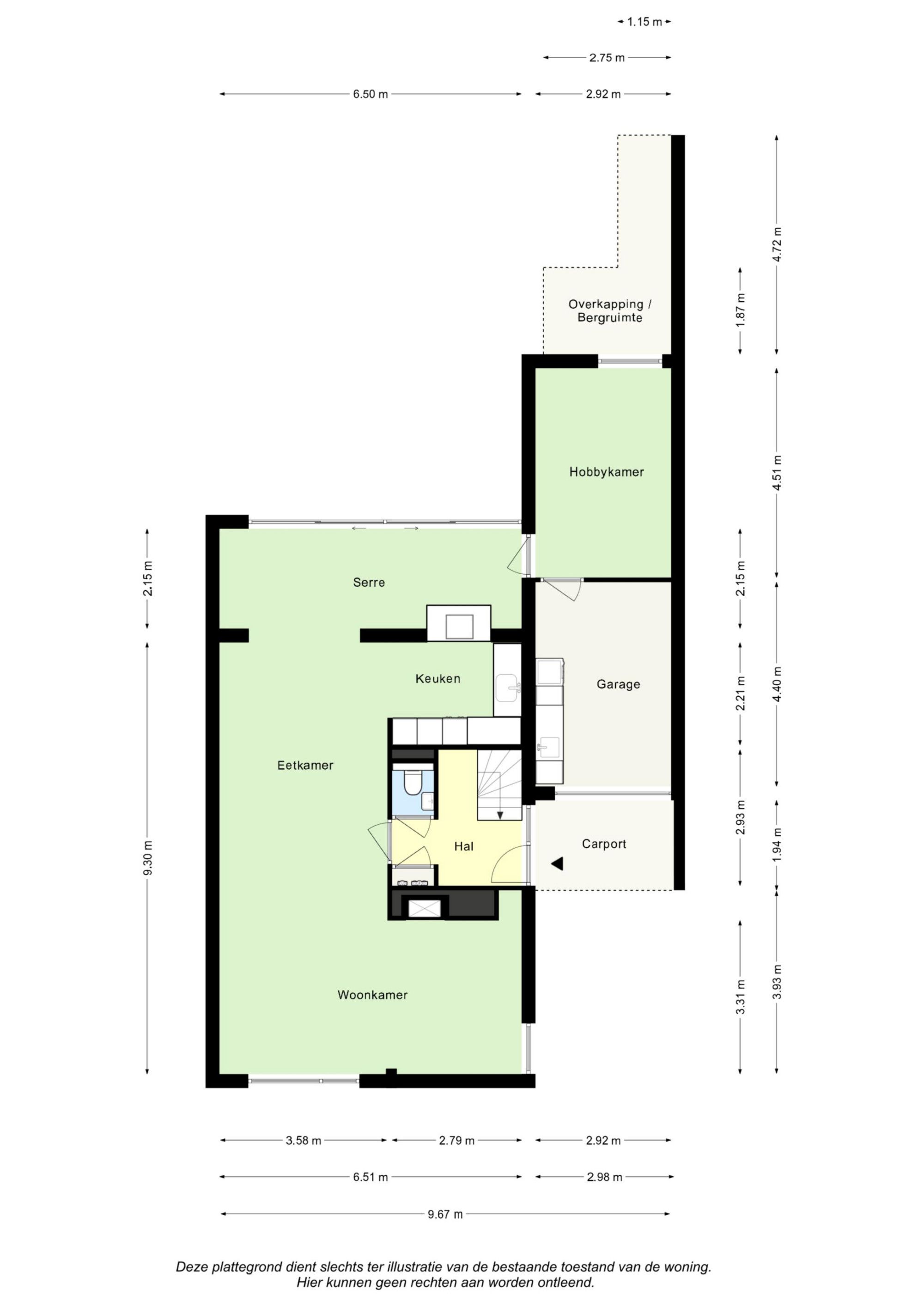
Vanuit de ruime oprit/ voortuin te bereiken overdekte entree, de hal-entree biedt toegang tot moderne toiletruimte en living. De sfeervolle living (ca 42 m2) v.v. parketvloer heeft een open verbinding naar keuken en serre. De aan de voorzijde gelegen woonkamer is v.v. een houtkachel, het geheel wordt gekenmerkt door de vele daglichttoetreding. De moderne open keuken (2,79 m x 2,21 m) is v.v. een plavuizenvloer en installatie/ apparatuur t.w.: Quooker, combi- oven, koelkast, 4-pits inductiekookplaat met geïntrigeerde afzuiging en vaatwasser. Deze is geplaatst in 2022.
Vanuit de riante serre (6,50 m x 2,15 m) heeft men toegang tot hobbyruimte en middels schuifpui direct contact met terras/ tuin. De hobbykamer (4,51 m x 2,92 m) is voor diverse doeleinde geschikt o.a. kantoor/ praktijk aan huis en biedt toegang tot de inpandige garage. De garage (4,40 m x 2,75 m) is v.v. elektrische poort.
Tuin:
De onderhoudsvriendelijke achtertuin is v.v. een gazon, terras en separate bergruimte.
1e verdieping: (geheel v.v. laminaatvloer)
Overloop met muurkast biedt toegang tot 3 slaapkamers en moderne badkamer. Slaapkamer I (4,92 m x 3,58 m) met toegang tot balkon, is net als slaapkamer II (3,87 m x 2,81 m) aan de voorzijde gelegen. Slaapkamer III (4,29 m x 3,59 m) is aan de achterzijde gelegen. De moderne, geheel betegelde badkamer (2,79 m x 2,19 m) is v.v. een ruime inloopdouche, zwevend closet, ligbad en dubbele wastafel.
2e verdieping: (middels vaste trap te bereiken en geheel v.v. laminaatvloer)
Vanuit de overloop bereikt men slaapkamer IV (6,38 m x 3,52 m) deze is v.v. een dakkapel (geplaatst in 2021), stookruimte en berging.
Extra’s:
- Energielabel A
- In-stap-klaar
- Rustig gelegen, in kindvriendelijke woonwijk
- Zonnepanelen (15 stuks 2015)
Ligging: aan rustige weg, in woonwijk, nabij winkels, scholen en invalswegen
Isolatie: volledig geïsoleerd
Installatie: cv-ketel (eigendom 2016)
Bouwjaar: 1978
Perceel oppervlakte: 301 m2
Vraagprijs: €550.000,- k.k.
Aanvaarding: in overleg
Alle door ons verstrekte informatie omtrent onroerende zaken moet worden beschouwd als een uitnodiging om in onderhandeling te treden en is geheel vrijblijvend. Maten en informatie bij benadering. Aan deze beperkte informatie kunnen geen rechten worden ontleend. Koper is te allen tijde gerechtigd voor eigen rekening een bouwkundige keuring te (laten) verrichten dan wel andere adviseurs te raadplegen teneinde een goed inzicht te verkrijgen over de staat van onderhoud. De waarborgsom/bankgarantie bedraagt 10% van de koopsom. De koper dient deze 2 weken ná het vervallen van de ontbindende voorwaarden bij de desbetreffende notaris te deponeren. Voor nadere inlichtingen kunt u contact opnemen of een afspraak maken met ons kantoor.
Indeling:
Begane grond:
Vanuit de ruime oprit/ voortuin te bereiken overdekte entree, de hal-entree biedt toegang tot moderne toiletruimte en living. De sfeervolle living (ca 42 m2) v.v. parketvloer heeft een open verbinding naar keuken en serre. De aan de voorzijde gelegen woonkamer is v.v. een houtkachel, het geheel wordt gekenmerkt door de vele daglichttoetreding. De moderne open keuken (2,79 m x 2,21 m) is v.v. een plavuizenvloer en installatie/ apparatuur t.w.: Quooker, combi- oven, koelkast, 4-pits inductiekookplaat met geïntrigeerde afzuiging en vaatwasser. Deze is geplaatst in 2022.
Vanuit de riante serre (6,50 m x 2,15 m) heeft men toegang tot hobbyruimte en middels schuifpui direct contact met terras/ tuin. De hobbykamer (4,51 m x 2,92 m) is voor diverse doeleinde geschikt o.a. kantoor/ praktijk aan huis en biedt toegang tot de inpandige garage. De garage (4,40 m x 2,75 m) is v.v. elektrische poort.
Tuin:
De onderhoudsvriendelijke achtertuin is v.v. een gazon, terras en separate bergruimte.
1e verdieping: (geheel v.v. laminaatvloer)
Overloop met muurkast biedt toegang tot 3 slaapkamers en moderne badkamer. Slaapkamer I (4,92 m x 3,58 m) met toegang tot balkon, is net als slaapkamer II (3,87 m x 2,81 m) aan de voorzijde gelegen. Slaapkamer III (4,29 m x 3,59 m) is aan de achterzijde gelegen. De moderne, geheel betegelde badkamer (2,79 m x 2,19 m) is v.v. een ruime inloopdouche, zwevend closet, ligbad en dubbele wastafel.
2e verdieping: (middels vaste trap te bereiken en geheel v.v. laminaatvloer)
Vanuit de overloop bereikt men slaapkamer IV (6,38 m x 3,52 m) deze is v.v. een dakkapel (geplaatst in 2021), stookruimte en berging.
Extra’s:
- Energielabel A
- In-stap-klaar
- Rustig gelegen, in kindvriendelijke woonwijk
- Zonnepanelen (15 stuks 2015)
Ligging: aan rustige weg, in woonwijk, nabij winkels, scholen en invalswegen
Isolatie: volledig geïsoleerd
Installatie: cv-ketel (eigendom 2016)
Bouwjaar: 1978
Perceel oppervlakte: 301 m2
Vraagprijs: €550.000,- k.k.
Aanvaarding: in overleg
Alle door ons verstrekte informatie omtrent onroerende zaken moet worden beschouwd als een uitnodiging om in onderhandeling te treden en is geheel vrijblijvend. Maten en informatie bij benadering. Aan deze beperkte informatie kunnen geen rechten worden ontleend. Koper is te allen tijde gerechtigd voor eigen rekening een bouwkundige keuring te (laten) verrichten dan wel andere adviseurs te raadplegen teneinde een goed inzicht te verkrijgen over de staat van onderhoud. De waarborgsom/bankgarantie bedraagt 10% van de koopsom. De koper dient deze 2 weken ná het vervallen van de ontbindende voorwaarden bij de desbetreffende notaris te deponeren. Voor nadere inlichtingen kunt u contact opnemen of een afspraak maken met ons kantoor.
+ Read more
- Read less
Construction: {{
product.build_year }}
Construction: {{ product.build_period.start }} -
{{ product.build_period.end }}
House
, Single-family house
{{ product.rooms }} rooms
{{ product.bedrooms
}} bedrooms
Living space: {{
product.living_space }} m²
Plot: {{
product.plot_surface }} m²
Energy class: {{ product.energy_class }}
Energy index: {{ product.energy_index }}
Characteristics
{{ field.label }}
{{ field.value }}
+ Read more
{{ field.label }}
{{ field.value }}
- Read less
{{ product.company.name }}
Contact us
{{ product.company.phone.replace('-', ' ').substr(0, 7) }}...
{{ product.company.phone.replace('-', ' ') }}
Share:
Date