Beschikbaar
€ {{ product.price.replace(/\B(?=(\d{4})+(?!\d))/g, ".") }} {{ __(product.price_condition) }}
Foto’s
{{ product.images.length }}
Plattegrond
{{ product.plans.length }}
360° foto's {{ product.panoramas.length }}
Video’s {{ product.videos.length }}
Kaarten
Alle media
Woonhuis te koop Voorste Bosweg 15 Schinveld
€ {{ product.price.replace(/\B(?=(\d{4})+(?!\d))/g, ".") }} {{ __(product.price_condition) }}
Beschikbaar
Omschrijving
WELKOM BIJ VOORSTE BOSWEG 15 IN SCHINVELD!
Wonen op een idyllische plek, aan de rand van de Schinveldse Bossen.
In het charmante kerkdorp Schinveld, bekend om zijn gemoedelijke sfeer, uitstekende voorzieningen en prachtige natuurgebieden, ligt deze ruime twee-onder-een-kap-woning. Een comfortabel en degelijk gebouwd woonhuis waar dagelijks woongenot centraal staat, met de bossen letterlijk om de hoek.
Wanneer u binnenstapt, valt meteen de lichte doorzon woonkamer op. De parketvloer geeft een warme uitstraling, terwijl de zithoek aan de voorzijde – voorzien van audio-/visuele aansluitingen – uitnodigt tot ontspannen. Aan de achterzijde ligt de eetkamer, waar dubbele openslaande deuren zorgen voor een vloeiende overgang naar de serre en direct tuincontact creëren.
De gesloten keukenruimte is uitgevoerd in een landelijke stijl en voorzien van een klassieke hoekopstelling met diverse inbouwapparatuur. Een fijne plek voor wie van koken en gezelligheid houdt.
De royale serre/wintertuin vormt een echte aanvulling op de leefruimte. Met een onderhoudsvriendelijke plavuizenvloer, glazen wanden en een schuifpui richting de tuin, geniet u hier het hele jaar door van licht en rust – of het nu lente, zomer of winter is.
Op de verdieping bevinden zich drie ruime slaapkamers. De hoofdslaapkamer, een sfeervolle logeerkamer en een hobby-/studeerkamer zijn allen praktisch ingedeeld, waarbij vaste kastenwanden zorgen voor meer dan voldoende opbergruimte.
De badkamer is geheel betegeld en uitgerust met een douchecabine, een badkamermeubel met wastafel en een tweede toilet.
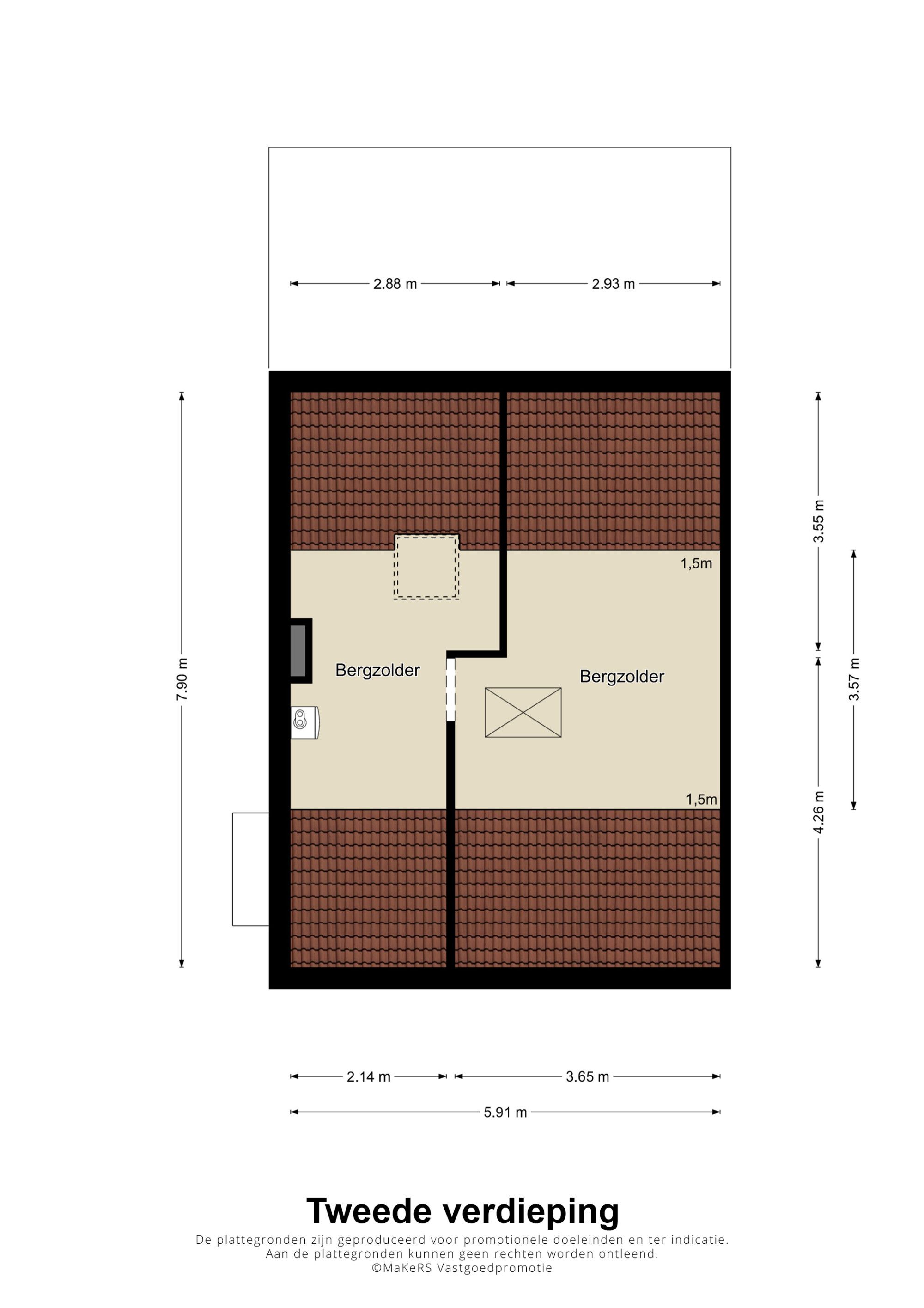
De zolder is bereikbaar via een vlizotrap en biedt extra bergruimte. Hier bevindt zich ook de standplaats van de Remeha Calenta CV-combiketel. De mogelijkheid bestaat om een vaste trap te realiseren.
Een groot pluspunt is het volledig onderkelderde karakter van de woning. De kelder biedt diverse multifunctionele ruimtes die gebruikt kunnen worden als werkplaats, hobbyruimte, sportkamer of voorraadkelder. De inpandige garage met elektrisch bedienbare sectionaalpoort zorgt voor optimaal gemak.
Qua duurzaamheid is de woning voorzien van spouwmuurisolatie, grotendeels dubbele beglazing, rolluiken en 12 zonnepanelen. Het energielabel betreft D.
De ligging is uitstekend: een kindvriendelijke woonomgeving met een speelveld aan de voorzijde en alle dagelijkse voorzieningen op korte afstand. Supermarkt, winkels, basisschool met kinderopvang, bibliotheek, speeltuin, cafetaria, restaurants, ijssalon, maneges en sportfaciliteiten – alles ligt binnen handbereik. Bovendien bevinden het prachtige wandelgebied van de Schinveldse Bossen én het zweefvliegveld zich letterlijk op loopafstand.
De bereikbaarheid is eveneens uitstekend dankzij openbaar vervoer en de nabijheid van de Parkstadring N300 met verbindingen richting Maastricht, Aken, Eindhoven en het Duitse achterland.
Voorste Bosweg 15 is een heerlijk royaal en compleet familiehuis op een unieke plek in Schinveld – ideaal voor wie ruimte, comfort en natuur zoekt.
Wilt u deze woning zelf ervaren? Een bezichtiging laat pas echt zien hoeveel kwaliteit en sfeer dit huis biedt.
INDELING:
SOUTERRAIN:
De woning is geheel onderkelderd en heeft diverse multifunctionele ruimtes. Er is en voorraad-/provisiekelder met een eenvoudig aanrechtblok voorzien van een wasbak.
Een berging met extra opslagmogelijkheid en een aparte hobbyruimte.
De inpandige garage biedt parkeergelegenheid voor een auto en is voorzien van een elektrisch bedienbare sectionaalpoort. Voorgelegen oprit.
BEGANE GROND:
Hal / Entree, garderobehoek, trappenhuis naar de eerste verdieping en het souterrain. Meterkast voorzien van 8 groepsinstallatie / 2x aardlekschakelaar / aparte groep voor de zonnepanelen / glasvezel / digitale meters met dag- en nachtstroomaansluiting. Modern geheel betegeld gastentoilet met zwevend wandcloset en fonteintje. Loopdeur naar de keuken.
Ruime lichte doorzon woonkamer met aan de voorzijde de zithoek voorzien van audio-/visuele aansluitingen en achtergelegen eetkamer met dubbele openslaande tuindeuren naar de serre/tuinkamer. Deze is afgewerkt met een parketvloer. Doorgang naar de gesloten keuken.
Een keukenruimte voorzien van een klassieke inbouwkeuken in hoekopstelling, uitgevoerd in landelijke stijl en voorzien van apparatuur, te weten: 4 zones keramische kookplaat / afzuigkap / wasbak / elektrische oven / koelkast en veel opbergruimte. Toegang tot de woonkamer en loopdeur naar de serre en achtertuin.
Achtergelegen royale serre/wintertuin, voorzien van glazen wanden, een schuifpui en loopdeur naar de achtertuin.
Geheel omsloten onderhoudsvriendelijke achtertuin voorzien van een beklinkerd terras, borders met aanplanting, zijingang en veel privacy.
VERDIEPING:
Overloop met toegang tot de slaapvertrekken, de badkamer en vlizotrap naar de zolder.
Aan linker achterzijde gelegen, slaapkamer welke in gebruik is als hobby-/studeerkamer.
De slaapkamer rechtsachter is voorzien van muurkasten en in gebruik als logeerkamer.
De geheel betegelde badkamer is voorzien van een douchecabine / vaste wastafel in een badkamermeubel en tweede toilet.
Voorgelegen hoofdslaapkamer met vaste kastenwand.
ZOLDER:
Vlizotrap naar de zolder. Veel bergruimte en standplaats voor de Remeha Calenta CV-Combi-ketel (Bouwjaar 2013 / Eigendom). Op het hoofddak zijn 12 zonnepanelen aanwezig.
BIJZONDERHEDEN:
* RUIME TWEE-ONDER-EEN-KAP-WONING IN GELIEFDE EN POPULAIRE WOONOMGEVING
* VRIJ UITZICHT OP EEN VELDJE AAN DE VOORZIJDE
* LICHTE DOORZON WOONKAMER MET ZITHOEK VOORZIEN VAN AUDIO-/VISUELE AANSLUITINGEN
* ACHTERGELEGEN EETKAMER MET DUBBELE OPENSLAANDE TUINDEUREN
* SERRE/WINTERTUIN VOORZIEN VAN GLAZENWANDEN EN SCHUIFPUI
* GESLOTEN KEUKEN AAN DE ACHTERZIJDE VOORZIEN VAN EEN KLASSIEKE INBOUWKEUKEN
* GEHEEL BETEGELD GASTENTOILET MET ZWEVEND WANDCLOSET EN FONTEINTJE
* DRIE SLAAPKAMERS OP DE VERDIEPING
* GEHEEL BETEGELDE BADKAMER MET DOUCHECABINE / VASTE WASTAFEL IN EEN MEUBEL EN TWEEDE TOILET
* BERGZOLDER BEREIKBAAR MET EEN VLIZOTRAP, MOGELIJKHEID TOT VASTE TRAP
* SOUTERRAIN VOOR OPSLAG, PROVISIE- EN HOBBYRUIMTE
* INPANDIGE GARAGE MET ELEKTRISCHE SECTIONAAL POORT
* OMSLOTEN ACHTERTUIN MET BORDERS VOORZIEN VAN AANPLANTING EN ZIJ-INGANG
* OPRIT MET PARKEERGELEGENHEID VOOR MEERDERE VOERTUIGEN OP EIGEN TERREIN
* SPOUWMUURISOLATIE
* HOUTEN KOZIJNEN MET DEELS DUBBELE BEGLAZING
* GROTENDEELS ROLLUIKEN
* REMEHA CALENTA CV-COMBIKETEL (BOUWJAAR 2013 / EIGENDOM)
* 12 ZONNEPANELEN
* ENERGIELABEL "D"
HET PAND IS VOORZIEN VAN SPOUWMUURISOLATIE, HOUTEN KOZIJNEN MET DEELS DUBBELE BEGLAZING EN GROTENDEELS ROLLUIKEN. REMEHA CALENTA CV-COMBI KETEL COMBIKETEL EN 12 ZONNEPANELEN. EEN ROYALE SERRE/WINTERTUIN. GEHEEL ONDERKELDERD MET DIVERSE MULTIFUNCTIONELE RUIMTES. INPANDIGE GARAGE MET ELEKTRISCHE SECTIONAAL POORT EN VOORGELEGEN OPRIT. VRIJ UITZICHT OP EEN VELDJE.
HET GEHEEL IS GELEGEN NABIJ DE DORPSKERN VAN SCHINVELD. ALLE VOORZIENINGEN IN DE DIRECTE OMGEVING O.A. EEN SUPERMARKT / WINKELS / BASISSCHOOL / BIBLIOTHEEK / SPEELTUIN / CAFETARIA / IJSSALON / MANEGES EN DIVERSE SPORTFACILITEITEN. HET WANDELGEBIED VAN DE SCHINVELDSE BOSSEN EN HET ZWEEFVLIEGVELD ZIJN OP LOOPAFSTAND BEREIKBAAR.
GOEDE BEREIKBAARHEID MIDDELS OPENBAAR VERVOER , UITVALSWEGEN EN PARKSTADRING (N300) RICHTING MAASTRICHT, AKEN EN EINDHOVEN ALSMEDE HET DUITSE ACHTERLAND.
Ter bescherming van de belangen van zowel koper als ook verkoper wordt uitdrukkelijk gesteld dat een koopovereenkomst met betrekking tot deze onroerende zaak eerst dan tot stand komt nadat koper en verkoper de koopovereenkomst hebben ondertekend (schriftelijkheidsvereiste).
De waarborgsom/bankgarantie is 10% van de koopsom. De koper dient deze binnen 2 weken nadat het financieringsvoorbehoud is verlopen bij de desbetreffende notaris te deponeren.
Indien cv-ketel en/of warmwatervoorziening een huurtoestel is, dient koper de huurovereenkomst over te nemen. Dit geldt ook wanneer de installatie voor de zonnepanelen op huurbasis aanwezig is.
Alle door ons kantoor verstrekte informatie omtrent onroerende zaken, moet beschouwd worden als een uitnodiging om in onderhandeling te treden en is geheel vrijblijvend! Alle vermelde maten en afmetingen zijn slechts bij benadering. Een (eventueel) bijgevoegde plattegrond dient uitsluitend als globale indicatie/visualisatie. Aan deze beperkte informatie
kunnen geen rechten worden ontleend.
Indien in enige documentatie of op enige website informatie staat die niet overeen komt met de werkelijkheid, dan geldt de feitelijke situatie waarin de woning zich bevindt, zoals koper deze tijdens de bezichtiging heeft kunnen waarnemen, en wordt de woning in deze feitelijke situatie/staat verkocht.
Wonen op een idyllische plek, aan de rand van de Schinveldse Bossen.
In het charmante kerkdorp Schinveld, bekend om zijn gemoedelijke sfeer, uitstekende voorzieningen en prachtige natuurgebieden, ligt deze ruime twee-onder-een-kap-woning. Een comfortabel en degelijk gebouwd woonhuis waar dagelijks woongenot centraal staat, met de bossen letterlijk om de hoek.
Wanneer u binnenstapt, valt meteen de lichte doorzon woonkamer op. De parketvloer geeft een warme uitstraling, terwijl de zithoek aan de voorzijde – voorzien van audio-/visuele aansluitingen – uitnodigt tot ontspannen. Aan de achterzijde ligt de eetkamer, waar dubbele openslaande deuren zorgen voor een vloeiende overgang naar de serre en direct tuincontact creëren.
De gesloten keukenruimte is uitgevoerd in een landelijke stijl en voorzien van een klassieke hoekopstelling met diverse inbouwapparatuur. Een fijne plek voor wie van koken en gezelligheid houdt.
De royale serre/wintertuin vormt een echte aanvulling op de leefruimte. Met een onderhoudsvriendelijke plavuizenvloer, glazen wanden en een schuifpui richting de tuin, geniet u hier het hele jaar door van licht en rust – of het nu lente, zomer of winter is.
Op de verdieping bevinden zich drie ruime slaapkamers. De hoofdslaapkamer, een sfeervolle logeerkamer en een hobby-/studeerkamer zijn allen praktisch ingedeeld, waarbij vaste kastenwanden zorgen voor meer dan voldoende opbergruimte.
De badkamer is geheel betegeld en uitgerust met een douchecabine, een badkamermeubel met wastafel en een tweede toilet.
De zolder is bereikbaar via een vlizotrap en biedt extra bergruimte. Hier bevindt zich ook de standplaats van de Remeha Calenta CV-combiketel. De mogelijkheid bestaat om een vaste trap te realiseren.
Een groot pluspunt is het volledig onderkelderde karakter van de woning. De kelder biedt diverse multifunctionele ruimtes die gebruikt kunnen worden als werkplaats, hobbyruimte, sportkamer of voorraadkelder. De inpandige garage met elektrisch bedienbare sectionaalpoort zorgt voor optimaal gemak.
Qua duurzaamheid is de woning voorzien van spouwmuurisolatie, grotendeels dubbele beglazing, rolluiken en 12 zonnepanelen. Het energielabel betreft D.
De ligging is uitstekend: een kindvriendelijke woonomgeving met een speelveld aan de voorzijde en alle dagelijkse voorzieningen op korte afstand. Supermarkt, winkels, basisschool met kinderopvang, bibliotheek, speeltuin, cafetaria, restaurants, ijssalon, maneges en sportfaciliteiten – alles ligt binnen handbereik. Bovendien bevinden het prachtige wandelgebied van de Schinveldse Bossen én het zweefvliegveld zich letterlijk op loopafstand.
De bereikbaarheid is eveneens uitstekend dankzij openbaar vervoer en de nabijheid van de Parkstadring N300 met verbindingen richting Maastricht, Aken, Eindhoven en het Duitse achterland.
Voorste Bosweg 15 is een heerlijk royaal en compleet familiehuis op een unieke plek in Schinveld – ideaal voor wie ruimte, comfort en natuur zoekt.
Wilt u deze woning zelf ervaren? Een bezichtiging laat pas echt zien hoeveel kwaliteit en sfeer dit huis biedt.
INDELING:
SOUTERRAIN:
De woning is geheel onderkelderd en heeft diverse multifunctionele ruimtes. Er is en voorraad-/provisiekelder met een eenvoudig aanrechtblok voorzien van een wasbak.
Een berging met extra opslagmogelijkheid en een aparte hobbyruimte.
De inpandige garage biedt parkeergelegenheid voor een auto en is voorzien van een elektrisch bedienbare sectionaalpoort. Voorgelegen oprit.
BEGANE GROND:
Hal / Entree, garderobehoek, trappenhuis naar de eerste verdieping en het souterrain. Meterkast voorzien van 8 groepsinstallatie / 2x aardlekschakelaar / aparte groep voor de zonnepanelen / glasvezel / digitale meters met dag- en nachtstroomaansluiting. Modern geheel betegeld gastentoilet met zwevend wandcloset en fonteintje. Loopdeur naar de keuken.
Ruime lichte doorzon woonkamer met aan de voorzijde de zithoek voorzien van audio-/visuele aansluitingen en achtergelegen eetkamer met dubbele openslaande tuindeuren naar de serre/tuinkamer. Deze is afgewerkt met een parketvloer. Doorgang naar de gesloten keuken.
Een keukenruimte voorzien van een klassieke inbouwkeuken in hoekopstelling, uitgevoerd in landelijke stijl en voorzien van apparatuur, te weten: 4 zones keramische kookplaat / afzuigkap / wasbak / elektrische oven / koelkast en veel opbergruimte. Toegang tot de woonkamer en loopdeur naar de serre en achtertuin.
Achtergelegen royale serre/wintertuin, voorzien van glazen wanden, een schuifpui en loopdeur naar de achtertuin.
Geheel omsloten onderhoudsvriendelijke achtertuin voorzien van een beklinkerd terras, borders met aanplanting, zijingang en veel privacy.
VERDIEPING:
Overloop met toegang tot de slaapvertrekken, de badkamer en vlizotrap naar de zolder.
Aan linker achterzijde gelegen, slaapkamer welke in gebruik is als hobby-/studeerkamer.
De slaapkamer rechtsachter is voorzien van muurkasten en in gebruik als logeerkamer.
De geheel betegelde badkamer is voorzien van een douchecabine / vaste wastafel in een badkamermeubel en tweede toilet.
Voorgelegen hoofdslaapkamer met vaste kastenwand.
ZOLDER:
Vlizotrap naar de zolder. Veel bergruimte en standplaats voor de Remeha Calenta CV-Combi-ketel (Bouwjaar 2013 / Eigendom). Op het hoofddak zijn 12 zonnepanelen aanwezig.
BIJZONDERHEDEN:
* RUIME TWEE-ONDER-EEN-KAP-WONING IN GELIEFDE EN POPULAIRE WOONOMGEVING
* VRIJ UITZICHT OP EEN VELDJE AAN DE VOORZIJDE
* LICHTE DOORZON WOONKAMER MET ZITHOEK VOORZIEN VAN AUDIO-/VISUELE AANSLUITINGEN
* ACHTERGELEGEN EETKAMER MET DUBBELE OPENSLAANDE TUINDEUREN
* SERRE/WINTERTUIN VOORZIEN VAN GLAZENWANDEN EN SCHUIFPUI
* GESLOTEN KEUKEN AAN DE ACHTERZIJDE VOORZIEN VAN EEN KLASSIEKE INBOUWKEUKEN
* GEHEEL BETEGELD GASTENTOILET MET ZWEVEND WANDCLOSET EN FONTEINTJE
* DRIE SLAAPKAMERS OP DE VERDIEPING
* GEHEEL BETEGELDE BADKAMER MET DOUCHECABINE / VASTE WASTAFEL IN EEN MEUBEL EN TWEEDE TOILET
* BERGZOLDER BEREIKBAAR MET EEN VLIZOTRAP, MOGELIJKHEID TOT VASTE TRAP
* SOUTERRAIN VOOR OPSLAG, PROVISIE- EN HOBBYRUIMTE
* INPANDIGE GARAGE MET ELEKTRISCHE SECTIONAAL POORT
* OMSLOTEN ACHTERTUIN MET BORDERS VOORZIEN VAN AANPLANTING EN ZIJ-INGANG
* OPRIT MET PARKEERGELEGENHEID VOOR MEERDERE VOERTUIGEN OP EIGEN TERREIN
* SPOUWMUURISOLATIE
* HOUTEN KOZIJNEN MET DEELS DUBBELE BEGLAZING
* GROTENDEELS ROLLUIKEN
* REMEHA CALENTA CV-COMBIKETEL (BOUWJAAR 2013 / EIGENDOM)
* 12 ZONNEPANELEN
* ENERGIELABEL "D"
HET PAND IS VOORZIEN VAN SPOUWMUURISOLATIE, HOUTEN KOZIJNEN MET DEELS DUBBELE BEGLAZING EN GROTENDEELS ROLLUIKEN. REMEHA CALENTA CV-COMBI KETEL COMBIKETEL EN 12 ZONNEPANELEN. EEN ROYALE SERRE/WINTERTUIN. GEHEEL ONDERKELDERD MET DIVERSE MULTIFUNCTIONELE RUIMTES. INPANDIGE GARAGE MET ELEKTRISCHE SECTIONAAL POORT EN VOORGELEGEN OPRIT. VRIJ UITZICHT OP EEN VELDJE.
HET GEHEEL IS GELEGEN NABIJ DE DORPSKERN VAN SCHINVELD. ALLE VOORZIENINGEN IN DE DIRECTE OMGEVING O.A. EEN SUPERMARKT / WINKELS / BASISSCHOOL / BIBLIOTHEEK / SPEELTUIN / CAFETARIA / IJSSALON / MANEGES EN DIVERSE SPORTFACILITEITEN. HET WANDELGEBIED VAN DE SCHINVELDSE BOSSEN EN HET ZWEEFVLIEGVELD ZIJN OP LOOPAFSTAND BEREIKBAAR.
GOEDE BEREIKBAARHEID MIDDELS OPENBAAR VERVOER , UITVALSWEGEN EN PARKSTADRING (N300) RICHTING MAASTRICHT, AKEN EN EINDHOVEN ALSMEDE HET DUITSE ACHTERLAND.
Ter bescherming van de belangen van zowel koper als ook verkoper wordt uitdrukkelijk gesteld dat een koopovereenkomst met betrekking tot deze onroerende zaak eerst dan tot stand komt nadat koper en verkoper de koopovereenkomst hebben ondertekend (schriftelijkheidsvereiste).
De waarborgsom/bankgarantie is 10% van de koopsom. De koper dient deze binnen 2 weken nadat het financieringsvoorbehoud is verlopen bij de desbetreffende notaris te deponeren.
Indien cv-ketel en/of warmwatervoorziening een huurtoestel is, dient koper de huurovereenkomst over te nemen. Dit geldt ook wanneer de installatie voor de zonnepanelen op huurbasis aanwezig is.
Alle door ons kantoor verstrekte informatie omtrent onroerende zaken, moet beschouwd worden als een uitnodiging om in onderhandeling te treden en is geheel vrijblijvend! Alle vermelde maten en afmetingen zijn slechts bij benadering. Een (eventueel) bijgevoegde plattegrond dient uitsluitend als globale indicatie/visualisatie. Aan deze beperkte informatie
kunnen geen rechten worden ontleend.
Indien in enige documentatie of op enige website informatie staat die niet overeen komt met de werkelijkheid, dan geldt de feitelijke situatie waarin de woning zich bevindt, zoals koper deze tijdens de bezichtiging heeft kunnen waarnemen, en wordt de woning in deze feitelijke situatie/staat verkocht.
+ Lees meer
- Lees minder
Bouw: {{
product.build_year }}
Bouw: {{ product.build_period.start }} -
{{ product.build_period.end }}
Woonhuis
, Eengezinswoning
{{ product.rooms }} Kamers
{{ product.bedrooms
}} Slaapkamers
Woonruimte: {{
product.living_space }} m²
Perceel: {{
product.plot_surface }} m²
Energielabel: {{ product.energy_class }}
Energie index: {{ product.energy_index }}
Kenmerken
{{ field.label }}
{{ field.value }}
+ Lees meer
{{ field.label }}
{{ field.value }}
- Lees minder
{{ product.company.name }}
Contact opnemen
{{ product.company.phone.replace('-', ' ').substr(0, 7) }}...
{{ product.company.phone.replace('-', ' ') }}
Delen:
Datum