Verkocht
€ {{ product.price.replace(/\B(?=(\d{4})+(?!\d))/g, ".") }} {{ __(product.price_condition) }}
Foto’s
{{ product.images.length }}
Plattegrond
{{ product.plans.length }}
360° foto's {{ product.panoramas.length }}
Video’s {{ product.videos.length }}
Kaarten
Alle media
Woonhuis te koop Burgemeester Gommansstraat 116 Venlo
€ {{ product.price.replace(/\B(?=(\d{4})+(?!\d))/g, ".") }} {{ __(product.price_condition) }}
Verkocht
Omschrijving
In perfecte staat van onderhoud en gunstig gelegen nabij uitvalswegen én op korte afstand van treinstation Blerick, ligt deze middels garage geschakelde vrijstaande woning.
De woning beschikt over vier slaapkamers, een oprit, serre en een fraai aangelegde, zonnige achtertuin (2019) op het noorden. Recent gemoderniseerd en instap klaar, met extra aandacht voor duurzaamheid dankzij 13 zonnepanelen (2018).
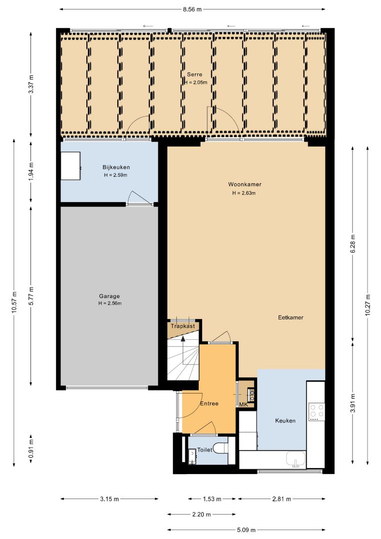
Indeling. Begane grond:
Binnenkomst via een nette hal met een keramische tegelvloer voorzien van vloerverwarming. Het toilet is in 2024 vernieuwd en uitgevoerd als zwevend model met een fonteintje.
De ruime, neutraal afgewerkte woonkamer beschikt over een keramische tegelvloer met vloerverwarming en airconditioning. Aan de voorzijde ligt de moderne hoogglans keuken (december 2022), voorzien van een composiet werkblad en diverse inbouwapparatuur: een koelkast, 5-pits inductiekookplaat, afzuigkap, Quooker, combimagnetron, oven en vaatwasser.
Aan de achterzijde van de woning bevindt zich een royale aluminium serre met glazen schuifpui. Deze lichte ruimte vormt een comfortabele uitbreiding van de woonkamer en biedt toegang tot de bijkeuken, waar plaats is voor onder andere een diepvries.
De inpandige garage is bereikbaar via de bijkeuken en voorzien van een elektrisch bedienbare sectionaalpoort (2022) en een uitstortgootsteen.
Eerste verdieping:
Via de overloop met een recent gelegde laminaatvloer (2024) zijn drie slaapkamers en de badkamer bereikbaar. Alle slaapkamers zijn voorzien van dezelfde moderne laminaatvloer (2024), wat zorgt voor een rustige en uniforme uitstraling. De grote slaapkamer beschikt over een frans balkon, wat zorgt voor extra lichtinval.
De luxe badkamer (2024) is modern afgewerkt en voorzien van een brede inloop-regendouche, een wastafel met meubel, een zwevend toilet en comfortabele vloerverwarming.
Tweede verdieping:
De tweede verdieping is bereikbaar via een vaste trap en is, net als de eerste verdieping, voorzien van een doorlopende laminaatvloer. De overloop beschikt over een Velux dakraam (2023) en biedt ruimte aan de technische installaties, waaronder de witgoedaansluitingen, de warmte terugwininstallatie en de opstelling van de cv-ketel. Ook is hier een airconditioning geplaatst (2018) welke de hele bovenetages kan koelen.
Daarnaast bevindt zich op deze verdieping de ruime vierde slaapkamer, voorzien van een Velux dakraam en praktische bergruimte achter het knieschot.
Bijzonderheden
Deze woning is gebouwd in 2008 en biedt een perceel van 211 m² met een woonoppervlakte van 122 m², overig inpandige ruimte 24 m², gebouw gebonden buitenruimte 28 m² en een inhoud van circa 533 m³. De woning is volledig geïsoleerd en beschikt over hardhouten kozijnen met thermische beglazing. De begane grond en eerste verdieping zijn voorzien van elektrisch bedienbare rolluiken, met uitzondering van het rolluik op de overloop. Aan de achterzijde van de woning, bij de serre, zijn geen rolluiken aanwezig.
Het huis is uitgerust met een warmte terugwinsysteem, dat in 2024 is onderhouden. De HR-combiketel (Remeha, 2022) is eigendom en heeft in 2025 een onderhoudsbeurt gehad. Het buitenschilderwerk is in 2021 uitgevoerd, en de serre is in 2018 voorzien van vloerisolatie en een nieuwe tegelvloer. In 2022 zijn de buitenmuren van de serre geïsoleerd, en in 2023 is het dak van de serre vervangen. De aanvaarding van de woning is in overleg.
De woning beschikt over vier slaapkamers, een oprit, serre en een fraai aangelegde, zonnige achtertuin (2019) op het noorden. Recent gemoderniseerd en instap klaar, met extra aandacht voor duurzaamheid dankzij 13 zonnepanelen (2018).
Indeling. Begane grond:
Binnenkomst via een nette hal met een keramische tegelvloer voorzien van vloerverwarming. Het toilet is in 2024 vernieuwd en uitgevoerd als zwevend model met een fonteintje.
De ruime, neutraal afgewerkte woonkamer beschikt over een keramische tegelvloer met vloerverwarming en airconditioning. Aan de voorzijde ligt de moderne hoogglans keuken (december 2022), voorzien van een composiet werkblad en diverse inbouwapparatuur: een koelkast, 5-pits inductiekookplaat, afzuigkap, Quooker, combimagnetron, oven en vaatwasser.
Aan de achterzijde van de woning bevindt zich een royale aluminium serre met glazen schuifpui. Deze lichte ruimte vormt een comfortabele uitbreiding van de woonkamer en biedt toegang tot de bijkeuken, waar plaats is voor onder andere een diepvries.
De inpandige garage is bereikbaar via de bijkeuken en voorzien van een elektrisch bedienbare sectionaalpoort (2022) en een uitstortgootsteen.
Eerste verdieping:
Via de overloop met een recent gelegde laminaatvloer (2024) zijn drie slaapkamers en de badkamer bereikbaar. Alle slaapkamers zijn voorzien van dezelfde moderne laminaatvloer (2024), wat zorgt voor een rustige en uniforme uitstraling. De grote slaapkamer beschikt over een frans balkon, wat zorgt voor extra lichtinval.
De luxe badkamer (2024) is modern afgewerkt en voorzien van een brede inloop-regendouche, een wastafel met meubel, een zwevend toilet en comfortabele vloerverwarming.
Tweede verdieping:
De tweede verdieping is bereikbaar via een vaste trap en is, net als de eerste verdieping, voorzien van een doorlopende laminaatvloer. De overloop beschikt over een Velux dakraam (2023) en biedt ruimte aan de technische installaties, waaronder de witgoedaansluitingen, de warmte terugwininstallatie en de opstelling van de cv-ketel. Ook is hier een airconditioning geplaatst (2018) welke de hele bovenetages kan koelen.
Daarnaast bevindt zich op deze verdieping de ruime vierde slaapkamer, voorzien van een Velux dakraam en praktische bergruimte achter het knieschot.
Bijzonderheden
Deze woning is gebouwd in 2008 en biedt een perceel van 211 m² met een woonoppervlakte van 122 m², overig inpandige ruimte 24 m², gebouw gebonden buitenruimte 28 m² en een inhoud van circa 533 m³. De woning is volledig geïsoleerd en beschikt over hardhouten kozijnen met thermische beglazing. De begane grond en eerste verdieping zijn voorzien van elektrisch bedienbare rolluiken, met uitzondering van het rolluik op de overloop. Aan de achterzijde van de woning, bij de serre, zijn geen rolluiken aanwezig.
Het huis is uitgerust met een warmte terugwinsysteem, dat in 2024 is onderhouden. De HR-combiketel (Remeha, 2022) is eigendom en heeft in 2025 een onderhoudsbeurt gehad. Het buitenschilderwerk is in 2021 uitgevoerd, en de serre is in 2018 voorzien van vloerisolatie en een nieuwe tegelvloer. In 2022 zijn de buitenmuren van de serre geïsoleerd, en in 2023 is het dak van de serre vervangen. De aanvaarding van de woning is in overleg.
+ Lees meer
- Lees minder
Bouw: {{
product.build_year }}
Bouw: {{ product.build_period.start }} -
{{ product.build_period.end }}
Woonhuis
, Eengezinswoning
{{ product.rooms }} Kamers
{{ product.bedrooms
}} Slaapkamers
Woonruimte: {{
product.living_space }} m²
Perceel: {{
product.plot_surface }} m²
Energielabel: {{ product.energy_class }}
Energie index: {{ product.energy_index }}
Kenmerken
{{ field.label }}
{{ field.value }}
+ Lees meer
{{ field.label }}
{{ field.value }}
- Lees minder
{{ product.company.name }}
Contact opnemen
{{ product.company.phone.replace('-', ' ').substr(0, 7) }}...
{{ product.company.phone.replace('-', ' ') }}
Delen:
Datum