Photo’s
34
Floorplan
4
Maps
All media
House for sale Steegstraat 31 Maasmechelen
Steegstraat 31
3630 Maasmechelen Belgium
Description
Uw droomwoning in Maasmechelen: ruimte, comfort en perfecte locatie Bent u op zoek naar een zeer ruime, instapklare gezinswoning op een toplocatie? Uw zoektocht eindigt hier! Deze prachtige woning, gelegen in een rustige buurt van Maasmechelen, combineert h
+ Read more
Construction: 2001 -
2010
House
, Single-family house
11 rooms
5 bedrooms
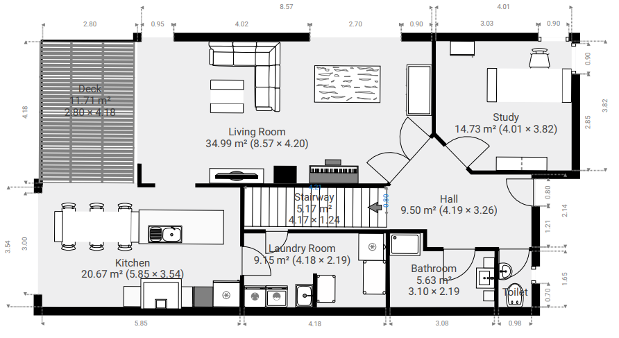
Living space: 300 m²
Plot: 471 m²
Energy class: C
Energy index: 20240621
Characteristics
Price
€ 469.000 kk
Status
Available
+ Read more
Construction
Type
Sale
Build Period
2001 2010
Construction type
Existing construction
Surfaces
Living Space
300 m²
Plot Surface
471 m²
Division
Number of rooms
11 rooms (5 bedrooms)
Number of flors
1
Date





































