Available
€ {{ product.price.replace(/\B(?=(\d{4})+(?!\d))/g, ".") }} {{ __(product.price_condition) }}
Photo’s
{{ product.images.length }}
Floorplan
{{ product.plans.length }}
360° photo’s {{ product.panoramas.length }}
Video’s {{ product.videos.length }}
Maps
All media
House for sale In De Bongerd 21 Bunde
€ {{ product.price.replace(/\B(?=(\d{4})+(?!\d))/g, ".") }} {{ __(product.price_condition) }}
Available
Description
Aan een rustig woonerf in het geliefde kerkdorp Bunde ligt deze goed onderhouden eindwoning met garage en tuin op het zuidoosten.
LIGGING
Bunde is een kerkdorp in de gemeente Meerssen en staat bekend om het uitstekende voorzieningenniveau en uitermate centrale ligging. Op loopafstand van de woning liggen o.a. 2 supermarkten, 2 basisscholen, diverse horecagelegenheden en een treinstation. Verder is het Bunderbos op loopafstand gelegen alsook sportpark het Heiveld alwaar de velden van de hockeyclub Meerssen, voetbalclub Bunde, Tennis- en padelclub Bunde, Golfclub Meerssen en Scouting Bunde.
INDELING
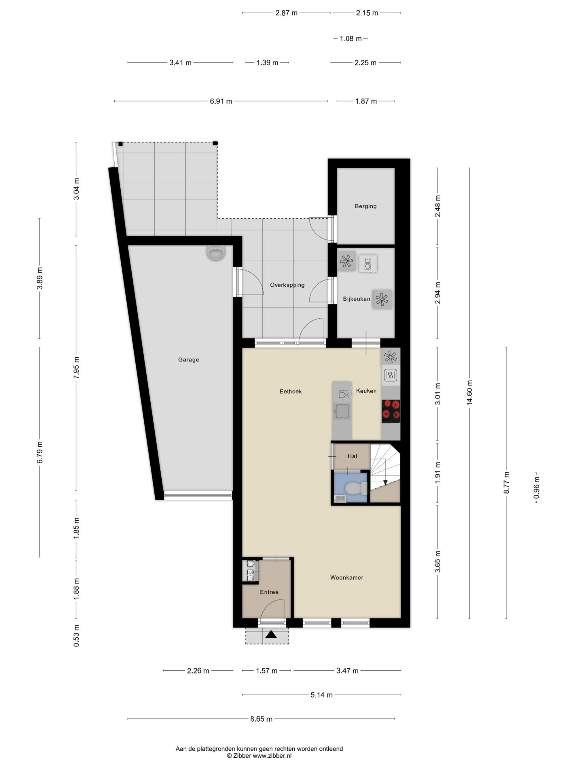
Begane grond
- Ontvangsthal met meterkast, trappenhuis en toegang tot de woonkamer.
- U-vormige woonkamer met open keuken (totaal ca. 38 m²) met een moderne keukenopstelling met een kookeiland en diverse inbouwapparatuur.
- Vanuit de keuken is de praktische bijkeuken bereikbaar met de witgoed aansluiting.
- Betegeld toilet met staand closet en fonteintje.
De gehele begane, m.u.v. de bijkeuken, is voorzien van een sfeervolle siergrindvloer.
Eerste verdieping
- Overloop met toegang tot de vertrekken en vlizotrap naar de zolder.
- Drie slaapkamers van respectievelijk ca. 7 m², ca. 14 m² en ca. 10 m². allen voorzien van een mooie laminaatvoer.
- Moderne badkamer van ca. 6 m² met douche, 2e toilet en wastafel.
Tweede verdieping
- Via vlizotrap bereikbare ruimte van ca. 16 m² met opstelplaats van de gehuurde HR combi installatie (ca. 1996).
Tuin
- Keurig aangelegde voortuin.
- Op het zuidoosten gelegen diepe achtertuin met terrasoverkapping, aangebouwde stenen berging van ca. 5 m² en een houten tuinberging.
BIJZONDERHEDEN
- Instapklare woning in een kindvriendelijke omgeving nabij diverse voorzieningen
- De woning is geheel voorzien van houten kozijnen met dubbele beglazing en grotendeels van rolluiken.
- 13 Zonnepanelen (eigendom, 2023).
- EPA Label B, geldig tot 22 december 2030.
AANSPRAKELIJKHEID
Het bovenstaande behelst slechts een globale omschrijving van een object. De informatie berust deels op door derden aan onze kantoren verstrekte gegevens. Met de meeste zorg hebben wij deze informatie verwerkt doch kunnen ten aanzien van de juistheid van deze gegevens geen aansprakelijkheid aanvaarden. Aan deze presentatie kunnen geen rechten worden ontleend.
ONTBINDING
De termijn die wordt opgenomen voor eventuele (overeengekomen) ontbindende voorwaarden (b.v. financiering) is in de regel circa 4 weken na het sluiten van de mondelinge wilsovereenstemming.
ZEKERHEIDSSTELLING
De waarborgsom/bankgarantie is 10% van de koopsom. De koper dient deze binnen 7 dagen na definitieve overeenkomst bij de desbetreffende notaris te deponeren.
ONDERZOEKSPLICHT VAN DE KOPER
Koper is te allen tijde gerechtigd voor eigen rekening een bouwkundige keuring te (laten) verrichten dan wel andere adviseurs te raadplegen teneinde een goed inzicht te verkrijgen in de staat van onderhoud.
LIGGING
Bunde is een kerkdorp in de gemeente Meerssen en staat bekend om het uitstekende voorzieningenniveau en uitermate centrale ligging. Op loopafstand van de woning liggen o.a. 2 supermarkten, 2 basisscholen, diverse horecagelegenheden en een treinstation. Verder is het Bunderbos op loopafstand gelegen alsook sportpark het Heiveld alwaar de velden van de hockeyclub Meerssen, voetbalclub Bunde, Tennis- en padelclub Bunde, Golfclub Meerssen en Scouting Bunde.
INDELING
Begane grond
- Ontvangsthal met meterkast, trappenhuis en toegang tot de woonkamer.
- U-vormige woonkamer met open keuken (totaal ca. 38 m²) met een moderne keukenopstelling met een kookeiland en diverse inbouwapparatuur.
- Vanuit de keuken is de praktische bijkeuken bereikbaar met de witgoed aansluiting.
- Betegeld toilet met staand closet en fonteintje.
De gehele begane, m.u.v. de bijkeuken, is voorzien van een sfeervolle siergrindvloer.
Eerste verdieping
- Overloop met toegang tot de vertrekken en vlizotrap naar de zolder.
- Drie slaapkamers van respectievelijk ca. 7 m², ca. 14 m² en ca. 10 m². allen voorzien van een mooie laminaatvoer.
- Moderne badkamer van ca. 6 m² met douche, 2e toilet en wastafel.
Tweede verdieping
- Via vlizotrap bereikbare ruimte van ca. 16 m² met opstelplaats van de gehuurde HR combi installatie (ca. 1996).
Tuin
- Keurig aangelegde voortuin.
- Op het zuidoosten gelegen diepe achtertuin met terrasoverkapping, aangebouwde stenen berging van ca. 5 m² en een houten tuinberging.
BIJZONDERHEDEN
- Instapklare woning in een kindvriendelijke omgeving nabij diverse voorzieningen
- De woning is geheel voorzien van houten kozijnen met dubbele beglazing en grotendeels van rolluiken.
- 13 Zonnepanelen (eigendom, 2023).
- EPA Label B, geldig tot 22 december 2030.
AANSPRAKELIJKHEID
Het bovenstaande behelst slechts een globale omschrijving van een object. De informatie berust deels op door derden aan onze kantoren verstrekte gegevens. Met de meeste zorg hebben wij deze informatie verwerkt doch kunnen ten aanzien van de juistheid van deze gegevens geen aansprakelijkheid aanvaarden. Aan deze presentatie kunnen geen rechten worden ontleend.
ONTBINDING
De termijn die wordt opgenomen voor eventuele (overeengekomen) ontbindende voorwaarden (b.v. financiering) is in de regel circa 4 weken na het sluiten van de mondelinge wilsovereenstemming.
ZEKERHEIDSSTELLING
De waarborgsom/bankgarantie is 10% van de koopsom. De koper dient deze binnen 7 dagen na definitieve overeenkomst bij de desbetreffende notaris te deponeren.
ONDERZOEKSPLICHT VAN DE KOPER
Koper is te allen tijde gerechtigd voor eigen rekening een bouwkundige keuring te (laten) verrichten dan wel andere adviseurs te raadplegen teneinde een goed inzicht te verkrijgen in de staat van onderhoud.
+ Read more
- Read less
Construction: {{
product.build_year }}
Construction: {{ product.build_period.start }} -
{{ product.build_period.end }}
House
, Single-family house
{{ product.rooms }} rooms
{{ product.bedrooms
}} bedrooms
Living space: {{
product.living_space }} m²
Plot: {{
product.plot_surface }} m²
Energy class: {{ product.energy_class }}
Energy index: {{ product.energy_index }}
Characteristics
{{ field.label }}
{{ field.value }}
+ Read more
{{ field.label }}
{{ field.value }}
- Read less
{{ product.company.name }}
Contact us
{{ product.company.phone.replace('-', ' ').substr(0, 7) }}...
{{ product.company.phone.replace('-', ' ') }}
Share:
Date