Sold under reservation
€ {{ product.price.replace(/\B(?=(\d{4})+(?!\d))/g, ".") }} {{ __(product.price_condition) }}
Photo’s
{{ product.images.length }}
Floorplan
{{ product.plans.length }}
360° photo’s {{ product.panoramas.length }}
Video’s {{ product.videos.length }}
Maps
All media
House for sale Jhr. V.d. Maesenstraat 47 Hulsberg
€ {{ product.price.replace(/\B(?=(\d{4})+(?!\d))/g, ".") }} {{ __(product.price_condition) }}
Sold under reservation
Description
Aan de rustige en kindvriendelijke Jhr. v.d. Maesenstraat in Hulsberg staat deze karakteristieke halfvrijstaande woning, ideaal voor gezinnen die ruimte, comfort en een fijne woonomgeving zoeken. De woning heeft een woonoppervlakte van 134 m² op een perceel van 385 m² en beschikt over een sfeervolle aanbouw met een ruime woonkamer en moderne badkamer. De woning is voorzien van recent vernieuwde kunststof kozijnen, een nieuw dak en combineert originele charme met modern wooncomfort.
Omgeving:
De woning ligt in een rustige en kindvriendelijke buurt met veel gezinnen. Het centrum van Hulsberg, een supermarkt en andere dagelijkse voorzieningen zijn op loopafstand bereikbaar, terwijl het treinstation op korte fietsafstand ligt. Voor automobilisten is de eerste uitvalsweg slechts één minuut rijden, waardoor zowel lokale als regionale bestemmingen snel bereikbaar zijn.
Leuk om te weten:
- Bouwjaar 1954 (conform BAG), eigen perceel: 385 m² (conform kadaster);
- Woonoppervlakte ca. 142m², overige inpandige ruimte ca. 35m², (meetrapport aanwezig);
- Inhoud: ca. 618m³;
- Energielabel C;
- Halfvrijstaande woning met ruime oprit, carport en garage;
- Vier slaapkamers, ruime zolderverdieping en praktische kelder;
- Airco in de woonkamer voor extra comfort;
- Recent vernieuwde kozijnen en dak;
- C.V. combiketel vernieuwd in 2024 (eigendom);
- Kunststof kozijnen voor onderhoudsvriendelijkheid;
- Aanvaarding in overleg.
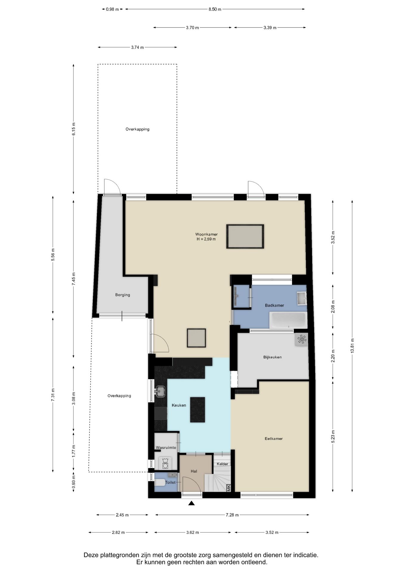
INDELING
Souterrain:
De kelder biedt praktische bergruimte en herbergt de cv-installatie, ideaal voor opslag en extra gemak in huis.
Begane grond:
Bij binnenkomst treft u de hal met garderobe en een apart, half betegeld toilet met fonteintje. De hal biedt toegang tot de keuken en de vaste trap naar de eerste verdieping, en vormt zo het centrale hart van de woning.
De keuken is modern en praktisch ingericht, met een 4-pits inductieplaat, oven, afzuigkap, vaatwasser en spoelbak. Vanuit de keuken zijn meerdere functionele ruimtes bereikbaar, zoals de bijruimte met koel- en vriesaansluiting, de wasruimte met aansluiting voor de wasmachine en toegang tot de kelder. De keuken staat in open verbinding met de eetkamer, die dankzij het grote raam veel natuurlijke lichtinval ontvangt, en via een klein afstapje met de ruime woonkamer in de aanbouw.
De woonkamer is sfeervol en voorzien van laminaatvloer en airco. Vanuit de woonkamer is de volledig betegelde badkamer bereikbaar, uitgerust met een ligbad, inloopdouche en wastafel met meubel. Daarnaast is er via de woonkamer directe toegang tot de tuin en de oprit, waardoor binnen en buiten naadloos in elkaar overlopen.
Eerste verdieping:
De eerste verdieping is bereikbaar via een vaste trap met spotverlichting en biedt drie ruime slaapkamers, allen voorzien van laminaatvloeren
- Slaapkamer 1 (achterzijde): ca. 5m², met twee dakramen die veel lichtinval bieden.
- Slaapkamer 2 (voorzijde): ca. 11 m², voorzien van rolluiken.
- Slaapkamer 3 (voorzijde): ca. 12 m², ook voorzien van rolluiken.
De overloop geeft toegang tot een apart, half betegeld toilet en de vaste trap naar de zolder.
Zolder:
De zolderverdieping beschikt over een vierde slaapkamer en een bergruimte, beide voorzien van vloerbedekking:
- Slaapkamer 4: ca. 11 m², ideaal als extra slaapkamer, kantoor of hobbyruimte.
Tuin:
De woning beschikt over een verzorgde voortuin met kiezels en een klein stukje groen, wat zorgt voor een onderhoudsvriendelijke en nette uitstraling. De oprit met carport biedt parkeergelegenheid voor meerdere auto’s en directe toegang tot de garage.
De royale achtertuin is veelzijdig ingedeeld en biedt volop mogelijkheden om te ontspannen of te spelen. Direct achter de woning ligt een betegeld terras, gevolgd door een loungegedeelte met houten overkapping. Achterin de tuin bevindt zich een groen gedeelte met een schuurtje, ideaal voor opslag of als praktische werkruimte. Via de tuin is er bovendien directe toegang tot de garage, wat het geheel zeer functioneel maakt.
De waarborgsom/bankgarantie is 10% van de koopsom. De koper dient deze, indien de verkoper en koper dit overeenkomen, binnen 2 weken nadat het financieringsvoorbehoud is verlopen bij de desbetreffende notaris te deponeren.
Ter bescherming van de belangen van zowel koper als ook verkoper wordt uitdrukkelijk gesteld dat een koopovereenkomst met betrekking tot deze onroerende zaak eerst dan tot stand komt nadat koper en verkoper de koopovereenkomst hebben getekend (schriftelijkheidsvereiste).
Indien c.v. ketel en/of warmwatervoorziening een huurtoestel is, dient koper de huurovereenkomst over te nemen.
Alle door ons kantoor verstrekte informatie omtrent onroerende zaken, moet beschouwd worden als een uitnodiging om in onderhandeling te treden, en is geheel vrijblijvend! Alle vermelde maten en afmetingen zijn slechts bij benadering. Aan deze beperkte info kunnen geen rechten worden ontleend. Indien in enige documentatie of op enige website informatie staat die niet overeen komt met de werkelijkheid, dan geldt de feitelijke situatie waarin de woning zich bevindt, zoals koper deze tijdens de bezichtiging heeft kunnen waarnemen, en wordt de woning in deze feitelijke situatie/staat verkocht. Een (eventueel) bijgevoegde plattegrond dient uitsluitend als globale indicatie/visualisatie. Hieraan kunnen uitdrukkelijk geen rechten worden ontleend.
De makelaar Marco Hanssen nodigt u uit voor een bezichtiging.
Omgeving:
De woning ligt in een rustige en kindvriendelijke buurt met veel gezinnen. Het centrum van Hulsberg, een supermarkt en andere dagelijkse voorzieningen zijn op loopafstand bereikbaar, terwijl het treinstation op korte fietsafstand ligt. Voor automobilisten is de eerste uitvalsweg slechts één minuut rijden, waardoor zowel lokale als regionale bestemmingen snel bereikbaar zijn.
Leuk om te weten:
- Bouwjaar 1954 (conform BAG), eigen perceel: 385 m² (conform kadaster);
- Woonoppervlakte ca. 142m², overige inpandige ruimte ca. 35m², (meetrapport aanwezig);
- Inhoud: ca. 618m³;
- Energielabel C;
- Halfvrijstaande woning met ruime oprit, carport en garage;
- Vier slaapkamers, ruime zolderverdieping en praktische kelder;
- Airco in de woonkamer voor extra comfort;
- Recent vernieuwde kozijnen en dak;
- C.V. combiketel vernieuwd in 2024 (eigendom);
- Kunststof kozijnen voor onderhoudsvriendelijkheid;
- Aanvaarding in overleg.
INDELING
Souterrain:
De kelder biedt praktische bergruimte en herbergt de cv-installatie, ideaal voor opslag en extra gemak in huis.
Begane grond:
Bij binnenkomst treft u de hal met garderobe en een apart, half betegeld toilet met fonteintje. De hal biedt toegang tot de keuken en de vaste trap naar de eerste verdieping, en vormt zo het centrale hart van de woning.
De keuken is modern en praktisch ingericht, met een 4-pits inductieplaat, oven, afzuigkap, vaatwasser en spoelbak. Vanuit de keuken zijn meerdere functionele ruimtes bereikbaar, zoals de bijruimte met koel- en vriesaansluiting, de wasruimte met aansluiting voor de wasmachine en toegang tot de kelder. De keuken staat in open verbinding met de eetkamer, die dankzij het grote raam veel natuurlijke lichtinval ontvangt, en via een klein afstapje met de ruime woonkamer in de aanbouw.
De woonkamer is sfeervol en voorzien van laminaatvloer en airco. Vanuit de woonkamer is de volledig betegelde badkamer bereikbaar, uitgerust met een ligbad, inloopdouche en wastafel met meubel. Daarnaast is er via de woonkamer directe toegang tot de tuin en de oprit, waardoor binnen en buiten naadloos in elkaar overlopen.
Eerste verdieping:
De eerste verdieping is bereikbaar via een vaste trap met spotverlichting en biedt drie ruime slaapkamers, allen voorzien van laminaatvloeren
- Slaapkamer 1 (achterzijde): ca. 5m², met twee dakramen die veel lichtinval bieden.
- Slaapkamer 2 (voorzijde): ca. 11 m², voorzien van rolluiken.
- Slaapkamer 3 (voorzijde): ca. 12 m², ook voorzien van rolluiken.
De overloop geeft toegang tot een apart, half betegeld toilet en de vaste trap naar de zolder.
Zolder:
De zolderverdieping beschikt over een vierde slaapkamer en een bergruimte, beide voorzien van vloerbedekking:
- Slaapkamer 4: ca. 11 m², ideaal als extra slaapkamer, kantoor of hobbyruimte.
Tuin:
De woning beschikt over een verzorgde voortuin met kiezels en een klein stukje groen, wat zorgt voor een onderhoudsvriendelijke en nette uitstraling. De oprit met carport biedt parkeergelegenheid voor meerdere auto’s en directe toegang tot de garage.
De royale achtertuin is veelzijdig ingedeeld en biedt volop mogelijkheden om te ontspannen of te spelen. Direct achter de woning ligt een betegeld terras, gevolgd door een loungegedeelte met houten overkapping. Achterin de tuin bevindt zich een groen gedeelte met een schuurtje, ideaal voor opslag of als praktische werkruimte. Via de tuin is er bovendien directe toegang tot de garage, wat het geheel zeer functioneel maakt.
De waarborgsom/bankgarantie is 10% van de koopsom. De koper dient deze, indien de verkoper en koper dit overeenkomen, binnen 2 weken nadat het financieringsvoorbehoud is verlopen bij de desbetreffende notaris te deponeren.
Ter bescherming van de belangen van zowel koper als ook verkoper wordt uitdrukkelijk gesteld dat een koopovereenkomst met betrekking tot deze onroerende zaak eerst dan tot stand komt nadat koper en verkoper de koopovereenkomst hebben getekend (schriftelijkheidsvereiste).
Indien c.v. ketel en/of warmwatervoorziening een huurtoestel is, dient koper de huurovereenkomst over te nemen.
Alle door ons kantoor verstrekte informatie omtrent onroerende zaken, moet beschouwd worden als een uitnodiging om in onderhandeling te treden, en is geheel vrijblijvend! Alle vermelde maten en afmetingen zijn slechts bij benadering. Aan deze beperkte info kunnen geen rechten worden ontleend. Indien in enige documentatie of op enige website informatie staat die niet overeen komt met de werkelijkheid, dan geldt de feitelijke situatie waarin de woning zich bevindt, zoals koper deze tijdens de bezichtiging heeft kunnen waarnemen, en wordt de woning in deze feitelijke situatie/staat verkocht. Een (eventueel) bijgevoegde plattegrond dient uitsluitend als globale indicatie/visualisatie. Hieraan kunnen uitdrukkelijk geen rechten worden ontleend.
De makelaar Marco Hanssen nodigt u uit voor een bezichtiging.
+ Read more
- Read less
Construction: {{
product.build_year }}
Construction: {{ product.build_period.start }} -
{{ product.build_period.end }}
House
, Single-family house
{{ product.rooms }} rooms
{{ product.bedrooms
}} bedrooms
Living space: {{
product.living_space }} m²
Plot: {{
product.plot_surface }} m²
Energy class: {{ product.energy_class }}
Energy index: {{ product.energy_index }}
Characteristics
{{ field.label }}
{{ field.value }}
+ Read more
{{ field.label }}
{{ field.value }}
- Read less
{{ product.company.name }}
Contact us
{{ product.company.phone.replace('-', ' ').substr(0, 7) }}...
{{ product.company.phone.replace('-', ' ') }}
Share:
Date