Sold
€ {{ product.price.replace(/\B(?=(\d{4})+(?!\d))/g, ".") }} {{ __(product.price_condition) }}
Photo’s
{{ product.images.length }}
Floorplan
{{ product.plans.length }}
360° photo’s {{ product.panoramas.length }}
Video’s {{ product.videos.length }}
Maps
All media
House for sale Eikehof 13 Landgraaf
€ {{ product.price.replace(/\B(?=(\d{4})+(?!\d))/g, ".") }} {{ __(product.price_condition) }}
Sold
Description
Welkom in Eikehof 13 – een charmante tussenwoning in de wijk Ubach over Worms, Landgraaf. Deze woning, gebouwd in 1980, combineert karakter en gezelligheid met centrum binnen 10 minuten. Met drie slaapkamers, en e.v.t. een ruime 4e slaapkamer op de zolder, een lichte woonkamer, en een praktische tuin is dit de ideale plek voor starters of jonge gezinnen die op zoek zijn naar een fijn thuis in een kindvriendelijke buurt.
Leuk om te weten:
- Bouwjaar 1980 (conform BAG), Perceel 91 m² (conform kadaster);
- Woonoppervlakte ca. 103 m², overige inpandige ruimte ca. 6 m² (meetrapport aanwezig);
- Energielabel A;
- 8 Zonnepanelen;
- Stenen berging en separate achterom;
- Parkeren is eenvoudig op openbare parkeerplaatsen nabij de woning;
- De maten van alle ruimtes vindt u terug in de plattegronden;
- Aanvaarding in overleg.
Begane grond:
Je stapt binnen in de hal via de nieuwe voordeur, waar je toegang hebt tot het volledig betegelde toilet met wasbak, de trap naar de eerste verdieping, de doorgang naar de woonkamer en de meterkast.
De lichte woonkamer voorzien van airco heeft meer dan genoeg ruimte voor een zit- en eetgedeelte. De woonkamer heeft via de 2 grote ramen en glazen deur goed zicht op de tuin. De woonkamer en keuken zijn volledig betegeld. Vanuit de woonkamer loopt u zo de open keuken in. De keuken is volledig uitgerust met keramische kookplaat, afzuigkap, oven, koelkast, vaatwasser en ruime opbergruimte dankzij boven- en onderkasten.
Eerste verdieping:
Op de overloop vind je drie slaapkamers, badkamer en trapkast. De volledig betegelde badkamer is praktisch ingedeeld en voorzien van een dubbele wastafel, een bad met douche en 2de toilet.
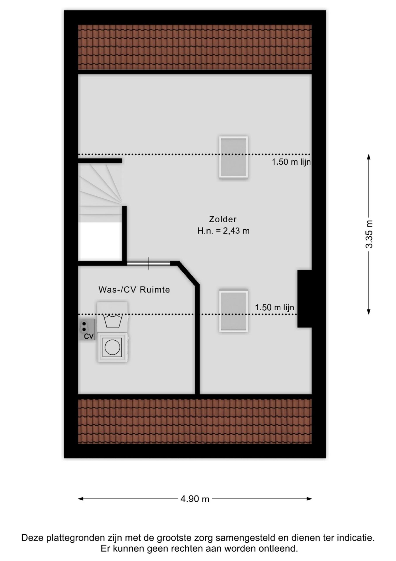
Zolder:
Via een vaste trap bereikt je de zolder, waar tevens de witgoedaansluitingen zijn. Deze ruimte is tevens geschikt als 4de slaapkamer. Ook is de ruimte voorzien van 2 nieuwe dakramen en bevindt zich de CV-installatie in deze ruimte (Intergas HRE, bj. 2020, eigendom).
Tuin:
De achtertuin is een fijne plek om tot rust te komen. Deze is middels een loopdeur bereikbaar. De tuin is onderhoudsvrij en via een separate achterom bereikbaar.
Berging:
Deze via de tuin bereikbare opbergruimte biedt een extra 6 m2, uitstekend geschikt voor uw fiets.
De waarborgsom/bankgarantie is 10% van de koopsom. De koper dient deze, indien de verkoper en koper dit overeenkomen, binnen 2 weken nadat het financieringsvoorbehoud is verlopen bij de desbetreffende notaris te deponeren.
Ter bescherming van de belangen van zowel koper als ook verkoper wordt uitdrukkelijk gesteld dat een koopovereenkomst met betrekking tot deze onroerende zaak eerst dan tot stand komt nadat koper en verkoper de koopovereenkomst hebben getekend (schriftelijkheidsvereiste).
Indien c.v.ketel en/of warmwatervoorziening een huurtoestel is, dient koper de huurovereenkomst over te nemen.
Alle door ons kantoor verstrekte informatie omtrent onroerende zaken, moet beschouwd worden als een uitnodiging om in onderhandeling te treden, en is geheel vrijblijvend! Alle vermelde maten en afmetingen zijn slechts bij benadering. Aan deze beperkte info kunnen geen rechten worden ontleend. Indien in enige documentatie of op enige website informatie staat die niet overeen komt met de werkelijkheid, dan geldt de feitelijke situatie waarin de woning zich bevindt, zoals koper deze tijdens de bezichtiging heeft kunnen waarnemen, en wordt de woning in deze feitelijke situatie/staat verkocht. Een (eventueel) bijgevoegde plattegrond dient uitsluitend als globale indicatie/visualisatie. Hieraan kunnen uitdrukkelijk geen rechten worden ontleend.
De makelaar Ray van der Venne nodigt u uit voor een bezichtiging.
Leuk om te weten:
- Bouwjaar 1980 (conform BAG), Perceel 91 m² (conform kadaster);
- Woonoppervlakte ca. 103 m², overige inpandige ruimte ca. 6 m² (meetrapport aanwezig);
- Energielabel A;
- 8 Zonnepanelen;
- Stenen berging en separate achterom;
- Parkeren is eenvoudig op openbare parkeerplaatsen nabij de woning;
- De maten van alle ruimtes vindt u terug in de plattegronden;
- Aanvaarding in overleg.
Begane grond:
Je stapt binnen in de hal via de nieuwe voordeur, waar je toegang hebt tot het volledig betegelde toilet met wasbak, de trap naar de eerste verdieping, de doorgang naar de woonkamer en de meterkast.
De lichte woonkamer voorzien van airco heeft meer dan genoeg ruimte voor een zit- en eetgedeelte. De woonkamer heeft via de 2 grote ramen en glazen deur goed zicht op de tuin. De woonkamer en keuken zijn volledig betegeld. Vanuit de woonkamer loopt u zo de open keuken in. De keuken is volledig uitgerust met keramische kookplaat, afzuigkap, oven, koelkast, vaatwasser en ruime opbergruimte dankzij boven- en onderkasten.
Eerste verdieping:
Op de overloop vind je drie slaapkamers, badkamer en trapkast. De volledig betegelde badkamer is praktisch ingedeeld en voorzien van een dubbele wastafel, een bad met douche en 2de toilet.
Zolder:
Via een vaste trap bereikt je de zolder, waar tevens de witgoedaansluitingen zijn. Deze ruimte is tevens geschikt als 4de slaapkamer. Ook is de ruimte voorzien van 2 nieuwe dakramen en bevindt zich de CV-installatie in deze ruimte (Intergas HRE, bj. 2020, eigendom).
Tuin:
De achtertuin is een fijne plek om tot rust te komen. Deze is middels een loopdeur bereikbaar. De tuin is onderhoudsvrij en via een separate achterom bereikbaar.
Berging:
Deze via de tuin bereikbare opbergruimte biedt een extra 6 m2, uitstekend geschikt voor uw fiets.
De waarborgsom/bankgarantie is 10% van de koopsom. De koper dient deze, indien de verkoper en koper dit overeenkomen, binnen 2 weken nadat het financieringsvoorbehoud is verlopen bij de desbetreffende notaris te deponeren.
Ter bescherming van de belangen van zowel koper als ook verkoper wordt uitdrukkelijk gesteld dat een koopovereenkomst met betrekking tot deze onroerende zaak eerst dan tot stand komt nadat koper en verkoper de koopovereenkomst hebben getekend (schriftelijkheidsvereiste).
Indien c.v.ketel en/of warmwatervoorziening een huurtoestel is, dient koper de huurovereenkomst over te nemen.
Alle door ons kantoor verstrekte informatie omtrent onroerende zaken, moet beschouwd worden als een uitnodiging om in onderhandeling te treden, en is geheel vrijblijvend! Alle vermelde maten en afmetingen zijn slechts bij benadering. Aan deze beperkte info kunnen geen rechten worden ontleend. Indien in enige documentatie of op enige website informatie staat die niet overeen komt met de werkelijkheid, dan geldt de feitelijke situatie waarin de woning zich bevindt, zoals koper deze tijdens de bezichtiging heeft kunnen waarnemen, en wordt de woning in deze feitelijke situatie/staat verkocht. Een (eventueel) bijgevoegde plattegrond dient uitsluitend als globale indicatie/visualisatie. Hieraan kunnen uitdrukkelijk geen rechten worden ontleend.
De makelaar Ray van der Venne nodigt u uit voor een bezichtiging.
+ Read more
- Read less
Construction: {{
product.build_year }}
Construction: {{ product.build_period.start }} -
{{ product.build_period.end }}
House
, Single-family house
{{ product.rooms }} rooms
{{ product.bedrooms
}} bedrooms
Living space: {{
product.living_space }} m²
Plot: {{
product.plot_surface }} m²
Energy class: {{ product.energy_class }}
Energy index: {{ product.energy_index }}
Characteristics
{{ field.label }}
{{ field.value }}
+ Read more
{{ field.label }}
{{ field.value }}
- Read less
{{ product.company.name }}
Contact us
{{ product.company.phone.replace('-', ' ').substr(0, 7) }}...
{{ product.company.phone.replace('-', ' ') }}
Share:
Date