Sold
€ {{ product.price.replace(/\B(?=(\d{4})+(?!\d))/g, ".") }} {{ __(product.price_condition) }}
Photo’s
{{ product.images.length }}
Floorplan
{{ product.plans.length }}
360° photo’s {{ product.panoramas.length }}
Video’s {{ product.videos.length }}
Maps
All media
House for sale Bentinckstraat 2 Limbricht
€ {{ product.price.replace(/\B(?=(\d{4})+(?!\d))/g, ".") }} {{ __(product.price_condition) }}
Sold
Description
Deze woning wordt u aangeboden door Klinkers Makelaardij!
Welkom in deze leuke maar wel te moderniseren vrijstaande woning die gelegen is aan de Bentinckstraat 2 te Limbricht. Deze woning beschikt o.a. over drie slaapkamers (mogelijkheid tot 4), een ruime woonkamer en een garage. Daarbij ligt de woning op een geliefde locatie op loopafstand van het Limbrichterbos, de basisschool en vele sportverenigingen.
Kelder:
De woning beschikt over een, via de hal te bereiken, provisiekelder.
Begane grond:
Wanneer men de voordeur opent dan treedt men de hal entree binnen. De half betegelde toiletruimte is voorzien van een closet en een fonteintje. De ruime L-vormige woonkamer is afgewerkt met een parketvloer en beschikt over veel daglichtinval. De keuken heeft een tuindeur en beschikt over een keukeninstallatie zonder ingebouwde keukenapparatuur en is verder eenvoudig uitgerust.
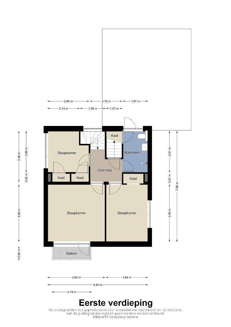
Eerste etage:
Middels de trapopgang bereikt men de overloop van de eerste etage. Deze overloop biedt toegang tot de drie slaapkamers en de badkamer. Twee slaapkamers bevinden zich aan de voorzijde (3.90m x 3.90m & 3.90m x 2.84m) van de woning en de derde slaapkamer (2.80m x 2.80m) is aan de achterzijde van de woning gesitueerd. De eenvoudig afgewerkte badkamer (2.18m x 1.67m) is voorzien van de volgende badkamerinstallaties: vaste wastafel, closet en douche.
Tweede etage:
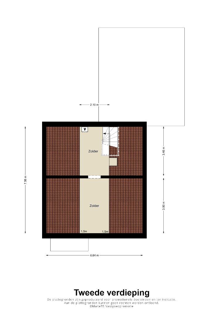
Middels de vaste trap bereikt men de tweede etage. Hier is de vierde slaapkamer aanwezig en tevens bevindt zich hier de standplaats van de cv-installatie.
Tuin:
De achtergelegen tuin is gesitueerd op het noordoosten.
Garage:
Middels de keuken kan men de garage bereiken. Deze garage verschikt over een houten garagepoort en een voorgelegen oprit.
Weetjes over deze woning:
- Bouwjaar: 1962;
- Woonoppervlakte: 123m2;
- Overig inpandige ruimte: 44m2;
- Inhoud woning: 615m3;
- Gebouwgebonden buitenruimte: 2m2;
- Externe ruimte: 0m2;
- Energielabel G, geldig tot 13-01-2032;
- De woning dient gemoderniseerd te worden;
- De woning heeft zowel houten als kunststof kozijnen met zowel enkele als dubbele beglazing;
- Er zijn rolluiken aanwezig;
- De woning heeft zowel houten als betonnen verdiepingsvloeren;
- De woning heeft een cv-ketel, merk Atag (eigendom, 2024);
- De woning heeft een meterkast met slimme meter, 4 groepen en 2 aardlekschakelaars;
- De woning heeft een zadeldak bedekt met pannen;
- De achtergelegen tuin is gesitueerd op het noordoosten;
- Alle maten zijn circa maten;
- Alle maten op de plattegronden zijn circa maten;
- Alle muren op de plattegronden duiden niet aan of deze muren ‘’dragend’’ of ‘’niet-dragend’’ zijn;
- De plattegronden zijn enkel indicatief;
- Onder voorbehoud van eventuele typ- en opnamefouten.
Bent u op zoek naar een verkopende makelaar voor uw woning? Neem dan geheel gratis en vrijblijvend contact op met Klinkers Makelaardij.
Nog aan het zoeken naar uw droomwoning? Like dan onze Facebook- of Instagrampagina (Klinkers Makelaardij), zo bent u als eerste op de hoogte van nieuwe vastgoedobjecten binnen onze portefeuille! Wie weet tot ziens, Klinkers Makelaardij.
Overige informatie
De gebruikelijke bankgarantie/waarborgsom van 10% is van toepassing.
Toelichtingsclausule NEN2580
De Meetinstructie is gebaseerd op de NEN2580. De Meetinstructie is bedoeld om een meer eenduidige manier van meten toe te passen voor het geven van een indicatie van de gebruiksoppervlakte. De Meetinstructie sluit verschillen in meetuitkomsten niet volledig uit, door bijvoorbeeld interpretatieverschillen, afrondingen of beperkingen bij het uitvoeren van de meting.
Conform artikel 7:2 Burgerlijk Wetboek, is er pas sprake van een rechtsgeldige koopovereenkomst als de particuliere verkoper en de particuliere koper de koopovereenkomst hebben ondertekend. Een mondelinge overeenstemming tussen de particuliere verkoper en de particuliere koper is niet rechtsgeldig. Voor meer informatie en/of bezichtiging kunt u een vrijblijvende afspraak met ons maken.
Welkom in deze leuke maar wel te moderniseren vrijstaande woning die gelegen is aan de Bentinckstraat 2 te Limbricht. Deze woning beschikt o.a. over drie slaapkamers (mogelijkheid tot 4), een ruime woonkamer en een garage. Daarbij ligt de woning op een geliefde locatie op loopafstand van het Limbrichterbos, de basisschool en vele sportverenigingen.
Kelder:
De woning beschikt over een, via de hal te bereiken, provisiekelder.
Begane grond:
Wanneer men de voordeur opent dan treedt men de hal entree binnen. De half betegelde toiletruimte is voorzien van een closet en een fonteintje. De ruime L-vormige woonkamer is afgewerkt met een parketvloer en beschikt over veel daglichtinval. De keuken heeft een tuindeur en beschikt over een keukeninstallatie zonder ingebouwde keukenapparatuur en is verder eenvoudig uitgerust.
Eerste etage:
Middels de trapopgang bereikt men de overloop van de eerste etage. Deze overloop biedt toegang tot de drie slaapkamers en de badkamer. Twee slaapkamers bevinden zich aan de voorzijde (3.90m x 3.90m & 3.90m x 2.84m) van de woning en de derde slaapkamer (2.80m x 2.80m) is aan de achterzijde van de woning gesitueerd. De eenvoudig afgewerkte badkamer (2.18m x 1.67m) is voorzien van de volgende badkamerinstallaties: vaste wastafel, closet en douche.
Tweede etage:
Middels de vaste trap bereikt men de tweede etage. Hier is de vierde slaapkamer aanwezig en tevens bevindt zich hier de standplaats van de cv-installatie.
Tuin:
De achtergelegen tuin is gesitueerd op het noordoosten.
Garage:
Middels de keuken kan men de garage bereiken. Deze garage verschikt over een houten garagepoort en een voorgelegen oprit.
Weetjes over deze woning:
- Bouwjaar: 1962;
- Woonoppervlakte: 123m2;
- Overig inpandige ruimte: 44m2;
- Inhoud woning: 615m3;
- Gebouwgebonden buitenruimte: 2m2;
- Externe ruimte: 0m2;
- Energielabel G, geldig tot 13-01-2032;
- De woning dient gemoderniseerd te worden;
- De woning heeft zowel houten als kunststof kozijnen met zowel enkele als dubbele beglazing;
- Er zijn rolluiken aanwezig;
- De woning heeft zowel houten als betonnen verdiepingsvloeren;
- De woning heeft een cv-ketel, merk Atag (eigendom, 2024);
- De woning heeft een meterkast met slimme meter, 4 groepen en 2 aardlekschakelaars;
- De woning heeft een zadeldak bedekt met pannen;
- De achtergelegen tuin is gesitueerd op het noordoosten;
- Alle maten zijn circa maten;
- Alle maten op de plattegronden zijn circa maten;
- Alle muren op de plattegronden duiden niet aan of deze muren ‘’dragend’’ of ‘’niet-dragend’’ zijn;
- De plattegronden zijn enkel indicatief;
- Onder voorbehoud van eventuele typ- en opnamefouten.
Bent u op zoek naar een verkopende makelaar voor uw woning? Neem dan geheel gratis en vrijblijvend contact op met Klinkers Makelaardij.
Nog aan het zoeken naar uw droomwoning? Like dan onze Facebook- of Instagrampagina (Klinkers Makelaardij), zo bent u als eerste op de hoogte van nieuwe vastgoedobjecten binnen onze portefeuille! Wie weet tot ziens, Klinkers Makelaardij.
Overige informatie
De gebruikelijke bankgarantie/waarborgsom van 10% is van toepassing.
Toelichtingsclausule NEN2580
De Meetinstructie is gebaseerd op de NEN2580. De Meetinstructie is bedoeld om een meer eenduidige manier van meten toe te passen voor het geven van een indicatie van de gebruiksoppervlakte. De Meetinstructie sluit verschillen in meetuitkomsten niet volledig uit, door bijvoorbeeld interpretatieverschillen, afrondingen of beperkingen bij het uitvoeren van de meting.
Conform artikel 7:2 Burgerlijk Wetboek, is er pas sprake van een rechtsgeldige koopovereenkomst als de particuliere verkoper en de particuliere koper de koopovereenkomst hebben ondertekend. Een mondelinge overeenstemming tussen de particuliere verkoper en de particuliere koper is niet rechtsgeldig. Voor meer informatie en/of bezichtiging kunt u een vrijblijvende afspraak met ons maken.
+ Read more
- Read less
Construction: {{
product.build_year }}
Construction: {{ product.build_period.start }} -
{{ product.build_period.end }}
House
, Single-family house
{{ product.rooms }} rooms
{{ product.bedrooms
}} bedrooms
Living space: {{
product.living_space }} m²
Plot: {{
product.plot_surface }} m²
Energy class: {{ product.energy_class }}
Energy index: {{ product.energy_index }}
Characteristics
{{ field.label }}
{{ field.value }}
+ Read more
{{ field.label }}
{{ field.value }}
- Read less
{{ product.company.name }}
Contact us
{{ product.company.phone.replace('-', ' ').substr(0, 7) }}...
{{ product.company.phone.replace('-', ' ') }}
Share:
Date