Beschikbaar
€ {{ product.price_rental.replace(/\B(?=(\d{4})+(?!\d))/g, ".") }} {{ __(product.price_rental_condition) }}
Foto’s
{{ product.images.length }}
Plattegrond
{{ product.plans.length }}
360° foto's {{ product.panoramas.length }}
Video’s {{ product.videos.length }}
Kaarten
Alle media
Appartement te huur Bergerstraat 66 B Maastricht
€ {{ product.price_rental.replace(/\B(?=(\d{4})+(?!\d))/g, ".") }} {{ __(product.price_rental_condition) }}
Beschikbaar
Omschrijving
Net 1 slaapkamer appartement in de wijk Scharn, Maastricht.
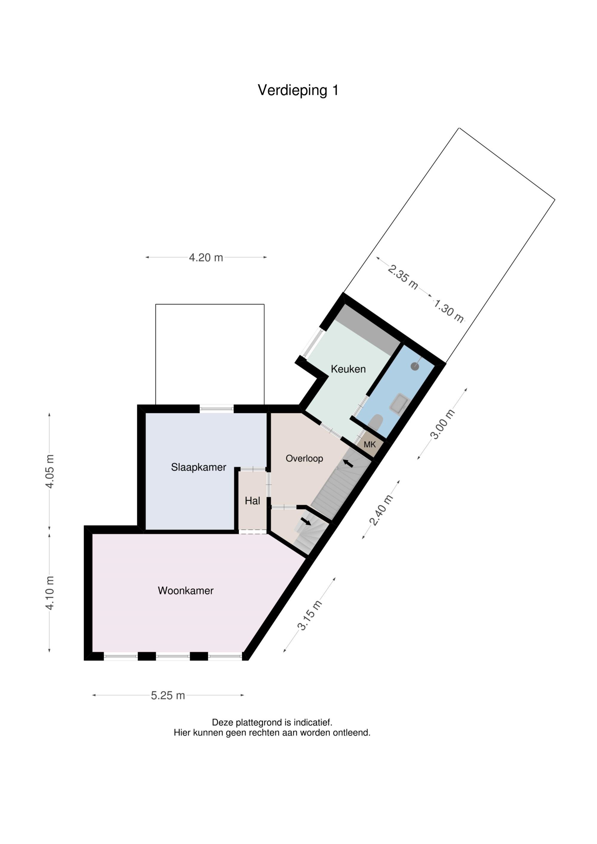
Het appartement is gelegen op de eerste verdieping. De woonkamer welke gelegen is aan de voorzijde van het pand is ruim van opzet en geniet door de 3 grote raampartijen van veel lichtinval.
De slaapkamer van respectievelijk 12 m2 is aan de achterzijde gelegen.
Let wel, de keuken en de badkamer is uitsluitend te bereiken via de algemene overloop welke je uitsluitend deelt met de bovenburen.
De gesloten keuken is voorzien van 4 pits fornuis, afzuigkap en een losse koelkast. Vanuit de keuken is eveneens de badkamer te bereiken welke is voorzien van douche, wastafel en toilet.
Bijzonderheden:
- Er is gezamenlijke wasmachine in het pand aanwezig.
- De fiets kan worden gestald in de gezamenlijke fietsenberging aan de achterzijde van het pand.
- De keuken en de badkamer is uitsluitend te bereiken via de algemene overloop welke je uitsluitend deelt met de bovenburen.
Huurgegevens:
- De huurprijs incl. voorschot G/W/E, tv en internet bedraagt € 975,- per maand.
- Waarborgsom bedraagt € 1630,-
Wij werken conform het toewijzigingsprotocol van Pararius. Meer informatie vind je via deze link: https://www.pararius.nl/info/selectieprocedure-huurder
Het appartement is gelegen op de eerste verdieping. De woonkamer welke gelegen is aan de voorzijde van het pand is ruim van opzet en geniet door de 3 grote raampartijen van veel lichtinval.
De slaapkamer van respectievelijk 12 m2 is aan de achterzijde gelegen.
Let wel, de keuken en de badkamer is uitsluitend te bereiken via de algemene overloop welke je uitsluitend deelt met de bovenburen.
De gesloten keuken is voorzien van 4 pits fornuis, afzuigkap en een losse koelkast. Vanuit de keuken is eveneens de badkamer te bereiken welke is voorzien van douche, wastafel en toilet.
Bijzonderheden:
- Er is gezamenlijke wasmachine in het pand aanwezig.
- De fiets kan worden gestald in de gezamenlijke fietsenberging aan de achterzijde van het pand.
- De keuken en de badkamer is uitsluitend te bereiken via de algemene overloop welke je uitsluitend deelt met de bovenburen.
Huurgegevens:
- De huurprijs incl. voorschot G/W/E, tv en internet bedraagt € 975,- per maand.
- Waarborgsom bedraagt € 1630,-
Wij werken conform het toewijzigingsprotocol van Pararius. Meer informatie vind je via deze link: https://www.pararius.nl/info/selectieprocedure-huurder
+ Lees meer
- Lees minder
Bouw: {{
product.build_year }}
Bouw: {{ product.build_period.start }} -
{{ product.build_period.end }}
Appartement
, Bovenwoning
{{ product.rooms }} Kamers
{{ product.bedrooms
}} Slaapkamers
Woonruimte: {{
product.living_space }} m²
Perceel: {{
product.plot_surface }} m²
Energielabel: {{ product.energy_class }}
Energie index: {{ product.energy_index }}
Kenmerken
{{ field.label }}
{{ field.value }}
+ Lees meer
{{ field.label }}
{{ field.value }}
- Lees minder
{{ product.company.name }}
Contact opnemen
{{ product.company.phone.replace('-', ' ').substr(0, 7) }}...
{{ product.company.phone.replace('-', ' ') }}
Delen:
Datum