Beschikbaar
€ {{ product.price.replace(/\B(?=(\d{4})+(?!\d))/g, ".") }} {{ __(product.price_condition) }}
Foto’s
{{ product.images.length }}
Plattegrond
{{ product.plans.length }}
360° foto's {{ product.panoramas.length }}
Video’s {{ product.videos.length }}
Kaarten
Alle media

Woonhuis te koop Kammerstraat 41 Weert

€ {{ product.price.replace(/\B(?=(\d{4})+(?!\d))/g, ".") }} {{ __(product.price_condition) }}
Beschikbaar

Omschrijving

Wonen op korte afstand van het stadscentrum, maar toch in alle rust en ruimte? Deze stijlvolle hoekwoning met eigen garage, vier volwaardige slaapkamers en een multifunctionele kamer op de begane grond, gelegen in de geliefde woonwijk Parkhof, biedt het beste van twee werelden. Een prettige, kindvriendelijke omgeving gecombineerd met een hoog wooncomfort. Dankzij de volledig vernieuwde en luxe uitgevoerde begane grond (2025) is deze woning bovendien direct instapklaar. Een absoluut pluspunt is het zeer royale dakterras van circa 40 m² op de tweede verdieping. In combinatie met de voor- en achtertuin beschikt deze woning over een uitzonderlijk fijne hoeveelheid buitenruimte. De stenen garage van circa 17 m² ligt om de hoek.

Indeling:

Begane grond:
Via de hal met trapopgang naar de eerste verdieping, meterkast, moderne toiletruimte met zwevend toilet en fonteintje en een garderobekast betreed je de woning. Direct valt de hoogwaardige afwerking op. De begane grond is in 2025 volledig gemoderniseerd en luxe uitgevoerd, met oog voor detail, sfeer en comfort.
De ruime woonkamer is strak en warm afgewerkt en voorzien van grote raampartijen aan zowel de voor- als achterzijde, wat zorgt voor een prettige natuurlijke lichtinval. De stijlvolle vloer in visgraatmotief en de rustige, eigentijdse kleurstelling geven de ruimte een moderne en hoogwaardige uitstraling. Via de schuifpui is er direct toegang tot de tuin en het terras, wat zorgt voor een prettig binnen-buitencontact. Vanuit de woonkamer is tevens een praktische provisieruimte bereikbaar.
De open keuken is eveneens vernieuwd en luxe uitgevoerd en beschikt over moderne kasten, een kookeiland met gezellig barretje en diverse inbouwapparatuur, waaronder een inductiekookplaat met geïntegreerde afzuiging, koelkast, vriezer, combi-oven en vaatwasser. Vanuit de keuken is er via een loopdeur toegang tot de achtertuin.
Aansluitend bevindt zich een multifunctionele ruimte met een loopdeur naar de voortuin. Deze ruimte is momenteel in gebruik als speelhoek, maar is ook uitermate geschikt als thuiswerkplek. De gehele begane grond vormt één harmonieus geheel en is tot in de puntjes afgewerkt – een leefruimte waar je zó in kunt.

Eerste verdieping:
Op de eerste verdieping bevinden zich drie goed bemeten slaapkamers met veel daglicht. De moderne en complete badkamer is ingericht met een ligbad, inloopdouche, zwevend toilet en een badkamermeubel met dubbele wastafel. Daarnaast is er een praktische bergruimte met vaste kastenwand, de witgoedaansluitingen en de opstelling van de combiketel (Nefit Trendline HRC, eigendom, ca. 2023).

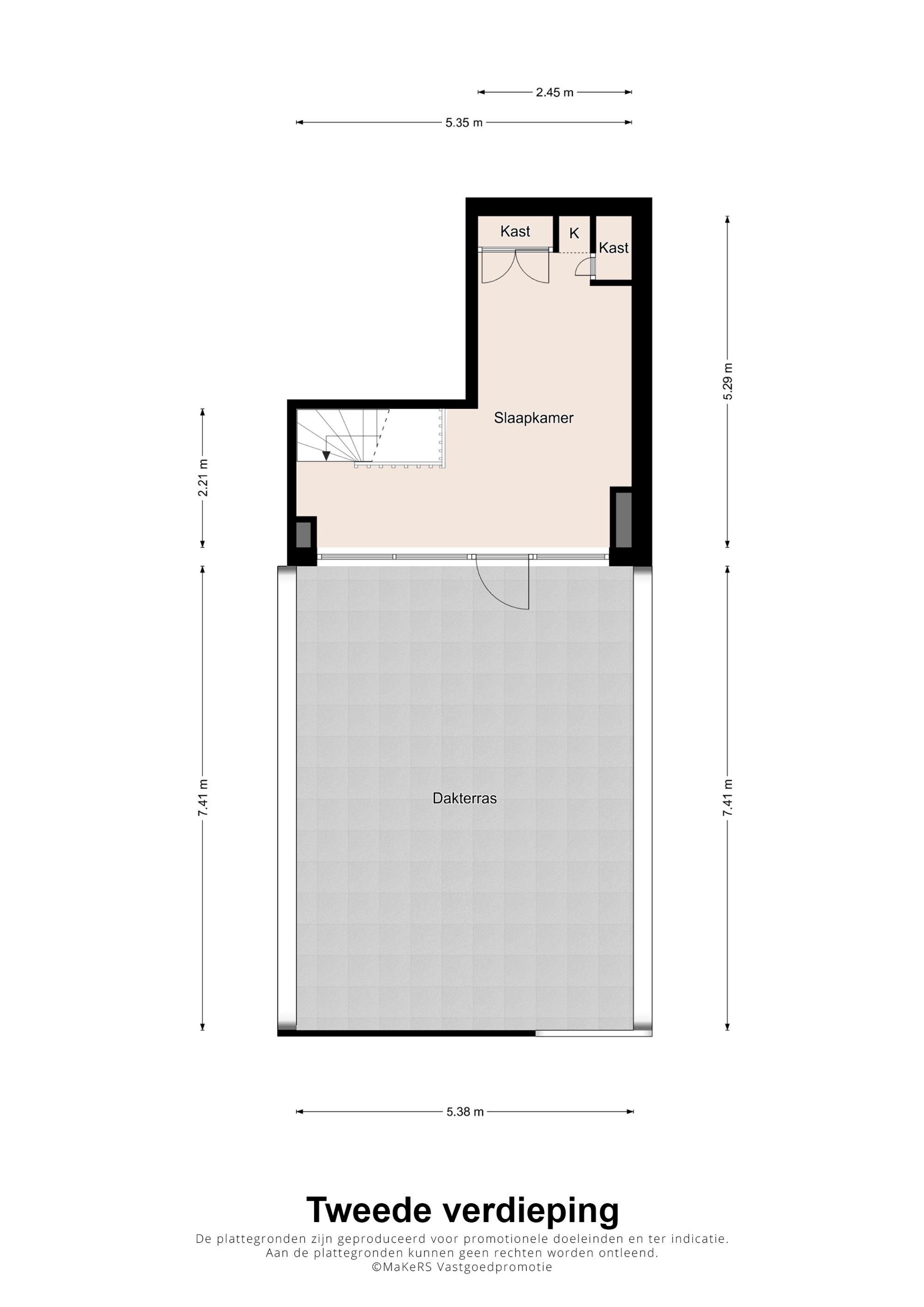
Tweede verdieping:
Via een vaste trap bereik je de speelse tweede etage met een vierde slaapkamer met veel kastruimte en aansluitend het zeer royale dakterras van circa 40 m². Een unieke buitenruimte met diverse stroompunten en verlichting waar je in alle privacy kunt genieten van de zon en het buitenleven – een absolute meerwaarde ten opzichte van vergelijkbare woningen. Extra pluspunt is dat er reeds een vergunning aanwezig is om het dakterras (deels) om te bouwen tot extra woonruimte.

Exterieur:
De voortuin is zo ingericht dat er voldoende ruimte is om 2 auto's te parkeren en eventueel elektrisch te laden (elektrische laadpaal ter overname) en biedt toegang tot de voordeur en de multifunctionele kamer. De achtertuin is compact maar praktisch en grenst direct aan de keuken, ideaal voor dagelijks gebruik. Het royale dakterras op de tweede verdieping compenseert dit ruimschoots en biedt volop ruimte om te ontspannen of gasten te ontvangen. De stenen garage ligt om de hoek en is ideaal als parkeerplek, extra opslagruimte of hobbyruimte.

Bijzonderheden:
Kammerstraat 41 betreft een moderne en uitstekend onderhouden hoekwoning die in 2025 op de begane grond volledig is vernieuwd en luxe is afgewerkt. De woning is volledig instapklaar en kenmerkt zich door een hoog afwerkingsniveau en een prettige, doordachte indeling. De kozijnen zijn, op 2 deuren na, uitgevoerd in onderhoudsvriendelijk kunststof en voorzien van dubbel glas; deels zijn rolluiken aanwezig. De woning is goed geïsoleerd met dak-, spouw- en vloerisolatie en beschikt over 9 zonnepanelen, wat bijdraagt aan een lage energielast en een comfortabel binnenklimaat.

Ligging:
De centrale ligging in de geliefde woonwijk Parkhof maakt deze woning extra aantrekkelijk. Met een speelvoorziening om de hoek en op directe loopafstand van het centrum, het centraal station, scholen, supermarkten en alle dagelijkse voorzieningen woon je hier bijzonder comfortabel. Daarnaast zijn de A2 en uitvalswegen eenvoudig bereikbaar en liggen natuur- en recreatiegebied De IJzeren Man en de omliggende bossen op korte afstand.

Interactief:
Kijk ook op onze Homevision site om de plattegronden van de woning te bekijken en interactief in te kunnen richten met uw eigen meubel opstelling.
+ Lees meer
- Lees minder
Bouw: {{ product.build_year }}
Bouw: {{ product.build_period.start }} - {{ product.build_period.end }}
Woonhuis , Eengezinswoning
{{ product.rooms }} Kamers
{{ product.bedrooms }} Slaapkamers
Woonruimte: {{ product.living_space }} m²
Perceel: {{ product.plot_surface }} m²
Energielabel:    {{ product.energy_class }}
Energie index: {{ product.energy_index }}

Kenmerken

{{ field.label }}
{{ field.value }}

{{ field.label }}
{{ field.value }}
{{ product.company.name }}
Contact opnemen
{{ product.company.phone.replace('-', ' ').substr(0, 7) }}...
{{ product.company.phone.replace('-', ' ') }}
Delen:

Soortgelijke objecten in de buurt