Onder bod
€ {{ product.price.replace(/\B(?=(\d{4})+(?!\d))/g, ".") }} {{ __(product.price_condition) }}
Foto’s
{{ product.images.length }}
Plattegrond
{{ product.plans.length }}
360° foto's {{ product.panoramas.length }}
Video’s {{ product.videos.length }}
Kaarten
Alle media
Appartement te koop Schoutenstraatje 27 C Venray
€ {{ product.price.replace(/\B(?=(\d{4})+(?!\d))/g, ".") }} {{ __(product.price_condition) }}
Onder bod
Omschrijving
Bent u geïnteresseerd in één van de appartementen?
Wij zien u graag tijdens onze open dag op 6 februari 2026 tussen 15.00 - 17.00 uur. Daarvoor dient u zich aan te melden door het sturen van een mailtje naar venray@boek-offermans.nl met uw naam, telefoonnummer en welk appartement u in geïnteresseerd bent.
Graag zien wij u op 6 februari a.s. !
In het hart van het centrum van Venray worden aan het Schoutenstraatje vier instapklare nieuwbouwappartementen gerealiseerd. Het betreft een transformatieproject waarbij comfort, licht en modern woongemak centraal staan. De appartementen zijn momenteel in aanbouw en de verwachte oplevering staat gepland voor eind maart 2026. Alle appartementen worden compleet opgeleverd en zijn voorzien van een luxe keuken met inbouwapparatuur, glad gestucte en gesausde wanden en plafonds, kunststof kozijnen met triple glas, mechanische ventilatie, elektrische verwarming en een eigen berging in het souterrain.
Schoutenstraatje 27 C
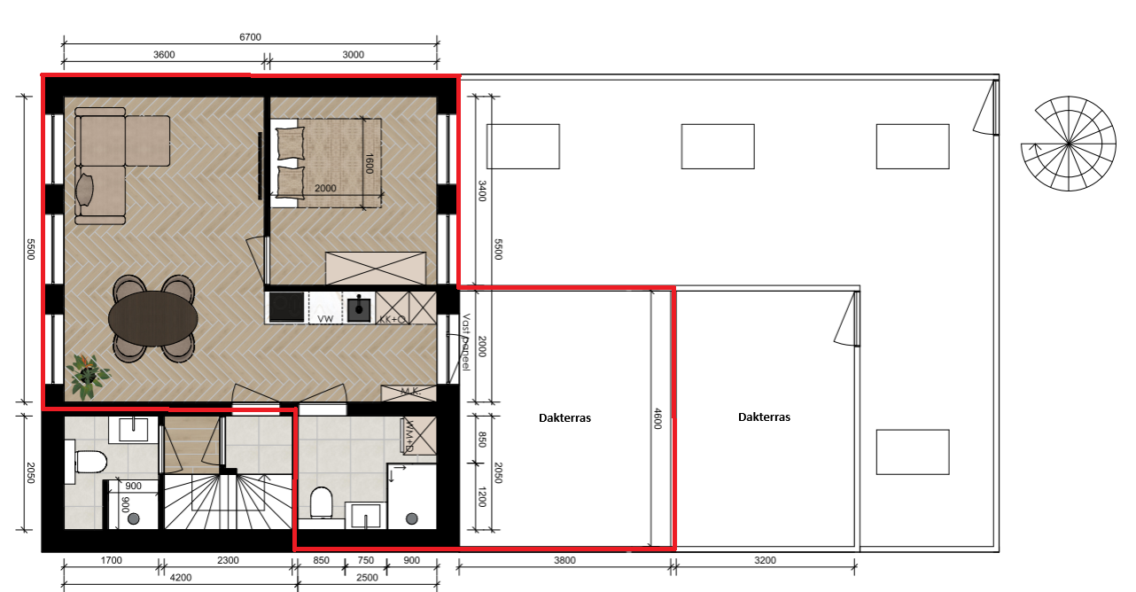
Dit appartement is gesitueerd op de eerste verdieping en heeft een woonoppervlakte van circa 42 m². De woonkamer van ongeveer 24 m² is praktisch ingedeeld en vormt een prettige leefruimte. Ook dit appartement wordt opgeleverd met een luxe keuken in een moderne kleurstelling, voorzien van zwarte Inventum inbouwapparatuur, waaronder een inductiekookplaat met vier kookzones, vaatwasser, koelkast, combimagnetron en een matzwarte wandschouwafzuigkap. Vanuit het appartement is er toegang tot een noordelijk gelegen dakterras van circa 15 m², een rustige plek om buiten te zitten. De badkamer is modern afgewerkt met een inloopdouche, strak sanitair en een elektrische designradiator.
Het energielabel A is gebaseerd op het huidige pand; voor de afzonderlijke appartementen moet het label nog worden opgesteld. De appartementen beschikken straks over triple glas en elektrische boiler waardoor het appartement wellicht een beter energielabel zal krijgen.
Wij zien u graag tijdens onze open dag op 6 februari 2026 tussen 15.00 - 17.00 uur. Daarvoor dient u zich aan te melden door het sturen van een mailtje naar venray@boek-offermans.nl met uw naam, telefoonnummer en welk appartement u in geïnteresseerd bent.
Graag zien wij u op 6 februari a.s. !
In het hart van het centrum van Venray worden aan het Schoutenstraatje vier instapklare nieuwbouwappartementen gerealiseerd. Het betreft een transformatieproject waarbij comfort, licht en modern woongemak centraal staan. De appartementen zijn momenteel in aanbouw en de verwachte oplevering staat gepland voor eind maart 2026. Alle appartementen worden compleet opgeleverd en zijn voorzien van een luxe keuken met inbouwapparatuur, glad gestucte en gesausde wanden en plafonds, kunststof kozijnen met triple glas, mechanische ventilatie, elektrische verwarming en een eigen berging in het souterrain.
Schoutenstraatje 27 C
Dit appartement is gesitueerd op de eerste verdieping en heeft een woonoppervlakte van circa 42 m². De woonkamer van ongeveer 24 m² is praktisch ingedeeld en vormt een prettige leefruimte. Ook dit appartement wordt opgeleverd met een luxe keuken in een moderne kleurstelling, voorzien van zwarte Inventum inbouwapparatuur, waaronder een inductiekookplaat met vier kookzones, vaatwasser, koelkast, combimagnetron en een matzwarte wandschouwafzuigkap. Vanuit het appartement is er toegang tot een noordelijk gelegen dakterras van circa 15 m², een rustige plek om buiten te zitten. De badkamer is modern afgewerkt met een inloopdouche, strak sanitair en een elektrische designradiator.
Het energielabel A is gebaseerd op het huidige pand; voor de afzonderlijke appartementen moet het label nog worden opgesteld. De appartementen beschikken straks over triple glas en elektrische boiler waardoor het appartement wellicht een beter energielabel zal krijgen.
+ Lees meer
- Lees minder
Bouw: {{
product.build_year }}
Bouw: {{ product.build_period.start }} -
{{ product.build_period.end }}
Appartement
, Tussenverdieping
{{ product.rooms }} Kamers
{{ product.bedrooms
}} Slaapkamers
Woonruimte: {{
product.living_space }} m²
Perceel: {{
product.plot_surface }} m²
Energielabel: {{ product.energy_class }}
Energie index: {{ product.energy_index }}
Kenmerken
{{ field.label }}
{{ field.value }}
+ Lees meer
{{ field.label }}
{{ field.value }}
- Lees minder
{{ product.company.name }}
Contact opnemen
{{ product.company.phone.replace('-', ' ').substr(0, 7) }}...
{{ product.company.phone.replace('-', ' ') }}
Delen:
Datum