Foto’s
{{ product.images.length }}
Plattegrond
{{ product.plans.length }}
360° foto's {{ product.panoramas.length }}
Video’s {{ product.videos.length }}
Kaarten
Alle media
Woonhuis te koop Herenslagstraat 30 Baexem
€ {{ product.price.replace(/\B(?=(\d{4})+(?!\d))/g, ".") }} {{ __(product.price_condition) }}
Verkocht
Omschrijving
Welkom in deze fijne, keurig onderhouden en uitgebouwde vrijstaande woning met levensloopbestendige voorzieningen. Deze woning stamt uit 1968 maar is sindsdien flink uitgebouwd en geüpdatet. Hierdoor is het huis ideaal voor een gezin of voor levensloopbestendig wonen. Hier geniet u van een woonkamer met veel lichtinval, een knusse woonkeuken, een multifunctionele kamer én een extra badkamer op de begane grond. Op de verdieping wachten nog drie slaapkamers en een tweede badkamer. Er is een stenen vrijstaande garage met elektriciteit en ruimte voor één auto, en daarnaast zijn er drie extra parkeerplaatsen op eigen terrein. En voor de mooie zomerdagen is er een verzorgde tuin met terrasoverkapping waar u volop kunt genieten van de zon. Klinkt goed, toch?
De woning ligt fraai aan een plantsoen aan de voorzijde in een rustige woonbuurt van Baexem, een vredig en charmant dorp in Limburg. Elke dag boodschappen doen? Dat kan dankzij supermarkten in de directe omgeving. En voor de kleintjes in het gezin? Er zijn voldoende scholen in de buurt. Bovendien ligt de woning dichtbij diverse wandelparken en speeltuinen, ideaal voor gezinsuitjes of uw ochtendwandeling. En voor woon-werkverkeer bereikt u snel de uitvalswegen.
Indeling:
Begane grond:
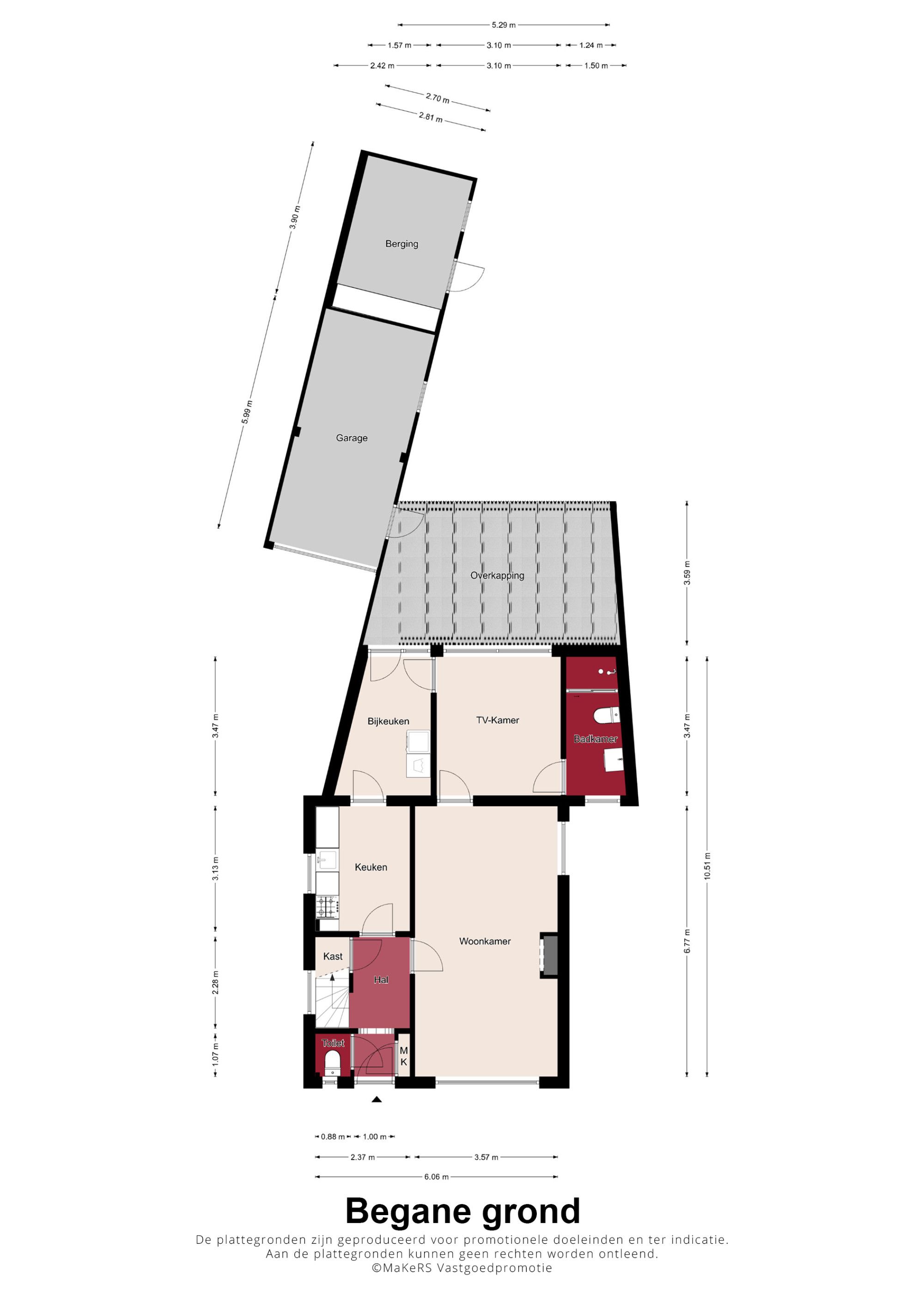
De uitnodigende hal/entree biedt, naast de trapopgang naar de eerste verdieping, toegang tot de meterkast en het toilet. Tevens heeft u vanuit de hal toegang tot de keuken en de woonkamer. De living met sfeervolle haard en vinylvloer kent verrassend veel lichtinval. De keuken is voorzien van een keurige, doch eenvoudige opstelling en beschikt over een gaskookplaat, afzuigkap, koelkast en oven, en is voorzien van een tegelvloer. Vervolgens is de bijkeuken toegankelijk, welke voorzien is van witgoedaansluitingen. Vanuit de bijkeuken bereikt u de overkapping en de tuin. Zowel vanuit de woonkamer als de bijkeuken is de multifunctionele ruimte (tv-kamer, slaapkamer op de begane grond) met aansluitende eerste badkamer bereikbaar. De badkamer is voorzien van een douche, wastafel met meubel en een toilet. De begane grond is grotendeels voorzien van (elektrische) rolluiken.
Eerste verdieping:
Via de overloop heeft u toegang tot drie fijne slaapkamers en een tweede badkamer, waarin een badkamermeubel met wastafel en douche aanwezig is. Alle slaapkamers zijn voorzien van rolluiken.
Tweede verdieping:
Via een vlizotrap bereikt u de bergzolder met de opstelling van de moderne cv-combiketel (Nefit Topline HR ketel uit 2012, eigendom). De tweede verdieping kan verder naar wens worden ingericht.
Exterieur:
Zowel aan de voor- als achterzijde van de woning bevindt zich een fraai ingerichte tuin met borders, (kunst)gazon, diverse aanplant, een gedeeltelijk overdekt terras en een extra zonneterras, zodat u zowel zon als schaduw kunt opzoeken. De fraaie zuidoostelijke ligging geeft u een zonnige tuin van ’s morgens tot ’s avonds. Ook is er een eigen achterom aanwezig. Aan de voorzijde bevindt zich een ruime oprit, waar meerdere voertuigen geparkeerd kunnen worden. Het zicht aan de voorzijde op een mooie groenvoorziening geeft het een parkachtig karakter en een vrij gevoel mee.
Bijzonderheden:
De woning is netjes en keurig onderhouden en onder andere voorzien van dubbele beglazing, dakisolatie in het aanbouwdeel, gedeeltelijke muurisolatie. De woning is zeer geschikt voor gezinnen en voor levensloopbestendig wonen, dankzij de vier slaapkamers, twee badkamers en aparte leefruimtes. De garage is vergroot en beschikt over elektriciteitsvoorziening. Energielabel D.
Ligging:
De ligging is fijn, in een rustige en groene omgeving en aan de voorzijde fraai vrij gelegen. Het kerkdorp Baexem staat bekend om zijn rijke verenigingsleven en kent een actieve, betrokken dorpsgemeenschap. Dagelijkse voorzieningen zijn op loop- en fietsafstand gelegen (zoals een school, huisarts, supermarkt en sportcomplex). De ligging van Baexem in de gemeente Leudal is centraal, tussen Weert en Roermond (ca. 15 minuten). Baexem is daarnaast goed bereikbaar via de N280 en A2.
Interactief:
Kijk ook op onze Homevision-site om de plattegronden van de woning te bekijken en deze interactief in te richten met uw eigen meubelopstelling.
De woning ligt fraai aan een plantsoen aan de voorzijde in een rustige woonbuurt van Baexem, een vredig en charmant dorp in Limburg. Elke dag boodschappen doen? Dat kan dankzij supermarkten in de directe omgeving. En voor de kleintjes in het gezin? Er zijn voldoende scholen in de buurt. Bovendien ligt de woning dichtbij diverse wandelparken en speeltuinen, ideaal voor gezinsuitjes of uw ochtendwandeling. En voor woon-werkverkeer bereikt u snel de uitvalswegen.
Indeling:
Begane grond:
De uitnodigende hal/entree biedt, naast de trapopgang naar de eerste verdieping, toegang tot de meterkast en het toilet. Tevens heeft u vanuit de hal toegang tot de keuken en de woonkamer. De living met sfeervolle haard en vinylvloer kent verrassend veel lichtinval. De keuken is voorzien van een keurige, doch eenvoudige opstelling en beschikt over een gaskookplaat, afzuigkap, koelkast en oven, en is voorzien van een tegelvloer. Vervolgens is de bijkeuken toegankelijk, welke voorzien is van witgoedaansluitingen. Vanuit de bijkeuken bereikt u de overkapping en de tuin. Zowel vanuit de woonkamer als de bijkeuken is de multifunctionele ruimte (tv-kamer, slaapkamer op de begane grond) met aansluitende eerste badkamer bereikbaar. De badkamer is voorzien van een douche, wastafel met meubel en een toilet. De begane grond is grotendeels voorzien van (elektrische) rolluiken.
Eerste verdieping:
Via de overloop heeft u toegang tot drie fijne slaapkamers en een tweede badkamer, waarin een badkamermeubel met wastafel en douche aanwezig is. Alle slaapkamers zijn voorzien van rolluiken.
Tweede verdieping:
Via een vlizotrap bereikt u de bergzolder met de opstelling van de moderne cv-combiketel (Nefit Topline HR ketel uit 2012, eigendom). De tweede verdieping kan verder naar wens worden ingericht.
Exterieur:
Zowel aan de voor- als achterzijde van de woning bevindt zich een fraai ingerichte tuin met borders, (kunst)gazon, diverse aanplant, een gedeeltelijk overdekt terras en een extra zonneterras, zodat u zowel zon als schaduw kunt opzoeken. De fraaie zuidoostelijke ligging geeft u een zonnige tuin van ’s morgens tot ’s avonds. Ook is er een eigen achterom aanwezig. Aan de voorzijde bevindt zich een ruime oprit, waar meerdere voertuigen geparkeerd kunnen worden. Het zicht aan de voorzijde op een mooie groenvoorziening geeft het een parkachtig karakter en een vrij gevoel mee.
Bijzonderheden:
De woning is netjes en keurig onderhouden en onder andere voorzien van dubbele beglazing, dakisolatie in het aanbouwdeel, gedeeltelijke muurisolatie. De woning is zeer geschikt voor gezinnen en voor levensloopbestendig wonen, dankzij de vier slaapkamers, twee badkamers en aparte leefruimtes. De garage is vergroot en beschikt over elektriciteitsvoorziening. Energielabel D.
Ligging:
De ligging is fijn, in een rustige en groene omgeving en aan de voorzijde fraai vrij gelegen. Het kerkdorp Baexem staat bekend om zijn rijke verenigingsleven en kent een actieve, betrokken dorpsgemeenschap. Dagelijkse voorzieningen zijn op loop- en fietsafstand gelegen (zoals een school, huisarts, supermarkt en sportcomplex). De ligging van Baexem in de gemeente Leudal is centraal, tussen Weert en Roermond (ca. 15 minuten). Baexem is daarnaast goed bereikbaar via de N280 en A2.
Interactief:
Kijk ook op onze Homevision-site om de plattegronden van de woning te bekijken en deze interactief in te richten met uw eigen meubelopstelling.
+ Lees meer
- Lees minder
Bouw: {{
product.build_year }}
Bouw: {{ product.build_period.start }} -
{{ product.build_period.end }}
Woonhuis
, Eengezinswoning
{{ product.rooms }} Kamers
{{ product.bedrooms
}} Slaapkamers
Woonruimte: {{
product.living_space }} m²
Perceel: {{
product.plot_surface }} m²
Energielabel: {{ product.energy_class }}
Energie index: {{ product.energy_index }}
Kenmerken
{{ field.label }}
{{ field.value }}
+ Lees meer
{{ field.label }}
{{ field.value }}
- Lees minder
{{ product.company.name }}
Contact opnemen
{{ product.company.phone.replace('-', ' ').substr(0, 7) }}...
{{ product.company.phone.replace('-', ' ') }}
Delen:
Foto’s van Herenslagstraat 30 6095 CH Baexem
Datum









































