Verkocht onder voorbehoud
€ {{ product.price.replace(/\B(?=(\d{4})+(?!\d))/g, ".") }} {{ __(product.price_condition) }}
Foto’s
{{ product.images.length }}
Plattegrond
{{ product.plans.length }}
360° foto's {{ product.panoramas.length }}
Video’s {{ product.videos.length }}
Kaarten
Alle media
Woonhuis te koop Tolenhof 5 Brunssum
€ {{ product.price.replace(/\B(?=(\d{4})+(?!\d))/g, ".") }} {{ __(product.price_condition) }}
Verkocht onder voorbehoud
Omschrijving
Wonen tegenover de vijver en het Vijverpark in Brunssum, dat kan in deze sfeervolle twee onder een kap woning met vrijstaande garage, ruime terrasoverkapping, voor- en achtertuin.
Gelegen op perceel van 265 m2, woonoppervlakte bedraagt 122 m2.
De woning is voorzien van 5 stuks zonnepanelen.
Er zijn 4 slaapkamers aanwezig.
Ideale starterwoning.
INDELING:
Begane grond:
Entree via ruime oprit met ruimte voor parkeren auto(s).
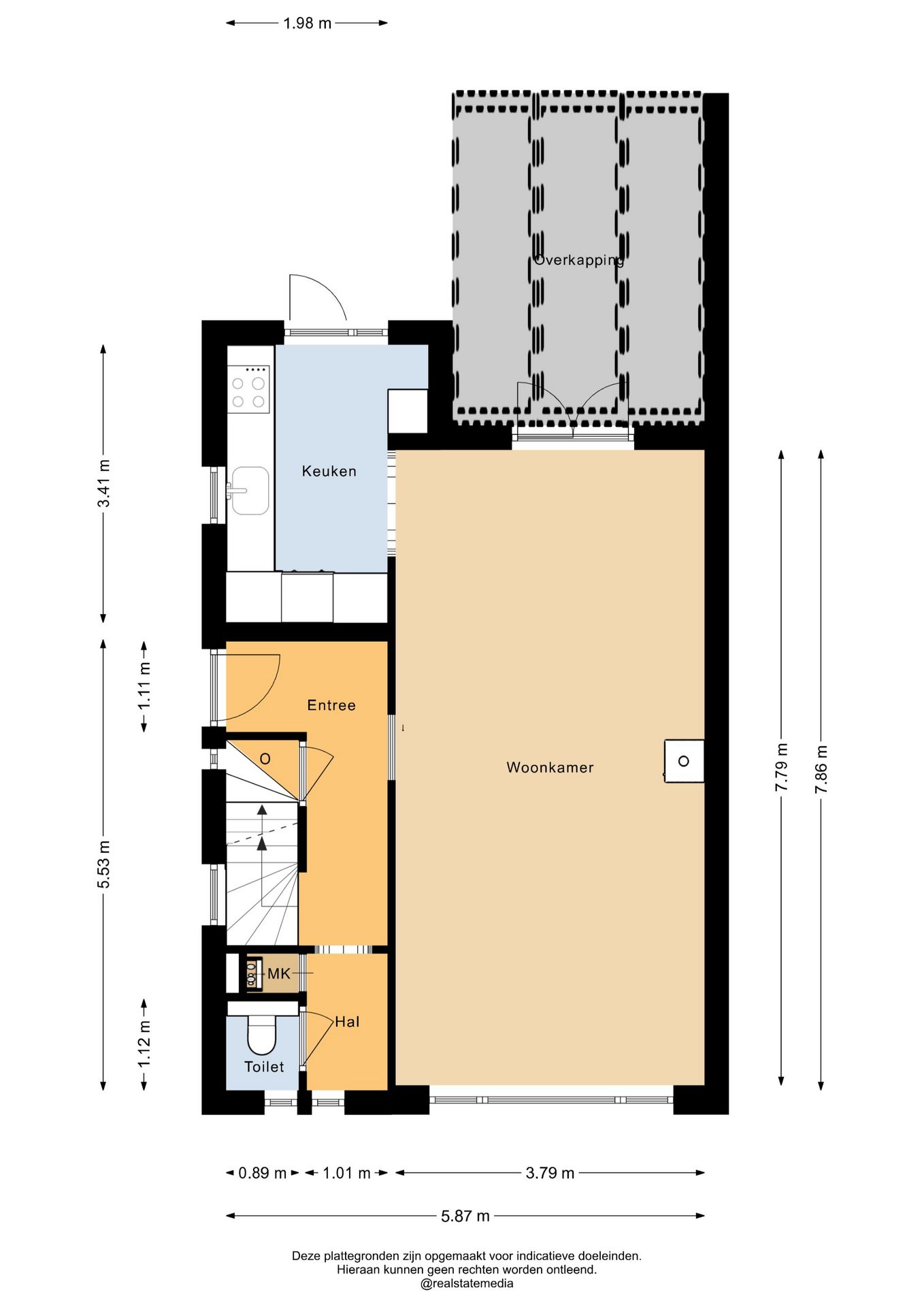
Ontvangsthal (5.53 x 2.01 m) met trap naar verdieping en souterrain.
Betegelde toiletruimte met zwevend toilet.
Woonkamer (7.90 x 3.81 m) voorzien van PVC, dubbele tuindeuren naar terras en airco.
Keuken (3.41 x 1.98 m) met keukeninrichting met vele handige en vernuftige opberg mogelijkheden en alle apparatuur te weten: koelkast, keramische kooklaat, afzuiging, oven en magnetron.
Vanuit de keuken toegang naar achtertuin met ruime terrasoverkapping (4.07 x 3.20 m), terras en verdere aanplanting.
Vrijstaande garage (5.12 x 2.80 m).
Eerste verdieping:
Overloop.
2 Slaapkamers.
Slaapkamer 1 (4.06 x 3.78 m) voorzien van laminaatvloer, muurkast en met toegang naar geheel betegelde badkamer en suite (4.06 x 3.78 m) met douche en vaste wastafel.
Slaapkamer 2 (3.80 x 3.80 m) voorzien van laminaatvloer en met muurkast.
Badkamer 2 geheel betegeld met vaste wastafel en toilet.
Tweede verdieping:
Via vaste trap bereikbare overloop.
Slaapkamer 3 (3.78 x 2.46 m) voorzien van laminaatvloer, dakkapel en met muurkast.
Slaapkamer 4 (3.80 x 1.80 m) met muurkast.
Souterrain:
Provisie/bergruimte (4.29 x 2.01 m) met een stahoogte van 1,89 meter.
Technische/berg/wasruimte (4.82 x 2.01 m) met opstelling CV combi installatie (Vaillant HR, huur, bouwjaar 2022) en de witgoed opstelling.
Algemeen:
Gelegen in rustige straat en woonwijk nabij het centrum van Brunssum, tegenover de vijver en het Vijverpark.
Goede volledige voorzieningen nabij.
De woning is voorzien van kunststof kozijnen met HR beglazing.
Genoemde maten zijn circa maten.
Het onderstaande is van toepassing op de informatiebrochure die u thans bekijkt. U stemt in met deze disclaimer.
1. De waarborgsom/bankgarantie bedraagt 10% van de koopsom. De koper dient deze 2 weken ná het vervallen van de ontbindende voorwaarden bij de desbetreffende notaris te deponeren.
2. De koper is te allen tijde gerechtigd voor eigen rekening een bouwkundige (aankoop-)keuring te (laten) verrichten en/of adviseur in te schakelen om zodoende een goed inzicht te verkrijgen in de actuele onderhoudstoestand van de onroerende zaak
3. Rechtsgeldige koopovereenkomst pas ná ondertekening:
Een mondelinge overeenstemming tussen de particuliere verkoper en de particuliere koper is niet rechtsgeldig. Met andere woorden: er is geen koop. Er is pas sprake van een rechtsgeldige koop als de particuliere verkoper en de particuliere koper de koopovereenkomst hebben ondertekend, ook wel “schriftelijkheidsvereiste” genoemd. Dit vloeit voort uit artikel 7:2 Burgerlijk Wetboek. Een bevestiging van de mondelinge overeenstemming per e-mail of een toegestuurd concept van de koopovereenkomst wordt overigens niet gezien als een “ondertekende koopovereenkomst”.
4. De content is door ons en eigenaar met de grootst mogelijke zorg samengesteld, doch we aanvaarden geen aansprakelijkheid ten aanzien van mogelijke onjuistheden van het getoonde.
5. Alle opgegeven maten en oppervlakten zijn indicatief en zijn gebaseerd op de meetmethode van de NVM, een afgeleide van de NEN2580.
Gelegen op perceel van 265 m2, woonoppervlakte bedraagt 122 m2.
De woning is voorzien van 5 stuks zonnepanelen.
Er zijn 4 slaapkamers aanwezig.
Ideale starterwoning.
INDELING:
Begane grond:
Entree via ruime oprit met ruimte voor parkeren auto(s).
Ontvangsthal (5.53 x 2.01 m) met trap naar verdieping en souterrain.
Betegelde toiletruimte met zwevend toilet.
Woonkamer (7.90 x 3.81 m) voorzien van PVC, dubbele tuindeuren naar terras en airco.
Keuken (3.41 x 1.98 m) met keukeninrichting met vele handige en vernuftige opberg mogelijkheden en alle apparatuur te weten: koelkast, keramische kooklaat, afzuiging, oven en magnetron.
Vanuit de keuken toegang naar achtertuin met ruime terrasoverkapping (4.07 x 3.20 m), terras en verdere aanplanting.
Vrijstaande garage (5.12 x 2.80 m).
Eerste verdieping:
Overloop.
2 Slaapkamers.
Slaapkamer 1 (4.06 x 3.78 m) voorzien van laminaatvloer, muurkast en met toegang naar geheel betegelde badkamer en suite (4.06 x 3.78 m) met douche en vaste wastafel.
Slaapkamer 2 (3.80 x 3.80 m) voorzien van laminaatvloer en met muurkast.
Badkamer 2 geheel betegeld met vaste wastafel en toilet.
Tweede verdieping:
Via vaste trap bereikbare overloop.
Slaapkamer 3 (3.78 x 2.46 m) voorzien van laminaatvloer, dakkapel en met muurkast.
Slaapkamer 4 (3.80 x 1.80 m) met muurkast.
Souterrain:
Provisie/bergruimte (4.29 x 2.01 m) met een stahoogte van 1,89 meter.
Technische/berg/wasruimte (4.82 x 2.01 m) met opstelling CV combi installatie (Vaillant HR, huur, bouwjaar 2022) en de witgoed opstelling.
Algemeen:
Gelegen in rustige straat en woonwijk nabij het centrum van Brunssum, tegenover de vijver en het Vijverpark.
Goede volledige voorzieningen nabij.
De woning is voorzien van kunststof kozijnen met HR beglazing.
Genoemde maten zijn circa maten.
Het onderstaande is van toepassing op de informatiebrochure die u thans bekijkt. U stemt in met deze disclaimer.
1. De waarborgsom/bankgarantie bedraagt 10% van de koopsom. De koper dient deze 2 weken ná het vervallen van de ontbindende voorwaarden bij de desbetreffende notaris te deponeren.
2. De koper is te allen tijde gerechtigd voor eigen rekening een bouwkundige (aankoop-)keuring te (laten) verrichten en/of adviseur in te schakelen om zodoende een goed inzicht te verkrijgen in de actuele onderhoudstoestand van de onroerende zaak
3. Rechtsgeldige koopovereenkomst pas ná ondertekening:
Een mondelinge overeenstemming tussen de particuliere verkoper en de particuliere koper is niet rechtsgeldig. Met andere woorden: er is geen koop. Er is pas sprake van een rechtsgeldige koop als de particuliere verkoper en de particuliere koper de koopovereenkomst hebben ondertekend, ook wel “schriftelijkheidsvereiste” genoemd. Dit vloeit voort uit artikel 7:2 Burgerlijk Wetboek. Een bevestiging van de mondelinge overeenstemming per e-mail of een toegestuurd concept van de koopovereenkomst wordt overigens niet gezien als een “ondertekende koopovereenkomst”.
4. De content is door ons en eigenaar met de grootst mogelijke zorg samengesteld, doch we aanvaarden geen aansprakelijkheid ten aanzien van mogelijke onjuistheden van het getoonde.
5. Alle opgegeven maten en oppervlakten zijn indicatief en zijn gebaseerd op de meetmethode van de NVM, een afgeleide van de NEN2580.
+ Lees meer
- Lees minder
Bouw: {{
product.build_year }}
Bouw: {{ product.build_period.start }} -
{{ product.build_period.end }}
Woonhuis
, Eengezinswoning
{{ product.rooms }} Kamers
{{ product.bedrooms
}} Slaapkamers
Woonruimte: {{
product.living_space }} m²
Perceel: {{
product.plot_surface }} m²
Energielabel: {{ product.energy_class }}
Energie index: {{ product.energy_index }}
Kenmerken
{{ field.label }}
{{ field.value }}
+ Lees meer
{{ field.label }}
{{ field.value }}
- Lees minder
{{ product.company.name }}
Contact opnemen
{{ product.company.phone.replace('-', ' ').substr(0, 7) }}...
{{ product.company.phone.replace('-', ' ') }}
Delen:
Datum