Verkocht onder voorbehoud
€ {{ product.price.replace(/\B(?=(\d{4})+(?!\d))/g, ".") }} {{ __(product.price_condition) }}
Foto’s
{{ product.images.length }}
Plattegrond
{{ product.plans.length }}
360° foto's {{ product.panoramas.length }}
Video’s {{ product.videos.length }}
Kaarten
Alle media
Woonhuis te koop Eyckstraat 10 Geleen
€ {{ product.price.replace(/\B(?=(\d{4})+(?!\d))/g, ".") }} {{ __(product.price_condition) }}
Verkocht onder voorbehoud
Omschrijving
Aan de gezellige Eyckstraat in Geleen ligt deze charmante en verrassend ruime woning: Eyckstraat 10. Met een woonoppervlakte van 119 m² en een perceel van 260 m² biedt deze woning volop ruimte aan gezinnen die comfort, functionaliteit en een centrale ligging waarderen.
Wat deze woning extra bijzonder maakt, is dat zij levensloopbestendig is ingericht. Dankzij een slaapkamer en badkamer op de begane grond is het huis ideaal voor bewoners die gelijkvloers willen wonen of voorbereid willen zijn op de toekomst, zonder concessies te doen aan ruimte en gemak.
De woning is gelegen in de kindvriendelijke wijk "Kluis" in Geleen, waar rust en privacy hand in hand gaan met een uitstekende bereikbaarheid. Het centrum, diverse winkels, scholen en openbaar vervoer bevinden zich op korte afstand, waardoor alle dagelijkse voorzieningen binnen handbereik zijn.
Kortom: een comfortabele, praktische en toekomstgerichte woning op een toplocatie!
Leuk om te weten:
- Bouwjaar 1960 (conform BAG), eigen perceel: 260 m² (conform kadaster);
- Woonoppervlakte ca. 119m², (meetrapport aanwezig);
- Inhoud: ca. 506m³;
- Levensloopbestendig door slaapkamer en badkamer op de begane grond;
- Woning geschikt voor kantoor of salon aan huis;
- Energielabel C;
- Woning voorzien van kunststof kozijnen en HR-beglazing;
- De woning beschikt over handmatige rolluiken;
- Oprit met berging;
- Aanvaarding in overleg.
INDELING
Souterrain:
Het souterrain biedt praktische bergruimte en een kelder met aansluitingen voor de wasmachine, ideaal voor extra opbergruimte of een handige washoek.
Begane grond:
Bij binnenkomst treedt u binnen in een ruime, betegelde hal met meterkast. Vanuit de hal heeft u toegang tot het apart toilet, de trap naar de kelder, de trap naar de eerste verdieping en de woonkamer met open keuken en eetkamer.
De woonkamer is gezellig en voorzien van een sfeervolle kachel en houten plinten, wat zorgt voor een warme en huiselijke sfeer. De open eetkamer loopt naadloos door naar de keuken en heeft via twee deuren direct toegang tot de tuin. Vanuit de woonkamer bereikt u een praktische tussenruimte die toegang biedt tot de badkamer, wasruimte en een slaapkamer op de begane grond, welke eveneens direct toegang heeft tot de tuin.
De open keuken is volledig betegeld en voorzien van een combi-oven, wasbak, koelkast, vaatwasser, 4-pits inductiekookplaat met ingebouwde afzuiging. De badkamer is modern ingericht met een inloopdouche met glazen douchewand en dubbele wastafel met meubel, terwijl de slaapkamer is uitgerust met een airco voor optimaal comfort tijdens warme dagen.
Eerste verdieping:
Op de eerste verdieping leidt de overloop naar twee ruime slaapkamers, een volledig betegelde badkamer, een tussenruimte met apart toilet en een klein balkon, en een vaste trap naar de zolder. De badkamer beschikt over een ligbad, inloopdouche met glazen douchewand en dubbele wastafel met meubel, perfect voor gezinnen die comfort wensen.
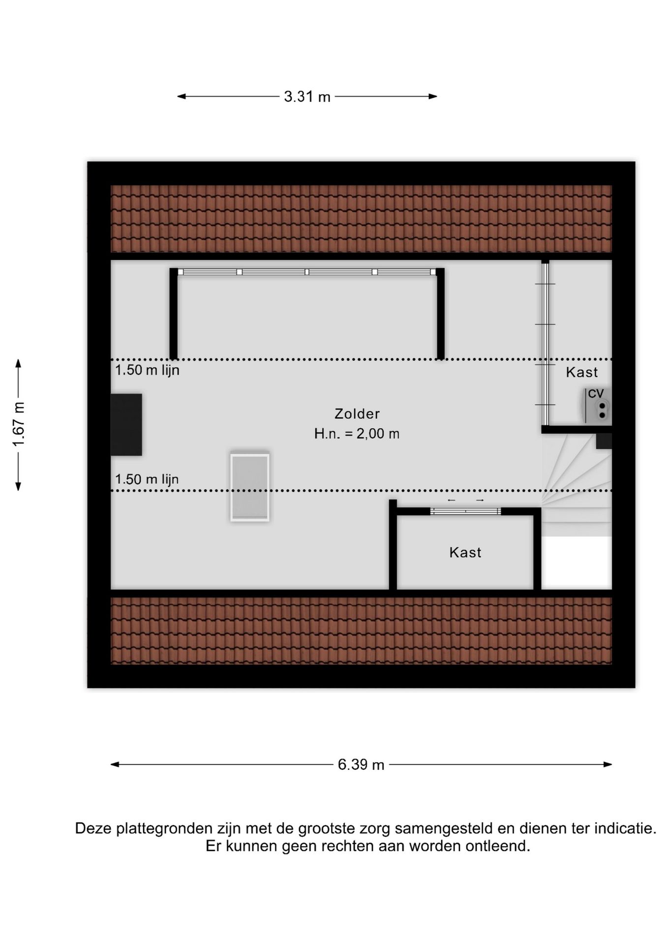
Zolder:
De ruime zolder is voorzien van een dakkapel en laminaatvloer, waardoor deze ruimte ideaal is als extra slaapkamer, hobbyruimte of kantoor. Daarnaast zijn er twee kasten aanwezig, waarvan één met de cv-ketel.
Tuin:
Buiten vindt u een verzorgde voortuin met groen en een betegeld pad naar de voordeur. De oprit biedt plaats aan een garage, ideaal voor uw auto of extra bergruimte.
De achtertuin is deels betegeld en deels voorzien van groen, met een praktische berging. Door de ligging en de toegang vanuit meerdere vertrekken van de woning is de tuin een fijne plek om te ontspannen of te spelen met kinderen. De riante, houten overkapping biedt extra comfort en een natuurlijke warme sfeer aan de tuin.
De waarborgsom/bankgarantie is 10% van de koopsom. De koper dient deze, indien de verkoper en koper dit overeenkomen, binnen 2 weken nadat het financieringsvoorbehoud is verlopen bij de desbetreffende notaris te deponeren.
Ter bescherming van de belangen van zowel koper als ook verkoper wordt uitdrukkelijk gesteld dat een koopovereenkomst met betrekking tot deze onroerende zaak eerst dan tot stand komt nadat koper en verkoper de koopovereenkomst hebben getekend (schriftelijkheidsvereiste).
Indien c.v. ketel en/of warmwatervoorziening een huurtoestel is, dient koper de huurovereenkomst over te nemen.
Alle door ons kantoor verstrekte informatie omtrent onroerende zaken, moet beschouwd worden als een uitnodiging om in onderhandeling te treden, en is geheel vrijblijvend! Alle vermelde maten en afmetingen zijn slechts bij benadering. Aan deze beperkte info kunnen geen rechten worden ontleend. Indien in enige documentatie of op enige website informatie staat die niet overeen komt met de werkelijkheid, dan geldt de feitelijke situatie waarin de woning zich bevindt, zoals koper deze tijdens de bezichtiging heeft kunnen waarnemen, en wordt de woning in deze feitelijke situatie/staat verkocht. Een (eventueel) bijgevoegde plattegrond dient uitsluitend als globale indicatie/visualisatie. Hieraan kunnen uitdrukkelijk geen rechten worden ontleend.
De makelaar Ray van der Venne nodigt u uit voor een bezichtiging.
Wat deze woning extra bijzonder maakt, is dat zij levensloopbestendig is ingericht. Dankzij een slaapkamer en badkamer op de begane grond is het huis ideaal voor bewoners die gelijkvloers willen wonen of voorbereid willen zijn op de toekomst, zonder concessies te doen aan ruimte en gemak.
De woning is gelegen in de kindvriendelijke wijk "Kluis" in Geleen, waar rust en privacy hand in hand gaan met een uitstekende bereikbaarheid. Het centrum, diverse winkels, scholen en openbaar vervoer bevinden zich op korte afstand, waardoor alle dagelijkse voorzieningen binnen handbereik zijn.
Kortom: een comfortabele, praktische en toekomstgerichte woning op een toplocatie!
Leuk om te weten:
- Bouwjaar 1960 (conform BAG), eigen perceel: 260 m² (conform kadaster);
- Woonoppervlakte ca. 119m², (meetrapport aanwezig);
- Inhoud: ca. 506m³;
- Levensloopbestendig door slaapkamer en badkamer op de begane grond;
- Woning geschikt voor kantoor of salon aan huis;
- Energielabel C;
- Woning voorzien van kunststof kozijnen en HR-beglazing;
- De woning beschikt over handmatige rolluiken;
- Oprit met berging;
- Aanvaarding in overleg.
INDELING
Souterrain:
Het souterrain biedt praktische bergruimte en een kelder met aansluitingen voor de wasmachine, ideaal voor extra opbergruimte of een handige washoek.
Begane grond:
Bij binnenkomst treedt u binnen in een ruime, betegelde hal met meterkast. Vanuit de hal heeft u toegang tot het apart toilet, de trap naar de kelder, de trap naar de eerste verdieping en de woonkamer met open keuken en eetkamer.
De woonkamer is gezellig en voorzien van een sfeervolle kachel en houten plinten, wat zorgt voor een warme en huiselijke sfeer. De open eetkamer loopt naadloos door naar de keuken en heeft via twee deuren direct toegang tot de tuin. Vanuit de woonkamer bereikt u een praktische tussenruimte die toegang biedt tot de badkamer, wasruimte en een slaapkamer op de begane grond, welke eveneens direct toegang heeft tot de tuin.
De open keuken is volledig betegeld en voorzien van een combi-oven, wasbak, koelkast, vaatwasser, 4-pits inductiekookplaat met ingebouwde afzuiging. De badkamer is modern ingericht met een inloopdouche met glazen douchewand en dubbele wastafel met meubel, terwijl de slaapkamer is uitgerust met een airco voor optimaal comfort tijdens warme dagen.
Eerste verdieping:
Op de eerste verdieping leidt de overloop naar twee ruime slaapkamers, een volledig betegelde badkamer, een tussenruimte met apart toilet en een klein balkon, en een vaste trap naar de zolder. De badkamer beschikt over een ligbad, inloopdouche met glazen douchewand en dubbele wastafel met meubel, perfect voor gezinnen die comfort wensen.
Zolder:
De ruime zolder is voorzien van een dakkapel en laminaatvloer, waardoor deze ruimte ideaal is als extra slaapkamer, hobbyruimte of kantoor. Daarnaast zijn er twee kasten aanwezig, waarvan één met de cv-ketel.
Tuin:
Buiten vindt u een verzorgde voortuin met groen en een betegeld pad naar de voordeur. De oprit biedt plaats aan een garage, ideaal voor uw auto of extra bergruimte.
De achtertuin is deels betegeld en deels voorzien van groen, met een praktische berging. Door de ligging en de toegang vanuit meerdere vertrekken van de woning is de tuin een fijne plek om te ontspannen of te spelen met kinderen. De riante, houten overkapping biedt extra comfort en een natuurlijke warme sfeer aan de tuin.
De waarborgsom/bankgarantie is 10% van de koopsom. De koper dient deze, indien de verkoper en koper dit overeenkomen, binnen 2 weken nadat het financieringsvoorbehoud is verlopen bij de desbetreffende notaris te deponeren.
Ter bescherming van de belangen van zowel koper als ook verkoper wordt uitdrukkelijk gesteld dat een koopovereenkomst met betrekking tot deze onroerende zaak eerst dan tot stand komt nadat koper en verkoper de koopovereenkomst hebben getekend (schriftelijkheidsvereiste).
Indien c.v. ketel en/of warmwatervoorziening een huurtoestel is, dient koper de huurovereenkomst over te nemen.
Alle door ons kantoor verstrekte informatie omtrent onroerende zaken, moet beschouwd worden als een uitnodiging om in onderhandeling te treden, en is geheel vrijblijvend! Alle vermelde maten en afmetingen zijn slechts bij benadering. Aan deze beperkte info kunnen geen rechten worden ontleend. Indien in enige documentatie of op enige website informatie staat die niet overeen komt met de werkelijkheid, dan geldt de feitelijke situatie waarin de woning zich bevindt, zoals koper deze tijdens de bezichtiging heeft kunnen waarnemen, en wordt de woning in deze feitelijke situatie/staat verkocht. Een (eventueel) bijgevoegde plattegrond dient uitsluitend als globale indicatie/visualisatie. Hieraan kunnen uitdrukkelijk geen rechten worden ontleend.
De makelaar Ray van der Venne nodigt u uit voor een bezichtiging.
+ Lees meer
- Lees minder
Bouw: {{
product.build_year }}
Bouw: {{ product.build_period.start }} -
{{ product.build_period.end }}
Woonhuis
, Eengezinswoning
{{ product.rooms }} Kamers
{{ product.bedrooms
}} Slaapkamers
Woonruimte: {{
product.living_space }} m²
Perceel: {{
product.plot_surface }} m²
Energielabel: {{ product.energy_class }}
Energie index: {{ product.energy_index }}
Kenmerken
{{ field.label }}
{{ field.value }}
+ Lees meer
{{ field.label }}
{{ field.value }}
- Lees minder
{{ product.company.name }}
Contact opnemen
{{ product.company.phone.replace('-', ' ').substr(0, 7) }}...
{{ product.company.phone.replace('-', ' ') }}
Delen:
Datum