Foto’s
20
Kaarten
Alle media
Woonhuis te koop Korenbloem 4 Heerlen
Korenbloem 4
6418 NN Heerlen Nederland
Omschrijving
Welkom op De Korenbloem 4, gelegen in de jonge en geliefde wijk Hoogveld, aan de rand van Heerlen. Deze hoogwaardig afgewerkte villa, biedt alles voor wie op zoek is naar comfortabel en energiezuinig wonen. Volledig instapklaar, modern afgewerkt en tot in de p
+ Lees meer
Bouw: 2023
Woonhuis
, Villa
8 Kamers
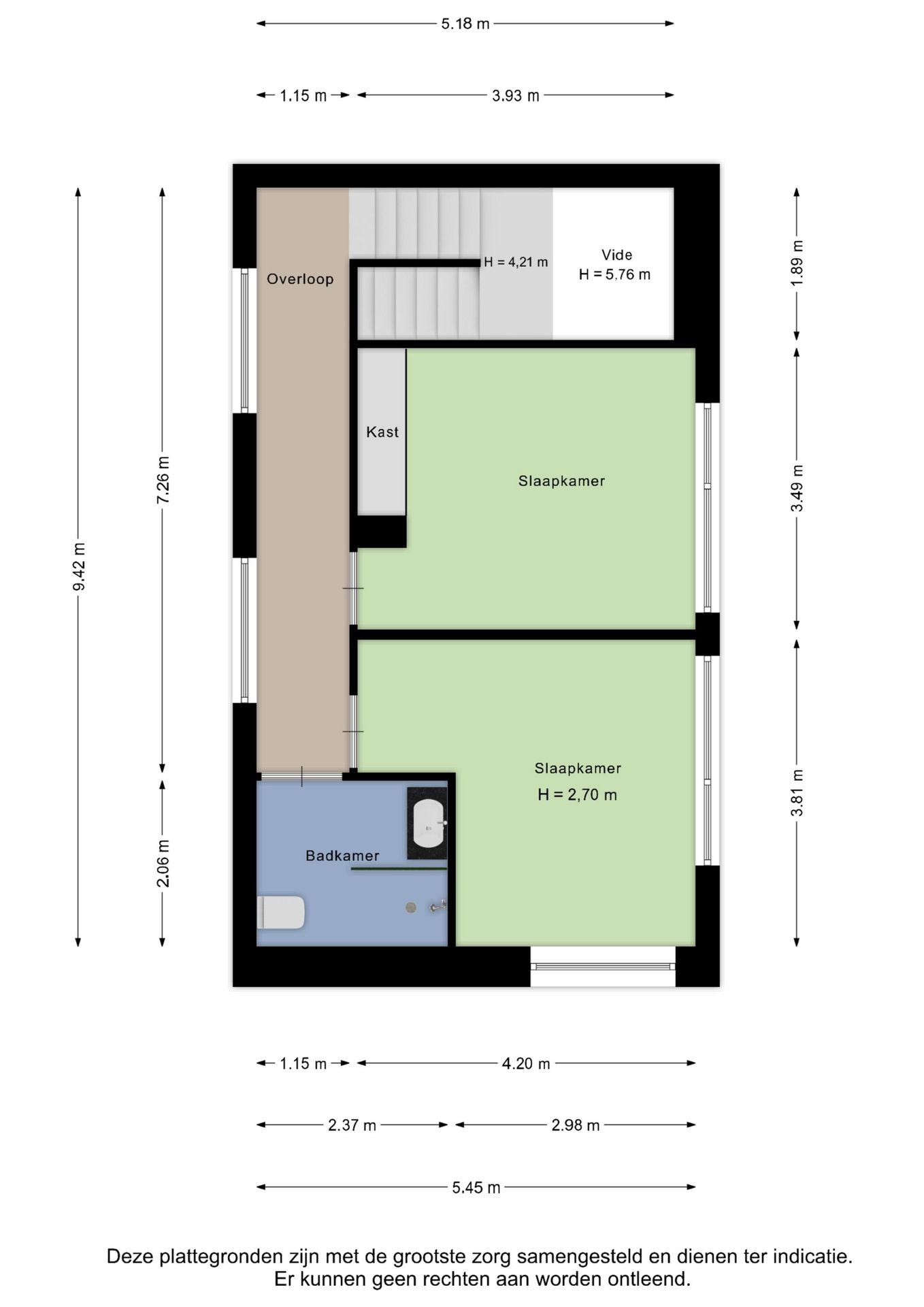
3 Slaapkamers
Woonruimte: 166 m²
Perceel: 728 m²
Energielabel: A++++
Kenmerken
Prijs
€ 945.000 kk
Status
Verkocht
+ Lees meer
Bouw
Type
Koop
Bouwperiode
2023
Constructie
Bestaande bouw
Oppervlaktes
Woonoppervlakte
166 m²
Overige inpandige ruimte
31 m²
Externe bergruimte
14 m²
Gebouwgebonden buitenruimtes
14 m²
Perceeloppervlakte
728 m²
Volume
797 m³
Indeling
Aantal kamers
8 Kamers (3 Slaapkamers)
Aantal verdiepingen
1
Kadastrale kaart
Sectie
F 6437
Oppervlakte
345 m²
Eigendom
Volle eigendom
Sectie
F 6431
Oppervlakte
383 m²
Eigendom
Volle eigendom
Datum



















