Verkocht onder voorbehoud
€ {{ product.price.replace(/\B(?=(\d{4})+(?!\d))/g, ".") }} {{ __(product.price_condition) }}
Foto’s
{{ product.images.length }}
Plattegrond
{{ product.plans.length }}
360° foto's {{ product.panoramas.length }}
Video’s {{ product.videos.length }}
Kaarten
Alle media
Woonhuis te koop Heistraat 103 Kerkrade
€ {{ product.price.replace(/\B(?=(\d{4})+(?!\d))/g, ".") }} {{ __(product.price_condition) }}
Verkocht onder voorbehoud
Omschrijving
Welkom bij Heistraat 103 in Kerkrade – een charmante jaren ’20-woning met karakter, sfeer en verrassend veel ruimte! Achter de fraaie gevel schuilt een comfortabel en goed onderhouden woonhuis met een woonoppervlakte van 125m2. Hier geniet je van een moderne keuken, een fijne aanbouw met vloerverwarming, een ruime garage en een onderhoudsvriendelijke tuin waar je heerlijk kunt ontspannen. Een ideale woning voor wie houdt van stijlvol en comfortabel wonen. AANBOUW EN GARAGE UIT 2022!
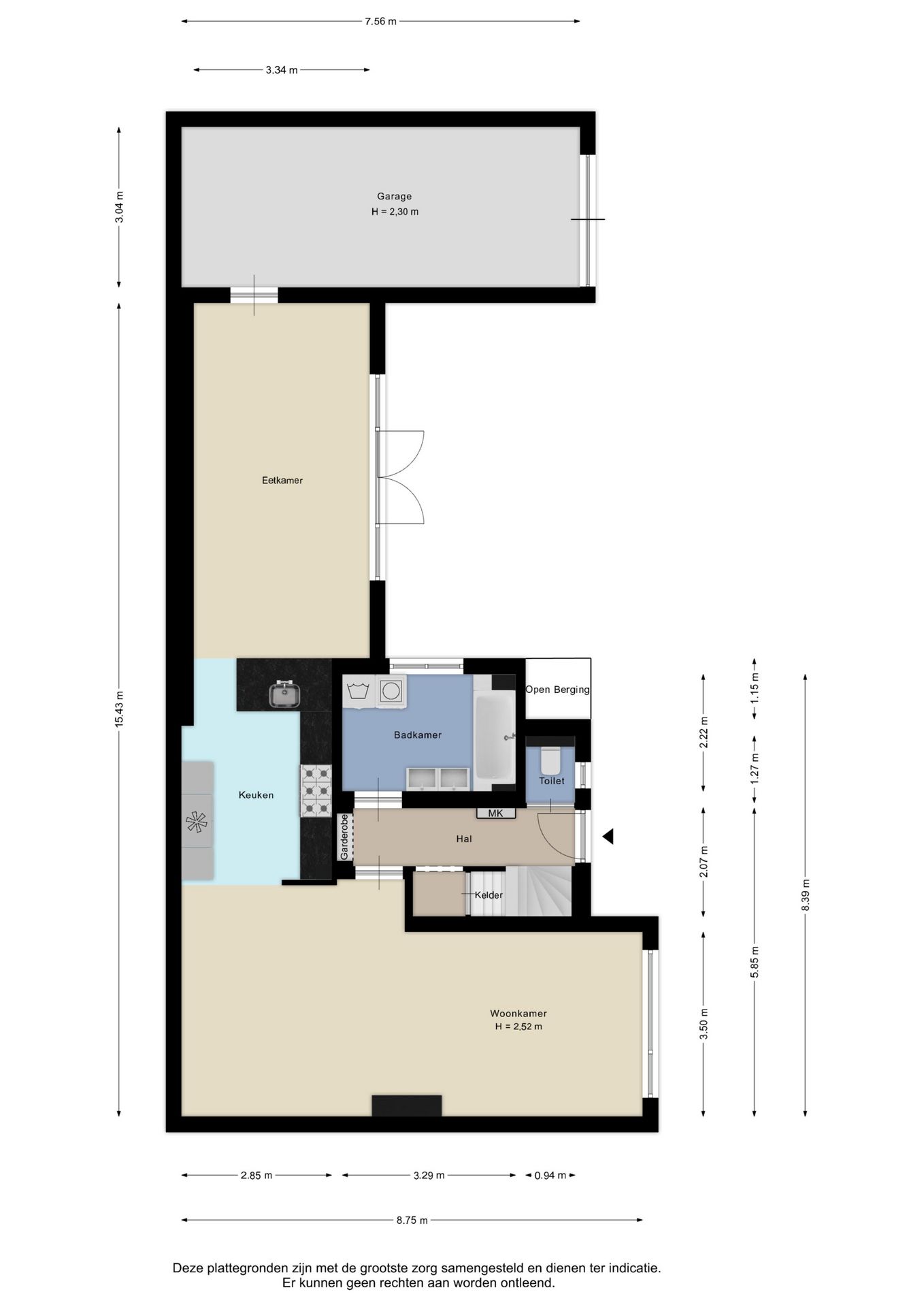
De maten van alle ruimtes vindt u terug in de plattegronden!
Leuk om te weten:
- Bouwjaar 1920 (conform BAG), eigen perceel: 285 m² (conform kadaster);
- Woonoppervlakte ca. 125 m², (meetrapport aanwezig);
- Inhoud: ca. 574m³;
- Energielabel C;
- 20 zonnepanelen in eigendom (2022);
- Keuken, aanbouw en dak van de garage vernieuwd in 2022
- Badkamer vernieuwd in 2017/2018, toilet in 2024
- Aanbouw en keuken voorzien van vloerisolatie en vloerverwarming
- HR++-glas in de aanbouw, overige ramen HR-glas
- Elektrische rolluiken op de begane grond, handmatige rolluiken op de eerste verdieping
- Slaapkamer voorzijde woning voorzien van airconditioning
- Oprit en garage met sectionaalpoort
- Aanvaarding in overleg.
Souterrain:
In het souterrain bevindt zich de cv-installatie.
Begane grond:
Via enkele traptreden bereik je de voordeur met kleine overkapping. Ook is er een zijpoort naar de tuin en oprit met garage.
De hal is betegeld en voorzien van een meterkast, garderobe, aparte toiletruimte met sensorverlichting, toegang tot de badkamer, woonkamer, kelder en de trap naar de eerste verdieping. De badkamer is modern uitgevoerd met twee wastafels en een meubel, witgoedaansluiting, een ligbad met bubbelbadfunctie, douchekop en spiegel met verlichting.
De woonkamer heeft een laminaatvloer, grote raampartijen met elektrisch rolluik en een sfeervolle (niet in werking zijnde) open haard. De open keuken is modern ingericht met een 5-pits gasfornuis, grote oven, afzuigkap, vaatwasser, Amerikaanse koelkast. Vanuit de keuken loop je door naar de aanbouw met bar, eetgedeelte en toegang tot de garage en tuin. Zowel de keuken als de aanbouw zijn voorzien van vloerverwarming.
Eerste verdieping:
De eerste verdieping is afgewerkt met laminaat en beschikt over rolluiken. De overloop geeft toegang tot twee slaapkamers en een garderobekamer. De slaapkamer aan de voorzijde heeft airconditioning. De garderobekamer beschikt over een dakraam en bergruimte. Daarnaast zijn bij de trap nog extra bergkastjes aanwezig.
Tuin:
De tuin is onderhoudsvriendelijk ingericht met een betegeld terras en zithoek, volledig omsloten door een houten schutting. Via de zijkant is de tuin bereikbaar via een poort.
De waarborgsom/bankgarantie is 10% van de koopsom. De koper dient deze, indien de verkoper en koper dit overeenkomen, binnen 2 weken nadat het financieringsvoorbehoud is verlopen bij de desbetreffende notaris te deponeren.
Ter bescherming van de belangen van zowel koper als ook verkoper wordt uitdrukkelijk gesteld dat een koopovereenkomst met betrekking tot deze onroerende zaak eerst dan tot stand komt nadat koper en verkoper de koopovereenkomst hebben getekend (schriftelijkheidsvereiste).
Indien c.v.ketel en/of warmwatervoorziening een huurtoestel is, dient koper de huurovereenkomst over te nemen.
Alle door ons kantoor verstrekte informatie omtrent onroerende zaken, moet beschouwd worden als een uitnodiging om in onderhandeling te treden, en is geheel vrijblijvend! Alle vermelde maten en afmetingen zijn slechts bij benadering. Aan deze beperkte info kunnen geen rechten worden ontleend. Indien in enige documentatie of op enige website informatie staat die niet overeen komt met de werkelijkheid, dan geldt de feitelijke situatie waarin de woning zich bevindt, zoals koper deze tijdens de bezichtiging heeft kunnen waarnemen, en wordt de woning in deze feitelijke situatie/staat verkocht. Een (eventueel) bijgevoegde plattegrond dient uitsluitend als globale indicatie/visualisatie. Hieraan kunnen uitdrukkelijk geen rechten worden ontleend.
De makelaar Roy Ubachs nodigt u uit voor een bezichtiging.
De maten van alle ruimtes vindt u terug in de plattegronden!
Leuk om te weten:
- Bouwjaar 1920 (conform BAG), eigen perceel: 285 m² (conform kadaster);
- Woonoppervlakte ca. 125 m², (meetrapport aanwezig);
- Inhoud: ca. 574m³;
- Energielabel C;
- 20 zonnepanelen in eigendom (2022);
- Keuken, aanbouw en dak van de garage vernieuwd in 2022
- Badkamer vernieuwd in 2017/2018, toilet in 2024
- Aanbouw en keuken voorzien van vloerisolatie en vloerverwarming
- HR++-glas in de aanbouw, overige ramen HR-glas
- Elektrische rolluiken op de begane grond, handmatige rolluiken op de eerste verdieping
- Slaapkamer voorzijde woning voorzien van airconditioning
- Oprit en garage met sectionaalpoort
- Aanvaarding in overleg.
Souterrain:
In het souterrain bevindt zich de cv-installatie.
Begane grond:
Via enkele traptreden bereik je de voordeur met kleine overkapping. Ook is er een zijpoort naar de tuin en oprit met garage.
De hal is betegeld en voorzien van een meterkast, garderobe, aparte toiletruimte met sensorverlichting, toegang tot de badkamer, woonkamer, kelder en de trap naar de eerste verdieping. De badkamer is modern uitgevoerd met twee wastafels en een meubel, witgoedaansluiting, een ligbad met bubbelbadfunctie, douchekop en spiegel met verlichting.
De woonkamer heeft een laminaatvloer, grote raampartijen met elektrisch rolluik en een sfeervolle (niet in werking zijnde) open haard. De open keuken is modern ingericht met een 5-pits gasfornuis, grote oven, afzuigkap, vaatwasser, Amerikaanse koelkast. Vanuit de keuken loop je door naar de aanbouw met bar, eetgedeelte en toegang tot de garage en tuin. Zowel de keuken als de aanbouw zijn voorzien van vloerverwarming.
Eerste verdieping:
De eerste verdieping is afgewerkt met laminaat en beschikt over rolluiken. De overloop geeft toegang tot twee slaapkamers en een garderobekamer. De slaapkamer aan de voorzijde heeft airconditioning. De garderobekamer beschikt over een dakraam en bergruimte. Daarnaast zijn bij de trap nog extra bergkastjes aanwezig.
Tuin:
De tuin is onderhoudsvriendelijk ingericht met een betegeld terras en zithoek, volledig omsloten door een houten schutting. Via de zijkant is de tuin bereikbaar via een poort.
De waarborgsom/bankgarantie is 10% van de koopsom. De koper dient deze, indien de verkoper en koper dit overeenkomen, binnen 2 weken nadat het financieringsvoorbehoud is verlopen bij de desbetreffende notaris te deponeren.
Ter bescherming van de belangen van zowel koper als ook verkoper wordt uitdrukkelijk gesteld dat een koopovereenkomst met betrekking tot deze onroerende zaak eerst dan tot stand komt nadat koper en verkoper de koopovereenkomst hebben getekend (schriftelijkheidsvereiste).
Indien c.v.ketel en/of warmwatervoorziening een huurtoestel is, dient koper de huurovereenkomst over te nemen.
Alle door ons kantoor verstrekte informatie omtrent onroerende zaken, moet beschouwd worden als een uitnodiging om in onderhandeling te treden, en is geheel vrijblijvend! Alle vermelde maten en afmetingen zijn slechts bij benadering. Aan deze beperkte info kunnen geen rechten worden ontleend. Indien in enige documentatie of op enige website informatie staat die niet overeen komt met de werkelijkheid, dan geldt de feitelijke situatie waarin de woning zich bevindt, zoals koper deze tijdens de bezichtiging heeft kunnen waarnemen, en wordt de woning in deze feitelijke situatie/staat verkocht. Een (eventueel) bijgevoegde plattegrond dient uitsluitend als globale indicatie/visualisatie. Hieraan kunnen uitdrukkelijk geen rechten worden ontleend.
De makelaar Roy Ubachs nodigt u uit voor een bezichtiging.
+ Lees meer
- Lees minder
Bouw: {{
product.build_year }}
Bouw: {{ product.build_period.start }} -
{{ product.build_period.end }}
Woonhuis
, Eengezinswoning
{{ product.rooms }} Kamers
{{ product.bedrooms
}} Slaapkamers
Woonruimte: {{
product.living_space }} m²
Perceel: {{
product.plot_surface }} m²
Energielabel: {{ product.energy_class }}
Energie index: {{ product.energy_index }}
Kenmerken
{{ field.label }}
{{ field.value }}
+ Lees meer
{{ field.label }}
{{ field.value }}
- Lees minder
{{ product.company.name }}
Contact opnemen
{{ product.company.phone.replace('-', ' ').substr(0, 7) }}...
{{ product.company.phone.replace('-', ' ') }}
Delen:
Datum