Beschikbaar
€ {{ product.price.replace(/\B(?=(\d{4})+(?!\d))/g, ".") }} {{ __(product.price_condition) }}
Foto’s
{{ product.images.length }}
Plattegrond
{{ product.plans.length }}
360° foto's {{ product.panoramas.length }}
Video’s {{ product.videos.length }}
Kaarten
Alle media
Woonhuis te koop St.quirinusstraat 80 Kerkrade
€ {{ product.price.replace(/\B(?=(\d{4})+(?!\d))/g, ".") }} {{ __(product.price_condition) }}
Beschikbaar
Omschrijving
Perfecte starterwoning!
In rustige buurt, aan de rand van het groen gelegen keurig afgewerkt, gemoderniseerd en onderhouden eengezinswoning met ruime serre, stenen berging, extra aangrenzende houten tuinberging en achtertuin, welke ook vanuit de achterzijde te bereiken is".
Centraal bereikbaar met voldoende faciliteiten in de nabije omgeving.
Voldoende parkeergelegenheid in de wijk zowel aan voor als achterzijde.
INDELING:
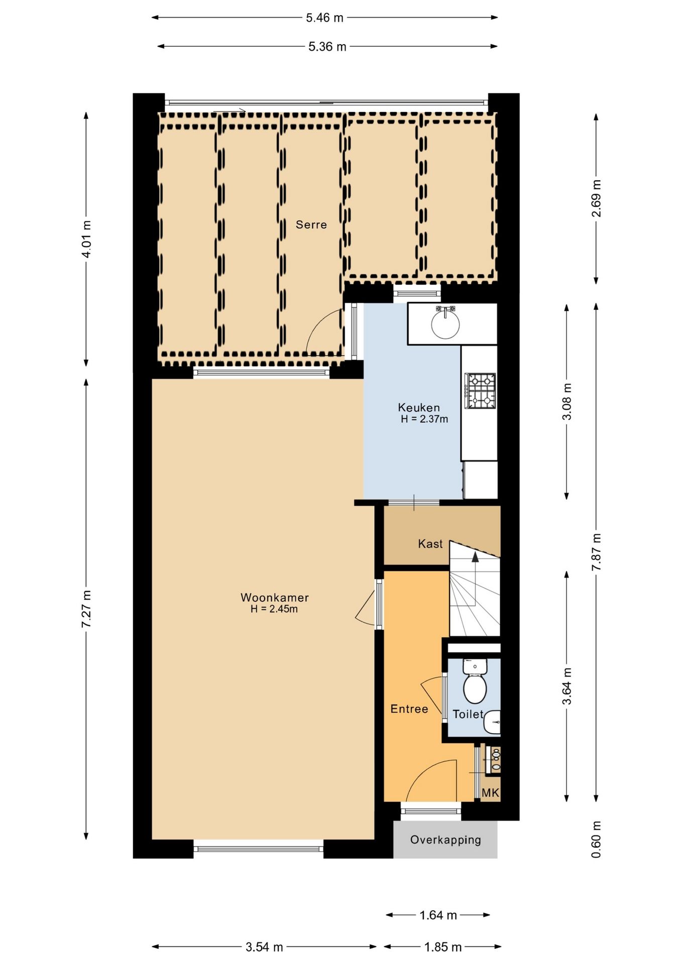
Begane grond:
Entree.
Ontvangsthal v.v. plavuizenvloer, vloerluik naar kruipruimte en opgang/trap naar eerste verdieping.
Geheel betegeld toiletruimte met fontein.
Woonkamer voorzien van fraaie laminaatvloer en airconditioning.
Half open keuken v.v. laminaatvloer en keurige witte aanbouwinstallatie incl. apparatuur, te weten combi-oven, koelkast en wasemkap. Ruime trapberging.
Royaal overdekt terras (geheel afsluitbaar voor weersinvloeden) en fijne tuin alwaar een ruime stenen berging met aangrenzende houten berging. De tuin heeft eveneens een achterom.
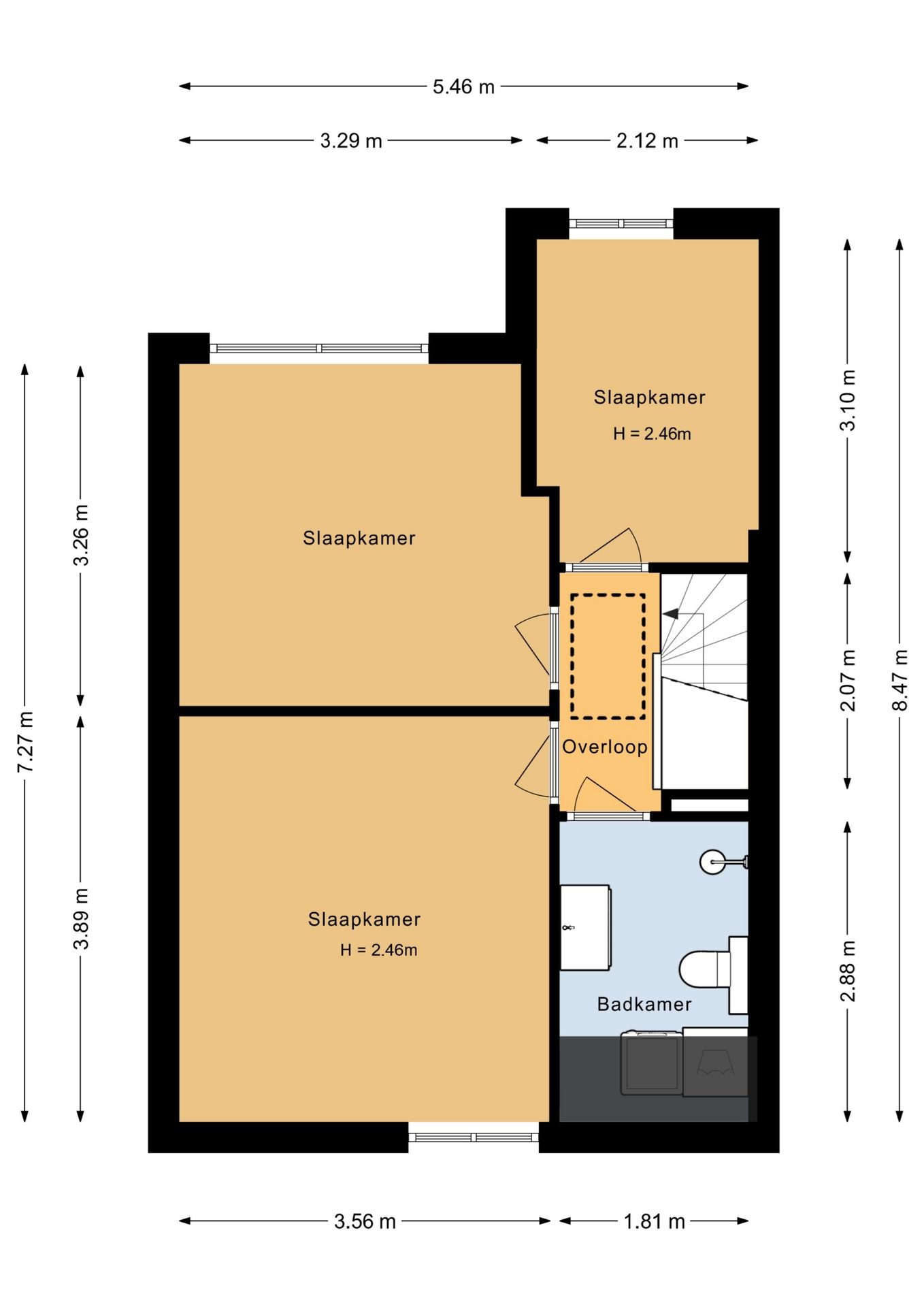
Eerste verdieping:
Overloop.
3 Slaapkamers.
Slaapkamer 1 v.v. een laminaatvloer en rolluiken.
Slaapkamer 2 v.v. een laminaatvloer en rolluiken.
Slaapkamer 3 v.v. een laminaatvloer en rolluiken.
Betegelde badkamer voorzien van douche, badkamermeubel, 2e (vrij hangend) toilet met inbouwreservoir en aansluitpunten voor wasmachine en droger.
Tweede verdieping:
Bereikbaar via vlizo trap vanaf de overloop.
De nokhoogte bedraagt circa 1.87 meter.
Berging voorzien van dakraam en met opstelling Cv combi installatie (Vailiant Eco Tec Plus, 2025, eigendom) en mechanische ventilatie.
Algemeen:
De woning wordt keurig bewoond en kent een goed onderhoudsniveau.
Voorzien van rolluiken.
Voorzien van zonnepanelen 8 stuks (eigendom)
Kunststof kozijnen v.v. dubbele beglazing (2013)
AANSPRAKELIJKHEID
Het bovenstaande behelst slechts een globale omschrijving van een object. De informatie berust deels op door derden aan onze kantoren verstrekte gegevens. Met de meeste zorg hebben wij deze informatie verwerkt doch kunnen ten aanzien van de juistheid van deze gegevens geen aansprakelijkheid aanvaarden. Aan deze brochure kunnen geen rechten worden ontleend.
ONTBINDING
De termijn die wordt opgenomen voor eventuele (overeengekomen) ontbindende voorwaarden (b.v. financiering) is in de regel circa 4 weken na het sluiten van de mondelinge wilsovereenkomst.
ZEKERHEIDSSTELLING
De waarborgsom/bankgarantie is 10% van de koopsom. De koper dient deze binnen 7 dagen na definitieve overeenkomst bij de desbetreffende notaris te deponeren.
ONDERZOEKSPLICHT VAN DE KOPER
Koper is te allen tijde gerechtigd voor eigen rekening een bouwkundige keuring te (laten) verrichten dan wel andere adviseurs te raadplegen teneinde een goed inzicht te verkrijgen in de staat van onderhoud.
In rustige buurt, aan de rand van het groen gelegen keurig afgewerkt, gemoderniseerd en onderhouden eengezinswoning met ruime serre, stenen berging, extra aangrenzende houten tuinberging en achtertuin, welke ook vanuit de achterzijde te bereiken is".
Centraal bereikbaar met voldoende faciliteiten in de nabije omgeving.
Voldoende parkeergelegenheid in de wijk zowel aan voor als achterzijde.
INDELING:
Begane grond:
Entree.
Ontvangsthal v.v. plavuizenvloer, vloerluik naar kruipruimte en opgang/trap naar eerste verdieping.
Geheel betegeld toiletruimte met fontein.
Woonkamer voorzien van fraaie laminaatvloer en airconditioning.
Half open keuken v.v. laminaatvloer en keurige witte aanbouwinstallatie incl. apparatuur, te weten combi-oven, koelkast en wasemkap. Ruime trapberging.
Royaal overdekt terras (geheel afsluitbaar voor weersinvloeden) en fijne tuin alwaar een ruime stenen berging met aangrenzende houten berging. De tuin heeft eveneens een achterom.
Eerste verdieping:
Overloop.
3 Slaapkamers.
Slaapkamer 1 v.v. een laminaatvloer en rolluiken.
Slaapkamer 2 v.v. een laminaatvloer en rolluiken.
Slaapkamer 3 v.v. een laminaatvloer en rolluiken.
Betegelde badkamer voorzien van douche, badkamermeubel, 2e (vrij hangend) toilet met inbouwreservoir en aansluitpunten voor wasmachine en droger.
Tweede verdieping:
Bereikbaar via vlizo trap vanaf de overloop.
De nokhoogte bedraagt circa 1.87 meter.
Berging voorzien van dakraam en met opstelling Cv combi installatie (Vailiant Eco Tec Plus, 2025, eigendom) en mechanische ventilatie.
Algemeen:
De woning wordt keurig bewoond en kent een goed onderhoudsniveau.
Voorzien van rolluiken.
Voorzien van zonnepanelen 8 stuks (eigendom)
Kunststof kozijnen v.v. dubbele beglazing (2013)
AANSPRAKELIJKHEID
Het bovenstaande behelst slechts een globale omschrijving van een object. De informatie berust deels op door derden aan onze kantoren verstrekte gegevens. Met de meeste zorg hebben wij deze informatie verwerkt doch kunnen ten aanzien van de juistheid van deze gegevens geen aansprakelijkheid aanvaarden. Aan deze brochure kunnen geen rechten worden ontleend.
ONTBINDING
De termijn die wordt opgenomen voor eventuele (overeengekomen) ontbindende voorwaarden (b.v. financiering) is in de regel circa 4 weken na het sluiten van de mondelinge wilsovereenkomst.
ZEKERHEIDSSTELLING
De waarborgsom/bankgarantie is 10% van de koopsom. De koper dient deze binnen 7 dagen na definitieve overeenkomst bij de desbetreffende notaris te deponeren.
ONDERZOEKSPLICHT VAN DE KOPER
Koper is te allen tijde gerechtigd voor eigen rekening een bouwkundige keuring te (laten) verrichten dan wel andere adviseurs te raadplegen teneinde een goed inzicht te verkrijgen in de staat van onderhoud.
+ Lees meer
- Lees minder
Bouw: {{
product.build_year }}
Bouw: {{ product.build_period.start }} -
{{ product.build_period.end }}
Woonhuis
, Eengezinswoning
{{ product.rooms }} Kamers
{{ product.bedrooms
}} Slaapkamers
Woonruimte: {{
product.living_space }} m²
Perceel: {{
product.plot_surface }} m²
Energielabel: {{ product.energy_class }}
Energie index: {{ product.energy_index }}
Kenmerken
{{ field.label }}
{{ field.value }}
+ Lees meer
{{ field.label }}
{{ field.value }}
- Lees minder
{{ product.company.name }}
Contact opnemen
{{ product.company.phone.replace('-', ' ').substr(0, 7) }}...
{{ product.company.phone.replace('-', ' ') }}
Delen:
Datum