Onder optie
€ {{ product.price.replace(/\B(?=(\d{4})+(?!\d))/g, ".") }} {{ __(product.price_condition) }}
Foto’s
{{ product.images.length }}
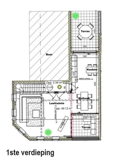
Plattegrond
{{ product.plans.length }}
360° foto's {{ product.panoramas.length }}
Video’s {{ product.videos.length }}
Kaarten
Alle media

Woonhuis te koop Dorpsstraat 29 Maasmechelen

€ {{ product.price.replace(/\B(?=(\d{4})+(?!\d))/g, ".") }} {{ __(product.price_condition) }}
Onder optie

Omschrijving

Moderne nieuwbouwwoning in hartje Vucht (Maasmechelen)

Ontdek deze stijlvolle nieuwbouwwoning met een bewoonbare oppervlakte van 170 m², gelegen op een centrale en rustige locatie in Vucht. De woning combineert moderne architectuur met energiezuinig comfort (EPC A ) en kwalitatieve afwerking.

Bij het betreden van de woning kom je terecht in een ruime inkomhal die toegang biedt tot een eerste slaapkamer op het gelijkvloers. Deze ruimte kan ook perfect worden ingericht als praktijkruimte, ideaal voor een schoonheidssalon, of een kantoor aan huis.

Op de eerste verdieping bevindt zich de lichtrijke leefruimte met open keuken, waar koken en gezellig samenzijn centraal staan. Vanuit de woonkamer heb je directe toegang tot de twee terrassen, perfect om te genieten van zon en buitenlucht.

Het bovenste verdiep biedt via de nachthal toegang tot twee ruime slaapkamers en een moderne badkamer met hoogwaardige afwerking.
Daarnaast beschikt de woning over twee private parkeerplaatsen aan de woning.

Dankzij de PVC-ramen met dubbele beglazing en de energiezuinige bouw is deze woning niet enkel mooi, maar ook toekomstgericht.
Deze nieuwbouwwoning kan aangekocht worden aan 6% BTW.

Troeven:
·Energiezuinige nieuwbouw (E-peil 7, EPC A)
·3 slaapkamers
·Multifunctionele ruimte op het gelijkvloers (ideaal voor praktijk of bureau)
·Twee ruime terrassen
·2 private parkeerplaatsen
·Kwalitatieve materialen en moderne afwerking
·Een ideale woning voor wie comfortabel, modern en energiezuinig wil wonen in het charmante Vucht!Centrale ligging in een aangename woonomgeving
·Bovendien geniet u gedurende een periode van vijf jaar van een vrijstelling van het kadastraal inkomen!!

Voor meer info of een afspraak, contacteer Carolien via 0484357067 of Carolien@jemar.be
+ Lees meer
- Lees minder
Bouw: {{ product.build_year }}
Bouw: {{ product.build_period.start }} - {{ product.build_period.end }}
Woonhuis , Eengezinswoning
{{ product.rooms }} Kamers
{{ product.bedrooms }} Slaapkamers
Woonruimte: {{ product.living_space }} m²
Perceel: {{ product.plot_surface }} m²
Energielabel:    {{ product.energy_class }}
Energie index: {{ product.energy_index }}

Kenmerken

{{ field.label }}
{{ field.value }}

{{ field.label }}
{{ field.value }}
{{ product.company.name }}
Contact opnemen
{{ product.company.phone.replace('-', ' ').substr(0, 7) }}...
{{ product.company.phone.replace('-', ' ') }}
Delen:

Soortgelijke objecten in de buurt