Verkocht
€ {{ product.price.replace(/\B(?=(\d{4})+(?!\d))/g, ".") }} {{ __(product.price_condition) }}
Foto’s
{{ product.images.length }}
Plattegrond
{{ product.plans.length }}
360° foto's {{ product.panoramas.length }}
Video’s {{ product.videos.length }}
Kaarten
Alle media
Woonhuis te koop Emmalaan 21 Valkenburg
€ {{ product.price.replace(/\B(?=(\d{4})+(?!\d))/g, ".") }} {{ __(product.price_condition) }}
Verkocht
Omschrijving
Aan de rand van het centrum van Valkenburg gelegen halfvrijstaand herenhuis met achterom, tuin met tuinhuis en overdekt terras.
De woning is gelegen in een rustige straat op loopafstand van het gezellige stadscentrum met alle voorzieningen en nabij het treinstation.
INDELING
Souterrain:
- kelder 7.15x1.90
- kelder 2.45x.4.95
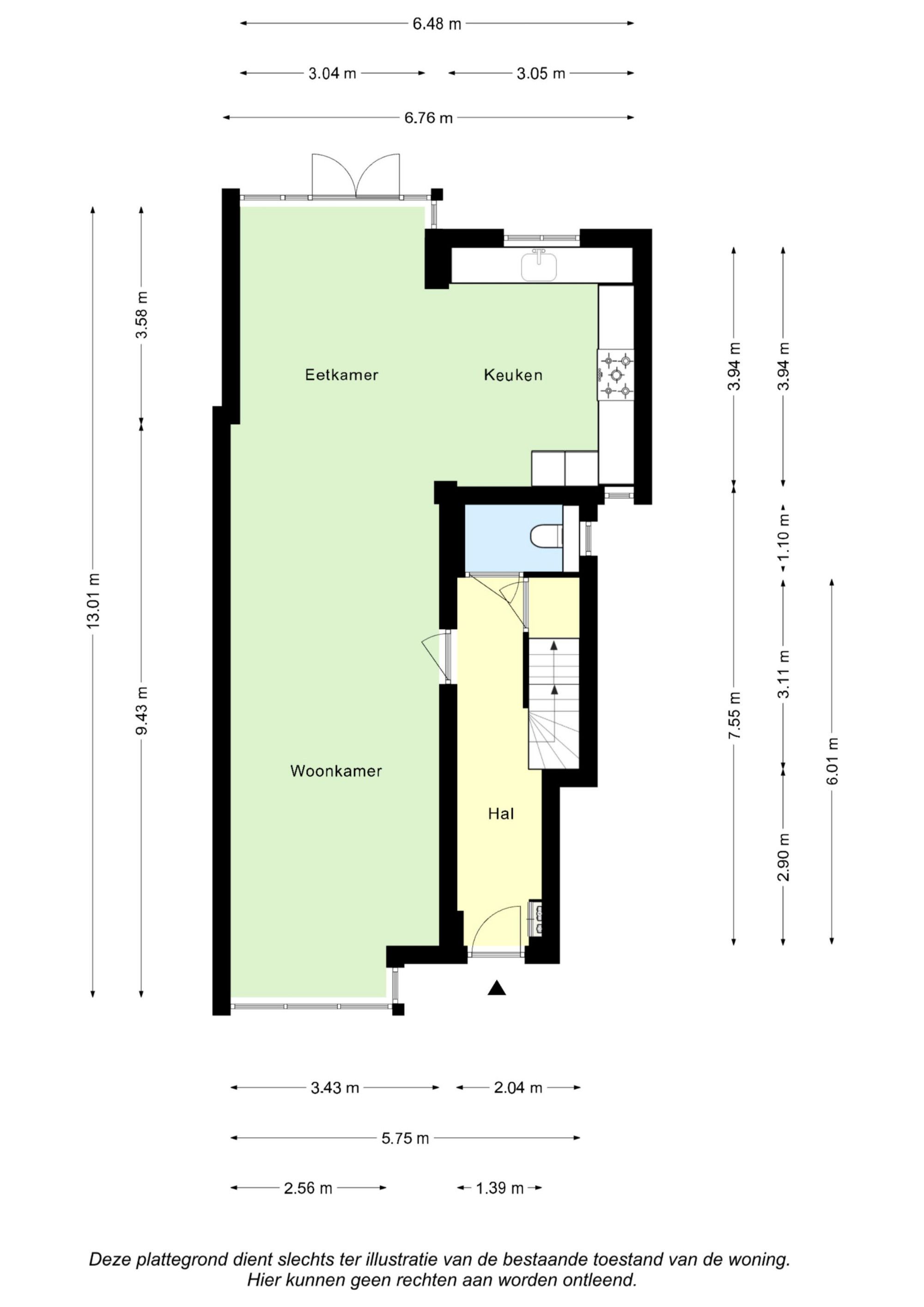
Begane grond:
- entree/gang, meterkast
- toilet
- woonkamer met erker en serre met openslaande deuren naar de tuin, open keuken voorzien van moderne keukenopstelling met o.m. Smeg inductie fornuis met oven, afzuigkap, vaatwasser, koel-/vriescombinatie, quooker, ingebouwde was-/droogcombinatie
- woonkamer en open keuken totaal 55m²
- tuinhuis 6.36x2.38 in gebruik als kantoor, voorzien van airco en wateraansluiting en overdekt terras.
Eerste verdieping:
- overloop met bergkast en airco
- slaapkamer 3.45x3.96 met balkon en ingebouwde kastenwand
- slaapkamer 3.45x3.34 met ingebouwde kastenwand
- slaapkamer 3.09x3.99
- moderne badkamer met inloopdouche, wastafel, toilet en infrarood verwarming
Tweede verdieping:
- via vaste trap te bereiken
- slaapkamer 3.18x2.94
- zolder met c.v.-ketel opstelling.
De woning is gelegen in een rustige straat op loopafstand van het gezellige stadscentrum met alle voorzieningen en nabij het treinstation.
INDELING
Souterrain:
- kelder 7.15x1.90
- kelder 2.45x.4.95
Begane grond:
- entree/gang, meterkast
- toilet
- woonkamer met erker en serre met openslaande deuren naar de tuin, open keuken voorzien van moderne keukenopstelling met o.m. Smeg inductie fornuis met oven, afzuigkap, vaatwasser, koel-/vriescombinatie, quooker, ingebouwde was-/droogcombinatie
- woonkamer en open keuken totaal 55m²
- tuinhuis 6.36x2.38 in gebruik als kantoor, voorzien van airco en wateraansluiting en overdekt terras.
Eerste verdieping:
- overloop met bergkast en airco
- slaapkamer 3.45x3.96 met balkon en ingebouwde kastenwand
- slaapkamer 3.45x3.34 met ingebouwde kastenwand
- slaapkamer 3.09x3.99
- moderne badkamer met inloopdouche, wastafel, toilet en infrarood verwarming
Tweede verdieping:
- via vaste trap te bereiken
- slaapkamer 3.18x2.94
- zolder met c.v.-ketel opstelling.
+ Lees meer
- Lees minder
Bouw: {{
product.build_year }}
Bouw: {{ product.build_period.start }} -
{{ product.build_period.end }}
Woonhuis
, Eengezinswoning
{{ product.rooms }} Kamers
{{ product.bedrooms
}} Slaapkamers
Woonruimte: {{
product.living_space }} m²
Perceel: {{
product.plot_surface }} m²
Energielabel: {{ product.energy_class }}
Energie index: {{ product.energy_index }}
Kenmerken
{{ field.label }}
{{ field.value }}
+ Lees meer
{{ field.label }}
{{ field.value }}
- Lees minder
{{ product.company.name }}
Contact opnemen
{{ product.company.phone.replace('-', ' ').substr(0, 7) }}...
{{ product.company.phone.replace('-', ' ') }}
Delen:
Datum