Verkocht
€ {{ product.price.replace(/\B(?=(\d{4})+(?!\d))/g, ".") }} {{ __(product.price_condition) }}
Foto’s
{{ product.images.length }}
Plattegrond
{{ product.plans.length }}
360° foto's {{ product.panoramas.length }}
Video’s {{ product.videos.length }}
Kaarten
Alle media
Woonhuis te koop Huiskensstraat 26 Venlo
€ {{ product.price.replace(/\B(?=(\d{4})+(?!\d))/g, ".") }} {{ __(product.price_condition) }}
Verkocht
Omschrijving
In het kindvriendelijke buurtschap “ 't Ven” ligt deze moderne instapklare in 2014 uitgebouwde vrijstaande woning. De woning beschikt over 14 zonnepanelen (2019), veel lichtinval en een ruime zonnige tuin op het noordoosten met vrije achterom. In de tuin bevindt zich het overdekte terras met 3 elektrische heaters.
De woning is gelegen nabij basisscholen, supermarkten, woonboulevard en uitvalswegen A67 en A73.
Indeling:
De woning beschikt over een kruipruimte.
Begane grond: ruime entree met PVC vloer, garderobe, trapkast en steellook deur (2022) naar de woonkamer. Nieuw zwevend toilet met fonteintje (2021). Zeer ruime woonkamer met erker en PVC vloer met vloerverwarming. Uitgebouwde keuken 2014 met openslaande tuindeuren met hordeur en PVC vloer met deels vloerverwarming. De nieuwe keukenopstelling met kookeiland is in 2021 geplaatst. Het kookeiland is voorzien van een keramisch werkblad en de keuken is voorzien van alle inbouwapparatuur zoals; koelkast, Bora inductiekookplaat met geïntegreerde afzuiging, combioven, vaatwasser, Quooker en wijnklimaatkast. Bijkeuken is voorzien van betegelde wanden, PVC vloer en witgoedaansluiting. Garage met elektrisch bedienbare sectionaalpoort.
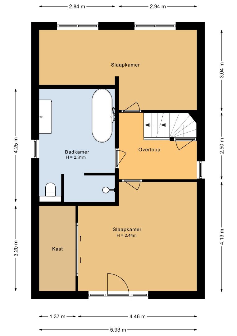
1ste verdieping: Overloop met PVC vloer. 2 slaapkamers eveneens voorzien van PVC vloer, beide slaapkamers zijn voorzien van horren. Een slaapkamer beschikt over een schuifkast en airconditioning (2023). Badkamer (2021) met elektrische vloerverwarming, inloop/stortdouche, ligbad, dubbele wastafel, wandmeubel, zwevend toilet, designradiator en hor.
2de verdieping: middels vast trap te bereiken overloop met PVC vloer. 2 slaapkamers welke beiden voorzien zijn van bergruimtes achter het knieschot. Een slaapkamer is voorzien van een kunststof dakkapel (2021) met horren.
Bijzonderheden: bouwjaar 1998. Woonoppervlakte: 200m². Overig inpandige ruimte: 21m². Gebouwgebonden buitenruimte: 46m2. Externe buitenruimte: 11 m. Inhoud: 756m3. Oppervlakte perceel: 560m². Woning is voorzien van zowel dak-, vloer- als spouwmuurisolatie. De woning is tevens voorzien van hardhouten kozijnen met dubbele beglazing met grotendeels rolluiken waarvan diverse elektrisch te bedienen. Beide trappen zijn in 2021 gerenoveerd. HR CV-ketel (Nefit 2007). Aanvaarding in overleg.
De woning is gelegen nabij basisscholen, supermarkten, woonboulevard en uitvalswegen A67 en A73.
Indeling:
De woning beschikt over een kruipruimte.
Begane grond: ruime entree met PVC vloer, garderobe, trapkast en steellook deur (2022) naar de woonkamer. Nieuw zwevend toilet met fonteintje (2021). Zeer ruime woonkamer met erker en PVC vloer met vloerverwarming. Uitgebouwde keuken 2014 met openslaande tuindeuren met hordeur en PVC vloer met deels vloerverwarming. De nieuwe keukenopstelling met kookeiland is in 2021 geplaatst. Het kookeiland is voorzien van een keramisch werkblad en de keuken is voorzien van alle inbouwapparatuur zoals; koelkast, Bora inductiekookplaat met geïntegreerde afzuiging, combioven, vaatwasser, Quooker en wijnklimaatkast. Bijkeuken is voorzien van betegelde wanden, PVC vloer en witgoedaansluiting. Garage met elektrisch bedienbare sectionaalpoort.
1ste verdieping: Overloop met PVC vloer. 2 slaapkamers eveneens voorzien van PVC vloer, beide slaapkamers zijn voorzien van horren. Een slaapkamer beschikt over een schuifkast en airconditioning (2023). Badkamer (2021) met elektrische vloerverwarming, inloop/stortdouche, ligbad, dubbele wastafel, wandmeubel, zwevend toilet, designradiator en hor.
2de verdieping: middels vast trap te bereiken overloop met PVC vloer. 2 slaapkamers welke beiden voorzien zijn van bergruimtes achter het knieschot. Een slaapkamer is voorzien van een kunststof dakkapel (2021) met horren.
Bijzonderheden: bouwjaar 1998. Woonoppervlakte: 200m². Overig inpandige ruimte: 21m². Gebouwgebonden buitenruimte: 46m2. Externe buitenruimte: 11 m. Inhoud: 756m3. Oppervlakte perceel: 560m². Woning is voorzien van zowel dak-, vloer- als spouwmuurisolatie. De woning is tevens voorzien van hardhouten kozijnen met dubbele beglazing met grotendeels rolluiken waarvan diverse elektrisch te bedienen. Beide trappen zijn in 2021 gerenoveerd. HR CV-ketel (Nefit 2007). Aanvaarding in overleg.
+ Lees meer
- Lees minder
Bouw: {{
product.build_year }}
Bouw: {{ product.build_period.start }} -
{{ product.build_period.end }}
Woonhuis
, Eengezinswoning
{{ product.rooms }} Kamers
{{ product.bedrooms
}} Slaapkamers
Woonruimte: {{
product.living_space }} m²
Perceel: {{
product.plot_surface }} m²
Energielabel: {{ product.energy_class }}
Energie index: {{ product.energy_index }}
Kenmerken
{{ field.label }}
{{ field.value }}
+ Lees meer
{{ field.label }}
{{ field.value }}
- Lees minder
{{ product.company.name }}
Contact opnemen
{{ product.company.phone.replace('-', ' ').substr(0, 7) }}...
{{ product.company.phone.replace('-', ' ') }}
Delen:
Datum