Beschikbaar
€ {{ product.price.replace(/\B(?=(\d{4})+(?!\d))/g, ".") }} {{ __(product.price_condition) }}
Foto’s
{{ product.images.length }}
Plattegrond
{{ product.plans.length }}
360° foto's {{ product.panoramas.length }}
Video’s {{ product.videos.length }}
Kaarten
Alle media
Woonhuis te koop Pastoor Deckersstraat 1 Venlo
€ {{ product.price.replace(/\B(?=(\d{4})+(?!\d))/g, ".") }} {{ __(product.price_condition) }}
Beschikbaar
Omschrijving
Karakteristiek hoekwoning gelegen op een toplocatie in Venlo-oost, hoek Pastoor Deckersstraat / van Schelbergenstraat. Dit ruime herenhuis is voorzien van een zonnige woonkamer met erker, ruime keuken, 5 slaapkamers, hobby-/werkkamer en tuin op het oosten met vrije achterom. Gelegen in een mooie verkeersluwe straat in Venlo-Oost met uitzicht op een parkachtige omgeving met de bekende vijver van Traas. Basisscholen, winkels, centrum Venlo en station Venlo liggen op enkele minuten loop- /c.q. fietsafstand.
Indeling:
Kelder:
Ruime kelder welke is ingedeeld in 3 compartimenten. De kelder is voorzien van de wasruimte met de witgoedaansluitingen, bergruimte en een muziekstudio welke uitermate geschikt is voor kantoor/ hobbykamer of werkkamer.
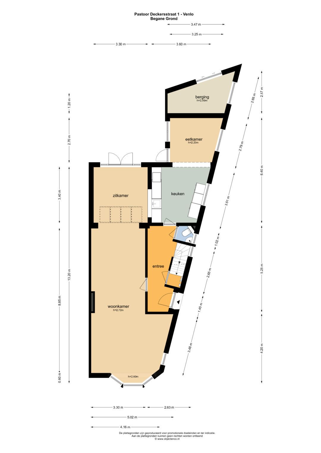
Begane grond:
Via de zijkant van de woning is de entree te bereiken, De royale entree/ hal geeft toegang tot de trapopgang naar de verdieping, trapgang naar de kelder, separate toiletruimte, woonkamer en keuken.
De separate toiletruimte is geheel betegeld en voorzien van een zwevend toilet, buitenraam en fonteintje. De zeer ruime woonkamer met aan de achterzijde de zitkamer is voorzien van een eikenhouten vloer en geniet veel lichtinval. Aan de achterzijde is de zitkamer te vinden welke in deels open verbinding staat met de keuken. Middels twee openslaande deuren is de tuin te bereiken. De riante leefkeuken met aansluitend eetkamer is voorzien van een tegelvloer, 5-pits gasfornuis, heteluchtoven, combimagnetron, vaatwasmachine, afzuigkap, veel opbergruimte en is er tevens middel een loopdeur toegang tot de tuin.
1e verdieping:
De ruime overloop geeft toegang tot de separate toiletruimte, 3 slaapkamers en trapopgang naar de 2e verdieping. De toiletruimte is voorzien van een toilet en buitenraam. De 3 slaapkamers zijn ruim van opzet. De masterbedroom welke aan de voorzijde van de woning is gelegen is verder in het bezit van een ensuite douche en een wastafel. De slaapkamer aan de achterzijde geeft toegang tot het ruime dakterras. Verder is de gehele verdieping voorzien van een laminaatvloer.
2e verdieping:
Middels de vaste trap komt met op de 2e overloop, deze geeft toegang tot de 2 slaapkamers, badkamer en vlizotrap naar de bergzolder. De 2 slaapkamers en badkamer beschikken over een dakkapel. De badkamer is voorzien van een ligbad, wastafel met meubel en douche.
3e verdieping:
Deze verdieping is in gebruik als bergzolder, tevens is hier de CV-ketel (Daeldrop 2006 eigendom) en een wastafel gepositioneerd.
Tuin:
De woning is voorzien van een ruime achtertuin. Het perceel is in totaal 176m² en heeft een vrije achterom. De tuin is ingericht als een gezellige onderhoudsvrije stadstuin met veel privacy en een houten buitenberging.
Algemeen:
Bouwjaar 1930, woonoppervlakte ca. 196m2, inhoud ca. 810m2, perceeloppervlakte 176m2. De CV-opstelling is van het merk Daeldrop en bouwjaar 2006. Verder beschikt de woning over 12 zonnepanelen en is het schilderwerk in 2025 uitgevoerd. Gelegen in een mooie verkeersluwe straat in Venlo-Oost met uitzicht op een parkachtige omgeving met de bekende vijver van Traas. Basisscholen, winkels, centrum Venlo en station Venlo liggen op enkele minuten loop- /c.q. fietsafstand.
Energielabel is C
Vraagprijs: € 575.000,- k.k.
Indeling:
Kelder:
Ruime kelder welke is ingedeeld in 3 compartimenten. De kelder is voorzien van de wasruimte met de witgoedaansluitingen, bergruimte en een muziekstudio welke uitermate geschikt is voor kantoor/ hobbykamer of werkkamer.
Begane grond:
Via de zijkant van de woning is de entree te bereiken, De royale entree/ hal geeft toegang tot de trapopgang naar de verdieping, trapgang naar de kelder, separate toiletruimte, woonkamer en keuken.
De separate toiletruimte is geheel betegeld en voorzien van een zwevend toilet, buitenraam en fonteintje. De zeer ruime woonkamer met aan de achterzijde de zitkamer is voorzien van een eikenhouten vloer en geniet veel lichtinval. Aan de achterzijde is de zitkamer te vinden welke in deels open verbinding staat met de keuken. Middels twee openslaande deuren is de tuin te bereiken. De riante leefkeuken met aansluitend eetkamer is voorzien van een tegelvloer, 5-pits gasfornuis, heteluchtoven, combimagnetron, vaatwasmachine, afzuigkap, veel opbergruimte en is er tevens middel een loopdeur toegang tot de tuin.
1e verdieping:
De ruime overloop geeft toegang tot de separate toiletruimte, 3 slaapkamers en trapopgang naar de 2e verdieping. De toiletruimte is voorzien van een toilet en buitenraam. De 3 slaapkamers zijn ruim van opzet. De masterbedroom welke aan de voorzijde van de woning is gelegen is verder in het bezit van een ensuite douche en een wastafel. De slaapkamer aan de achterzijde geeft toegang tot het ruime dakterras. Verder is de gehele verdieping voorzien van een laminaatvloer.
2e verdieping:
Middels de vaste trap komt met op de 2e overloop, deze geeft toegang tot de 2 slaapkamers, badkamer en vlizotrap naar de bergzolder. De 2 slaapkamers en badkamer beschikken over een dakkapel. De badkamer is voorzien van een ligbad, wastafel met meubel en douche.
3e verdieping:
Deze verdieping is in gebruik als bergzolder, tevens is hier de CV-ketel (Daeldrop 2006 eigendom) en een wastafel gepositioneerd.
Tuin:
De woning is voorzien van een ruime achtertuin. Het perceel is in totaal 176m² en heeft een vrije achterom. De tuin is ingericht als een gezellige onderhoudsvrije stadstuin met veel privacy en een houten buitenberging.
Algemeen:
Bouwjaar 1930, woonoppervlakte ca. 196m2, inhoud ca. 810m2, perceeloppervlakte 176m2. De CV-opstelling is van het merk Daeldrop en bouwjaar 2006. Verder beschikt de woning over 12 zonnepanelen en is het schilderwerk in 2025 uitgevoerd. Gelegen in een mooie verkeersluwe straat in Venlo-Oost met uitzicht op een parkachtige omgeving met de bekende vijver van Traas. Basisscholen, winkels, centrum Venlo en station Venlo liggen op enkele minuten loop- /c.q. fietsafstand.
Energielabel is C
Vraagprijs: € 575.000,- k.k.
+ Lees meer
- Lees minder
Bouw: {{
product.build_year }}
Bouw: {{ product.build_period.start }} -
{{ product.build_period.end }}
Woonhuis
, Eengezinswoning
{{ product.rooms }} Kamers
{{ product.bedrooms
}} Slaapkamers
Woonruimte: {{
product.living_space }} m²
Perceel: {{
product.plot_surface }} m²
Energielabel: {{ product.energy_class }}
Energie index: {{ product.energy_index }}
Kenmerken
{{ field.label }}
{{ field.value }}
+ Lees meer
{{ field.label }}
{{ field.value }}
- Lees minder
{{ product.company.name }}
Contact opnemen
{{ product.company.phone.replace('-', ' ').substr(0, 7) }}...
{{ product.company.phone.replace('-', ' ') }}
Delen:
Datum