Verkocht onder voorbehoud
€ {{ product.price.replace(/\B(?=(\d{4})+(?!\d))/g, ".") }} {{ __(product.price_condition) }}
Foto’s
{{ product.images.length }}
Plattegrond
{{ product.plans.length }}
360° foto's {{ product.panoramas.length }}
Video’s {{ product.videos.length }}
Kaarten
Alle media
Woonhuis te koop Pastoor Steinbuschstraat 24 Wijlre
€ {{ product.price.replace(/\B(?=(\d{4})+(?!\d))/g, ".") }} {{ __(product.price_condition) }}
Verkocht onder voorbehoud
Omschrijving
Een keurig onderhouden drive-in starterswoning met tuin en inpandige garage gelegen op rustige locatie in de kern van Wijlre. De woning beschikt over een lichte woonkamer, 3 slaapkamers en een extra tuin/hobby/slaapkamer op de begane grond.
Begane grond:
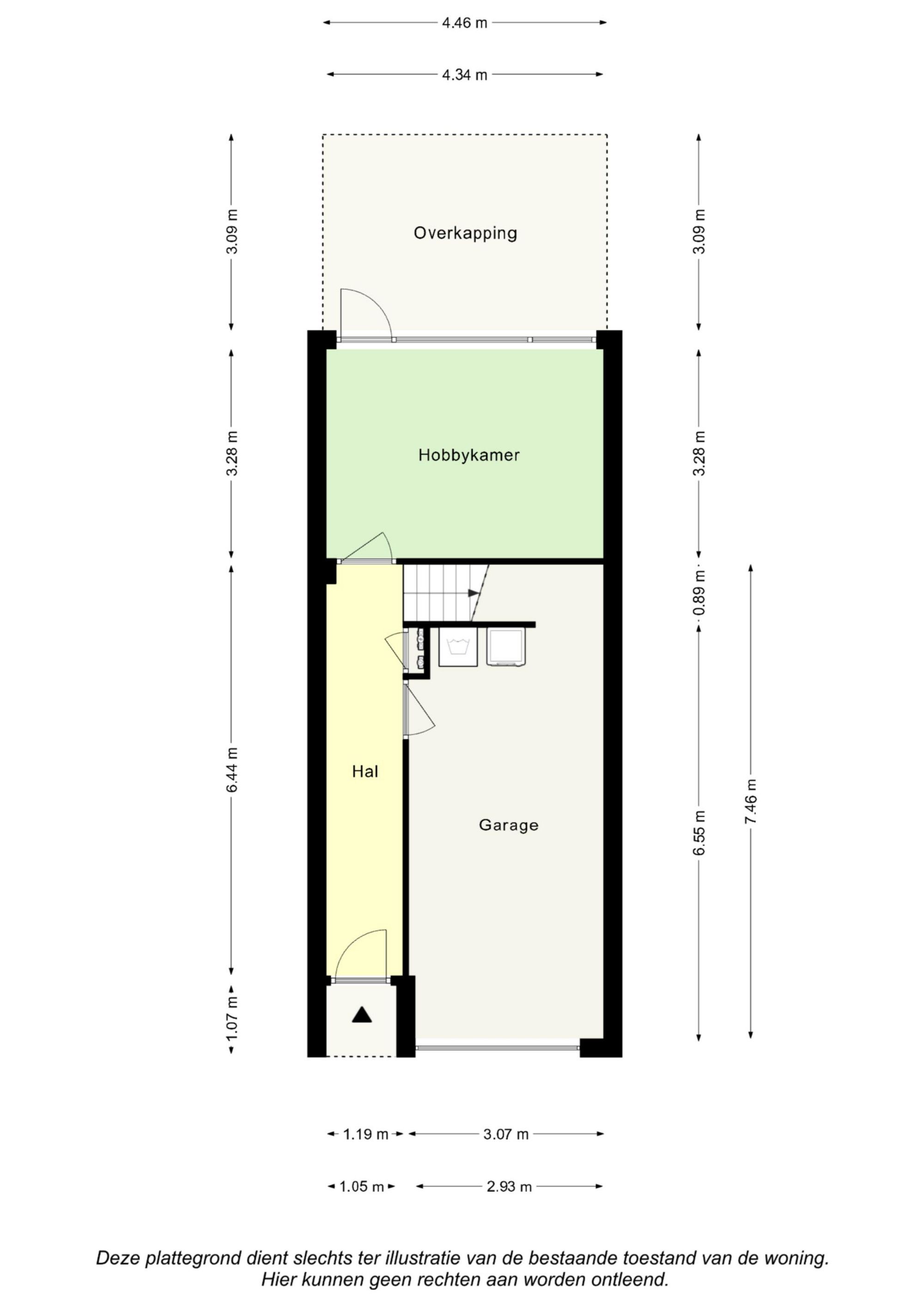
Entree, hal voorzien van plavuizen vloer, meterkast, trapopgang
Inpandige garage (7.46m x 3.07m) met elektrische deur en voorzien van witgoed aansluitingen
Tuin/hobby/slaapkamer (4.46m x 3.28m) voorzien van laminaatvloer en toegang naar de tuin
Onderhoudsvriendelijke tuin met overkapping.
1e Verdieping: v.v. laminaatvloer
Overloop met geheel betegelde toiletruimte voorzien van staand toilet en fonteintje
Middels trap (vanuit hal) te bereiken woon/eetkamer (5.59m x 4.35m) met veel daglichttoetreding, een open trap naar 2e verdieping. Vanuit de woonkamer heeft men toegang tot de keuken (3,30m x 4,34m) met installatie en inbouwapparatuur t.w.: 4-pits gaskookplaat, oven en koelkast.
2e Verdieping: v.v. Laminaatvloer
Overloop met CV Kast
Slaapkamer I (4,34m x 3,33m) aan de achterzijde gelegen
Slaapkamer II (4,94m x 2,12m) aan de voorzijde gelegen
Slaapkamer III (4,93 m x 2,14m) aan de voorzijde gelegen
Geheel betegelde badkamer (2,45m x 1,09m) met bad, wastafelmeubel met wastafel en 2e staand toilet.
Extra's:
- Energielabel C
- Kindvriendelijke woonwijk
- Kunststoffen kozijnen voorzien van dubbele beglazing, de verdieping is voorzien van HR++ beglazing, de tuinkamer is voorzien van enkele beglazing
- Volledig voorzien van elektrisch bedienbare rolluiken.
Ligging: in woonwijk
Installatie: combiketel, eigendom
Bouwjaar: 1969
Aanvaarding: in overleg
Vraagprijs: € 269.000,- k.k.
Alle door ons verstrekte informatie omtrent onroerende zaken moet worden beschouwd als een uitnodiging om in onderhandeling te treden en is geheel vrijblijvend. Maten en informatie bij benadering. Aan deze beperkte informatie kunnen geen rechten worden ontleend. Koper is te allen tijde gerechtigd voor eigen rekening een bouwkundige keuring te (laten) verrichten dan wel andere adviseurs te raadplegen teneinde een goed inzicht te verkrijgen over de staat van onderhoud. De waarborgsom/bankgarantie bedraagt 10% van de koopsom. De koper dient deze 2 weken ná het vervallen van de ontbindende voorwaarden bij de desbetreffende notaris te deponeren. Voor nadere inlichtingen kunt u contact opnemen of een afspraak maken met ons kantoor.
Begane grond:
Entree, hal voorzien van plavuizen vloer, meterkast, trapopgang
Inpandige garage (7.46m x 3.07m) met elektrische deur en voorzien van witgoed aansluitingen
Tuin/hobby/slaapkamer (4.46m x 3.28m) voorzien van laminaatvloer en toegang naar de tuin
Onderhoudsvriendelijke tuin met overkapping.
1e Verdieping: v.v. laminaatvloer
Overloop met geheel betegelde toiletruimte voorzien van staand toilet en fonteintje
Middels trap (vanuit hal) te bereiken woon/eetkamer (5.59m x 4.35m) met veel daglichttoetreding, een open trap naar 2e verdieping. Vanuit de woonkamer heeft men toegang tot de keuken (3,30m x 4,34m) met installatie en inbouwapparatuur t.w.: 4-pits gaskookplaat, oven en koelkast.
2e Verdieping: v.v. Laminaatvloer
Overloop met CV Kast
Slaapkamer I (4,34m x 3,33m) aan de achterzijde gelegen
Slaapkamer II (4,94m x 2,12m) aan de voorzijde gelegen
Slaapkamer III (4,93 m x 2,14m) aan de voorzijde gelegen
Geheel betegelde badkamer (2,45m x 1,09m) met bad, wastafelmeubel met wastafel en 2e staand toilet.
Extra's:
- Energielabel C
- Kindvriendelijke woonwijk
- Kunststoffen kozijnen voorzien van dubbele beglazing, de verdieping is voorzien van HR++ beglazing, de tuinkamer is voorzien van enkele beglazing
- Volledig voorzien van elektrisch bedienbare rolluiken.
Ligging: in woonwijk
Installatie: combiketel, eigendom
Bouwjaar: 1969
Aanvaarding: in overleg
Vraagprijs: € 269.000,- k.k.
Alle door ons verstrekte informatie omtrent onroerende zaken moet worden beschouwd als een uitnodiging om in onderhandeling te treden en is geheel vrijblijvend. Maten en informatie bij benadering. Aan deze beperkte informatie kunnen geen rechten worden ontleend. Koper is te allen tijde gerechtigd voor eigen rekening een bouwkundige keuring te (laten) verrichten dan wel andere adviseurs te raadplegen teneinde een goed inzicht te verkrijgen over de staat van onderhoud. De waarborgsom/bankgarantie bedraagt 10% van de koopsom. De koper dient deze 2 weken ná het vervallen van de ontbindende voorwaarden bij de desbetreffende notaris te deponeren. Voor nadere inlichtingen kunt u contact opnemen of een afspraak maken met ons kantoor.
+ Lees meer
- Lees minder
Bouw: {{
product.build_year }}
Bouw: {{ product.build_period.start }} -
{{ product.build_period.end }}
Woonhuis
, Eengezinswoning
{{ product.rooms }} Kamers
{{ product.bedrooms
}} Slaapkamers
Woonruimte: {{
product.living_space }} m²
Perceel: {{
product.plot_surface }} m²
Energielabel: {{ product.energy_class }}
Energie index: {{ product.energy_index }}
Kenmerken
{{ field.label }}
{{ field.value }}
+ Lees meer
{{ field.label }}
{{ field.value }}
- Lees minder
{{ product.company.name }}
Contact opnemen
{{ product.company.phone.replace('-', ' ').substr(0, 7) }}...
{{ product.company.phone.replace('-', ' ') }}
Delen:
Datum